立即预约
免费定制整装家居
一站置家 全程无忧 一省到底
设计理念:色彩上,灰蓝、高级黑的主色调,奠定了空间沉稳内敛的底色,虽然整体看起来灰扑扑的,既没有亮色那样华丽,也没有黑白那样分明,却总是给人一种朦胧的美感,气质高级、脱俗,硬朗中又带有一丝温和,堪称所有色彩中最具大师格调的色彩。
案例详情
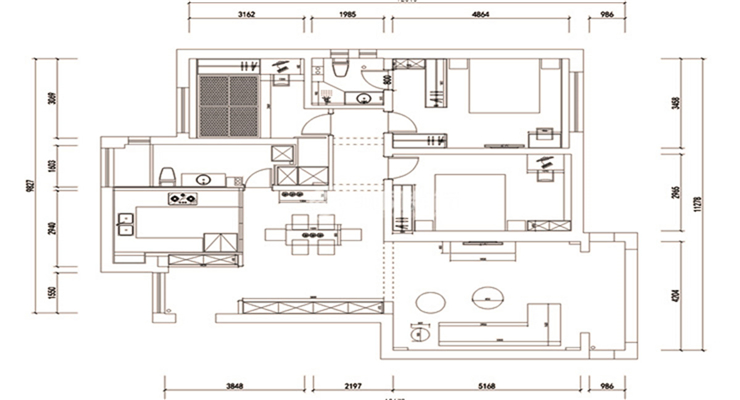
客厅,做了一圈边棚,增加棚面的层次感,灰色的沙发组合,显得大气。
餐厅用金属隔断和过廊分割,让空间有立体感。餐桌采用理石的餐桌,和客厅的茶几呼应。
主卧是忙碌一天终于可以好好休息的空间,没有做过亮和刺激的颜色,营造轻松惬意的睡眠环境。衣帽间满足业主存放衣物的需求。
灰色的墙砖让空间更时尚,墙砖用马赛克分割,让空间更有灵动感。
米白是厨房的主题色调,错落有致的操作台面,配马赛克的砖,更有大气的感觉。
精品设计案例
设计说明:
三室两厅一厨两卫,高层整体采用美式风格,色调以深色为主,体现美式的居家感和温馨感。
设计说明:
本案业主为年轻时尚小两口,所以我们考虑到未来想要给未来宝宝一个温馨舒适的一个房间,所以本案整体采用现代风格的手法,运用颜色,来打造整体空间的设计感及时尚感
设计说明:
本案以北欧风格为主题的设计,北欧风格能以现代、简洁、自然的特点俘获人心,所营造出来的生活氛围会让人倍感舒适与自在。
设计说明:
客户是一名成功人士,对于家的执念就是简单干净,客户衣服比较多,所以把每个空间都做了大衣柜,并且融入到设计里