立即预约 立即预约
免费定制整装家居

免费定制整装家居

一站置家 全程无忧 一省到底
hide.png

当前位置: 首页 > 装修案例效果图 > 小石城蓝湾

小石城蓝湾 95平 现代简约风格效果图

收藏
案例风格 现代简约 案例户型 三居 案例面积 95平米
楼盘名称 小石城蓝湾 设计师 林凤装饰设计师 案例类型 婚房

设计理念:现代简约风格简单色彩创造简约时尚!

客厅
第1张
第2张
餐厅
第1张
卧室
第1张
第2张
第3张
卫生间
第1张
厨房
第1张
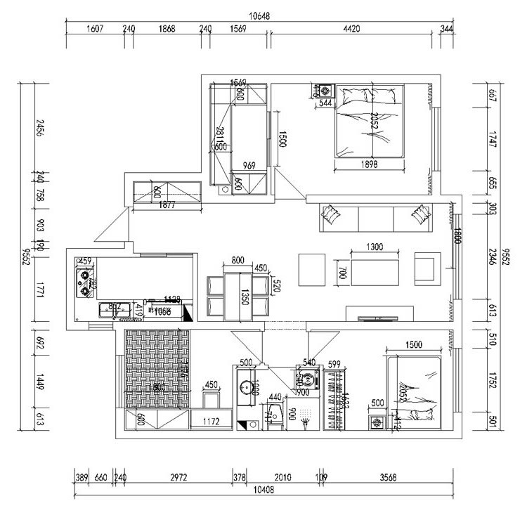
户型图
第1张
  • 案例详情

小石城蓝湾-95平-现代简约风格-客厅.jpg 小石城蓝湾-95平-现代简约风格-全景.jpg

客厅采用了灰色的高亮地砖,客厅整体软装配饰也是颜色采用黑白灰三总颜色进行搭配,沙发、窗帘、电视柜、茶几、背景墙、吊灯,包含了3种色彩使其相互呼应,配上墙上挂画作为点缀让整个空间融为一体背景墙采用硬包材质搭配烤漆玻璃使整个现代感风格更加突出,效果显著!

小石城蓝湾-95平-现代简约风格-餐厅.jpg

餐厅的空间选用了黑色白色的椅子和白色的桌子使其与墙上的帖纸和挂画相互呼应,墙上的挂件的颜色和挂画的颜色也有了衔接,不会使挂件显得不协调,灯具选用黑色的铁西吊灯简洁大方,由于业主家里经常有访客会餐所以灯的位置是取中设计的。

小石城蓝湾-95平-现代简约风格-次卧2.jpg 小石城蓝湾-95平-现代简约风格-次卧1.jpg 小石城蓝湾-95平-现代简约风格-主卧.jpg

主卧室房间的色彩明度较暗所以用墙上的挂画来点缀整个房间让卧室附有一丝活力。由于业主需求所以把一个次卧室做成一个榻榻米用来扩大收纳空间,另一个次卧室作为未来儿童的房间,色彩以白色居多显现出孩子的纯洁与美好,墙上的贴纸让房间呈现一种春天的生机。

小石城蓝湾-95平-现代简约风格-卫生间.jpg

卫生间的洗手台是悬空的洗手台下部分空间可以放置一些日常用品瓷砖选的是灰色的高亮的抛釉砖不会使卫生间因为使用灰色的瓷砖使光线过于阴暗加上黑色的理石台面点缀效果对比明显,运用了比较先进的电子防雾镜子实用性更强。

小石城蓝湾-95平-现代简约风格-厨房.jpg

厨房墙砖采用了亚光的爵士白墙砖配合白色烤漆的材质橱柜,对比非常明显,金属拉丝的冰箱放在这里效果明显,是整体的后现代感更加强烈!

小石城蓝湾-95平-现代简约风格-平面布局图.jpg

案例设计师

林凤装饰设计师

设计师:林凤装饰设计师

从业时间:7年

设计理念:设计源于生活,生活因设计而改变!成就空间和谐,让设计物有所值!让细节缔造完美!

预约设计师

算算你家装修多少钱

报名即享丰厚赠品,享半价装修

免费报价
咨询热线:400-656-9909
20190221103704574636.jpg

精品设计案例

20180612134930523248.jpg 服务号二维码.jpg