立即预约 立即预约
免费定制整装家居

免费定制整装家居

一站置家 全程无忧 一省到底
hide.png

当前位置: 首页 > 装修案例效果图 > 龙湖唐宁ONE

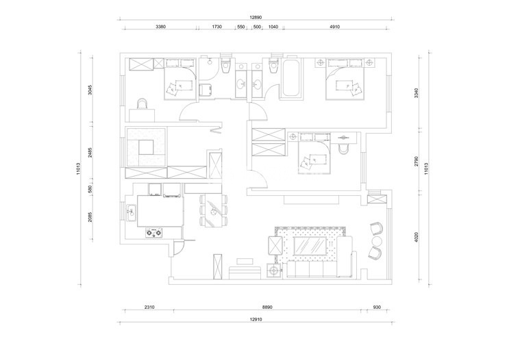
龙湖唐宁ONE 156平 现代简约风格效果图

收藏
案例风格 现代简约 案例户型 四居 案例面积 156平米
楼盘名称 龙湖唐宁ONE 设计师 李承成 案例类型 改善性住宅

设计理念:本案为现代设计风格,简洁、干练的同时呈现一种舒适、时尚之美。结合日式、港式等现代风格表现手法,原木色系搭配纯色墙面完美呈现主人对家的概念

客厅
第1张
餐厅
第1张
卧室
第1张
第2张
第3张
第4张
第5张
卫生间
第1张
第2张
过廊
第1张
户型图
第1张
  • 案例详情

龙湖唐宁ONE-156平-现代风格-客厅.jpg

客厅的功能除了会客更是一家人聚集亲密的地方,背景墙摒弃了传统的造型等华而不实的材质,采用现代感极强的玻璃移门书柜,体现出主人的品味,更能有效的陪着孩子学习、娱乐。仿理石质感的地砖搭配木质隔断及柜体,给人舒适惬意的同时又不失时尚。

龙湖唐宁ONE-156平-现代风格-餐厅.jpg

餐厅的位置选择以方便生活为切入点,时尚感极强的桌椅搭配高级复古的餐边柜,更能体现现代风格轻奢的一面,舒适而不失高雅,黑钢的厨房拉门更能体现出大都市的现代生活。

龙湖唐宁ONE-156平-现代风格-次卧2.jpg 龙湖唐宁ONE-156平-现代风格-次卧室3.jpg 龙湖唐宁ONE-156平-现代风格-次卧1.jpg 龙湖唐宁ONE-156平-现代风格-主卧室.jpg 龙湖唐宁ONE-156平-现代风格-榻榻米.jpg

卧室是主人休息的空间,延续整体色彩风格,原木的护墙板搭配灰麻的硬包让整个卧室看起来更加温馨,简洁时尚的暖色让整个房间充满了爱的温暖。次卧为儿童房,浅蓝色和淡绿色的床头背景表现的是孩子对色彩的喜好,青少年话的儿童房设计不会随着时间的推移而过时,冷暖的对比不失儿童的活泼和家长想给孩子的爱。

龙湖唐宁ONE-156平-现代风格-客卫.jpg 龙湖唐宁ONE-156平-现代风格-主卫.jpg

卫生间进行了合理的功能分区,原木色的手盆柜搭配灰白色系的瓷砖更有效的突出效果,表现的一体化。配备白色洁具,显得更加明亮。

龙湖唐宁ONE-156平-现代风格-走廊.jpg 龙湖唐宁ONE-156平-现代风格-平面图.jpg

案例设计师

李承成

设计师:李承成

从业时间:15年

设计理念:细节决定品质。

预约设计师

算算你家装修多少钱

报名即享丰厚赠品,享半价装修

免费报价
咨询热线:400-656-9909
20190221103704574636.jpg

精品设计案例

20180612134930523248.jpg 服务号二维码.jpg