立即预约 立即预约
免费定制整装家居

免费定制整装家居

一站置家 全程无忧 一省到底
hide.png

当前位置: 首页 > 装修案例效果图 > 旭辉御府

旭辉御府 99平 现代简约风格效果图

收藏
案例风格 现代简约 案例户型 三居 案例面积 99平米
楼盘名称 旭辉御府 设计师 林凤装饰设计师 案例类型 改善性住宅

设计理念:此案例中户型整体比较规整,无需大的改动,把其中一个卫生间变成了衣帽间,这样增加了不少的储物空间,设计中采用了 现代的黑白灰为主色调。整体凸显出了现代风格的高端,大气的 风格特点。

客厅
第1张
第2张
第3张
餐厅
第1张
卧室
第1张
卫生间
第1张
厨房
第1张
门厅
第1张
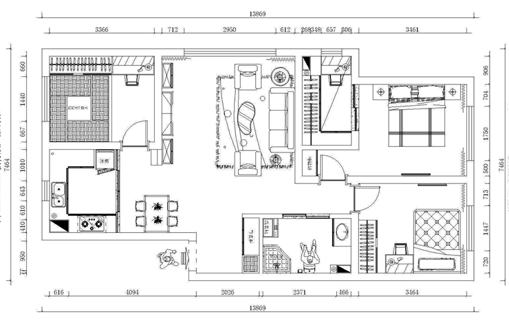
户型图
第1张
旭辉御府-99平-现代风格-首图.jpg 旭辉御府-99平-现代风格-背景墙.jpg 旭辉御府-99平-现代风格-客厅2.jpg

客厅以黑白灰的主色调,储物柜的利用延长了电视背景墙,让有一种舒适的观看体验。单椅,吊灯,落地台灯都有着简约的设计感,既不突兀,又别具一格。

旭辉御府-99平-现代风格-餐厅.jpg

餐厅深色的餐桌椅,加上灯光的点缀,可以让房主轻松,自由,舒适。餐厅背景墙的装饰更加了储物空间。虚光灯带的 设计 让整体感觉更加明亮。

旭辉御府-99平-现代风格-主卧室.jpg

主卧依照屋主的偏好,运用了简约沉稳的灰色,使整个空间以深色调装点出沉稳与质感,灰色系的床单、窗帘搭配营造静谧氛围。

旭辉御府-99平-现代风格-卫生间.jpg

黑色的浴室柜搭配浅色纹理的抛釉砖,打造出简洁的卫生空间,在浴室柜右上方做了壁龛,方便放置洗浴用品。黑白的搭配让空间不会单调,贴心的风暖设计,让卫生间及实用又宽敞明亮。

旭辉御府-99平-现代风格-厨房.jpg

厨房位于餐厅对面,极窄边框的玻璃滑门把厨房分隔成两个使用空间,不用担心厨房的油烟会散发到餐厅里面。定制的厨房多功能储物柜既能放置大大小小的餐盘,还预留了各种厨房电器的位置,增加了不少储物空间。

旭辉御府-99平-现代风格-门厅.jpg 旭辉御府-99平-现代风格-平面图.jpg

案例设计师

林凤装饰设计师

设计师:林凤装饰设计师

从业时间:6年

设计理念:源于生活,生活因设计而改变!

预约设计师

算算你家装修多少钱

报名即享丰厚赠品,品质装修

免费报价
咨询热线:400-656-9909
20190221103704574636.jpg

精品设计案例

20180612134930523248.jpg 服务号二维码.jpg