立即预约 立即预约
免费定制整装家居

免费定制整装家居

一站置家 全程无忧 一省到底
hide.png

当前位置: 首页 > 装修案例效果图 > 保利达江湾城

保利达江湾城 168平 欧式风格效果图

收藏
案例风格 欧式 案例户型 四居 案例面积 168平米
楼盘名称 保利达江湾城 设计师 林凤设计师 案例类型 改善性住宅

设计理念:欧式简约风格就是简化了的欧式装修,简欧式装修依然会保留欧式装修的一些元素,但更偏向简洁大方,注意融入现代元素,线条完美、细节精致,保留古典欧式装修的大气还增加了浪漫与惬意,相比之下简欧式装修更符合人们对家居装修风格的追求。不过欧式风格留不开的就是大气,所以最适合用在大面积的房子里面,若房子过小就没办法显示出欧式装修的风格气势,反而让人觉得压抑不舒服。 本案以欧式风格为主,整体方案上做了一些调整,合理的规划了布局,增加空间的利用率,以白色结构为主,把传统的结构形式通过重新设计组合以另一种名族特色的标志符号出现。

客厅
第1张
第2张
第3张
餐厅
第1张
第2张
卧室
第1张
卫生间
第1张
厨房
第1张
过廊
第1张
第2张
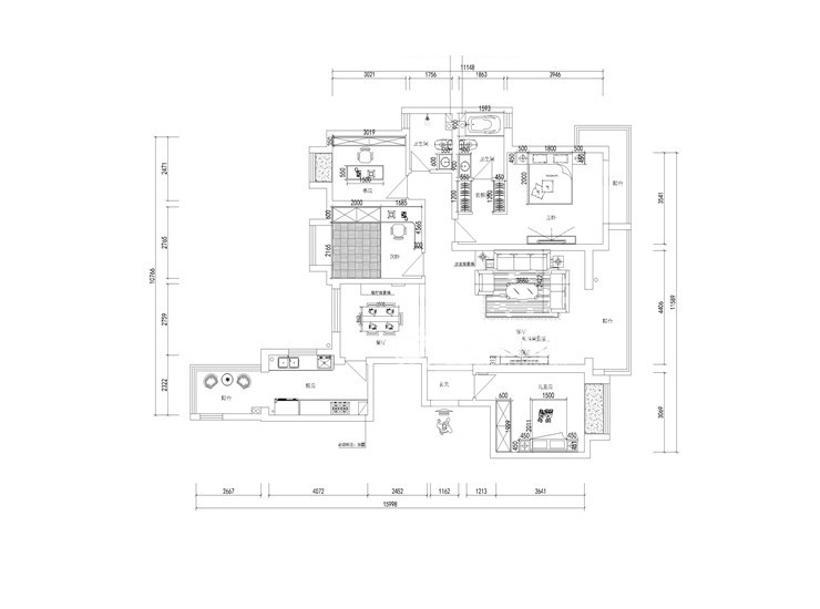
户型图
第1张
  • 案例详情

保利达江湾城-168平-欧式风格-背景墙.jpg 保利达江湾城-168平-欧式风格-客厅2.jpg 保利达江湾城-168平-欧式风格-客厅1.jpg

客厅整个空间以浅色为主木质结构点缀,体现欧式的古典与素雅,以大理石为电视背景墙,金属边条镶嵌,整体显得高贵而不奢华。

保利达江湾城-168平-欧式风格-餐厅.jpg 保利达江湾城-168平-欧式风格-餐厅.jpg 保利达江湾城-168平-欧式风格-卧室.jpg

采用了客户最喜欢的蓝色。吊灯采用欧式吊灯,顶面未做过多的修饰,整体感觉简单大气。

保利达江湾城-168平-欧式风格-卫生间.jpg

整个墙面采用仿理石纹理的墙砖,浴缸采用了砌筑浴缸。

保利达江湾城-168平-欧式风格-厨房.jpg

厨房整个空间有黑白灰为主,墙砖采用白色为主色调的墙砖,增加了厨房整个空间的亮度,厨房以黑色为主,与白色墙砖相呼应。

保利达江湾城-168平-欧式风格-过廊.jpg 保利达江湾城-168平-欧式风格-过廊1.jpg 保利达江湾城-168平-欧式风格-平面图.jpg

案例设计师

林凤设计师

设计师:林凤设计师

从业时间:5年

设计理念:设计源于生活,生活因设计而改变,用有限的空间。做无限的设计,成就梦想之家。

预约设计师

算算你家装修多少钱

报名即享丰厚赠品,享半价装修

免费报价
咨询热线:400-656-9909
20190221103704574636.jpg

精品设计案例

20180612134930523248.jpg 服务号二维码.jpg