立即预约 立即预约
免费定制整装家居

免费定制整装家居

一站置家 全程无忧 一省到底
hide.png

当前位置: 首页 > 装修案例效果图 > 金地明悦

金地明悦 86平 美式风格效果图

收藏
案例风格 美式 案例户型 二居 案例面积 86平米
楼盘名称 金地明悦 设计师 林凤装饰设计师 案例类型 改善性住宅

设计理念:美式的装修风格,突出了业主稳重大气的性格特点。白色的扥光和地砖,让美式的黑灰风整体彰显的不是那么压抑,让大气和敞亮完美的结合在了一起。

客厅
第1张
第2张
第3张
餐厅
第1张
第2张
卧室
第1张
卫生间
第1张
厨房
第1张
门厅
第1张
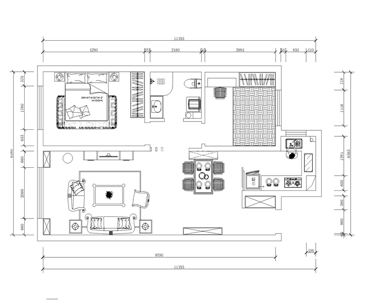
户型图
第1张
  • 案例详情

金地明悦-86平-美式风格-客厅2.jpg 金地明悦-86平-美式风格-客厅.jpg 金地明悦-86平-美式风格-客厅3.jpg

客厅采用米黄色地砖,温暖的感觉,大多采用实木家具,崇尚古典的韵味,又以造型比较随意,线条流畅主要考虑到了实用性和舒适性,给人感觉到户主的稳重大气,却又拥有着古典的气质和浪漫气息。

金地明悦-86平-美式风格-餐厅2.jpg 金地明悦-86平-美式风格-餐厅.jpg

餐厅的灯光是很重要的,光的亮度不能太强又不能太弱,灯光以烛光色偏暖色为基调,餐椅采用创意性餐椅,在以白色家具,灰色墙面,黑色酒瓶,来突出整个空间的黑白灰,在餐桌的旁边壁挂了一些壁画,更能体现出业主的品味,可以增加一下餐厅的情调。

金地明悦-86平-美式风格-卧室.jpg

主卧室房间的色彩明度较暖所以用室内的装饰来点缀整个房间让卧室附有一丝活力。以白色踢脚线为辅色对整体空间的墙边做一个修饰,使整个空间给人一种特别暖心的感觉,让人丝毫不显局促。

金地明悦-86平-美式风格-卫生间.jpg

卫生间采用暖色转,采用白的吊柜,吊柜方便打理,白色柜体,显得卫生间更干净整洁

金地明悦-86平-美式风格-厨房.jpg

厨房整体采用灰色瓷砖,地柜柜体采用原木色与灰色墙砖相结合,整体搭配更能体现出更高档一些。

金地明悦-86平-美式风格-门厅.jpg 金地明悦-86平-美式风格-平面布局图.jpg

案例设计师

林凤装饰设计师

设计师:林凤装饰设计师

从业时间:9年

设计理念:设计回归本位 细节成就品质

预约设计师

算算你家装修多少钱

报名即享丰厚赠品,享半价装修

免费报价
咨询热线:400-656-9909
20190221103704574636.jpg

精品设计案例

20180612134930523248.jpg 服务号二维码.jpg