立即预约 立即预约
免费定制整装家居

免费定制整装家居

一站置家 全程无忧 一省到底
hide.png

当前位置: 首页 > 装修案例效果图 > 雅居乐

雅居乐 134平 中式风格效果图

收藏
案例风格 中式 案例户型 三居 案例面积 134平米
楼盘名称 雅居乐 设计师 林凤设计师 案例类型 改善性住宅

设计理念:业主是改善性住房,家里主要是3口人居住,业主性格非常稳重,但是别不知道自己更适合什么装修风格,最后我给业主定义了中式风格,在我跟业主沟通后业主非常的喜欢,下面我们就来了解下中式的魅力!
本案风格是最适合我们中国人的风格——中式风格,中式风格具有装修界里不可替代的经典设计效果和地位,身为传统风格本该由我们国人发扬光大并且需要更多人关注和喜爱,中式风格一直是不温不火的存在,但是现在有着趋于年轻化的趋势,越来越多的年轻人已经接受和喜爱中式风格!

客厅
第1张
第2张
第3张
餐厅
第1张
第2张
卧室
第1张
第2张
卫生间
第1张
厨房
第1张
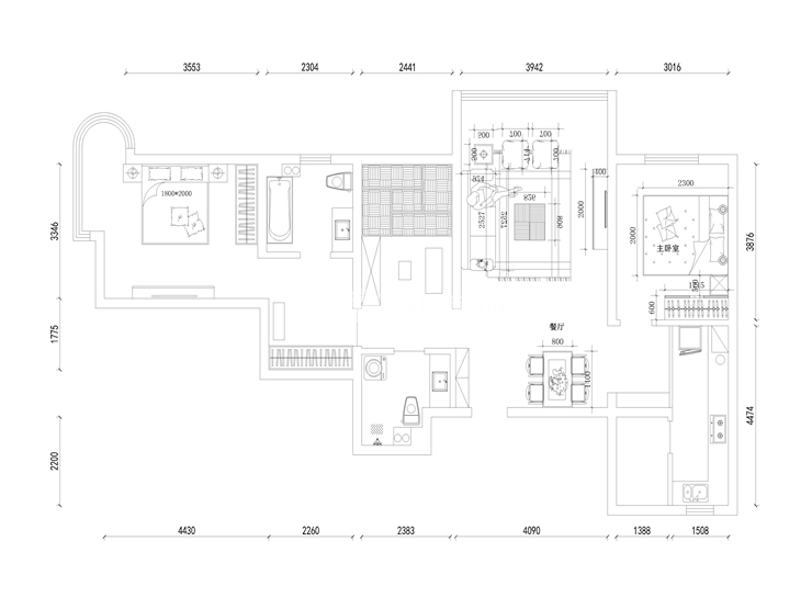
户型图
第1张
  • 案例详情

雅居乐-134平-中式风格-客厅1.jpg 雅居乐-134平-中式风格-客厅3.jpg 雅居乐-134平-中式风格-客厅2.jpg

在客厅我做的是传统与现代的相结合,在电视背景墙我用传统的中式实木雕花隔断配合着理石上墙,让空间既时尚又稳重!在沙发背景墙上也是做了实木的装饰隔断,让沙发背景墙与电视背景墙有着相互呼应,并且在背景墙上贴了碧绿色的壁纸,让整体空间更通透一些!

雅居乐-134平-中式风格-餐厅1.jpg 雅居乐-134平-中式风格-餐厅2.jpg

餐厅做的相对来说比较简单实用,并且大方的展示出来整体空间的效果,简单的棚顶设计非常有考究,餐厅棚顶做的矩形造型,跟餐桌的矩形相呼应,然后门厅棚顶做的圆形造型,正好形成了中式最经典的圆方结合,吧中式的设计效果体现的淋漓尽致

雅居乐-134平-中式风格-卧室2.jpg 雅居乐-134平-中式风格-卧室1.jpg

卧室我要复杂些设计,因为业主比较注重生活品质,在卧室的休息区主要以暖色为主,并且多做一些软包和硬包材料来设计,让整个卧室空间显得舒适温暖

雅居乐-134平-中式风格-卫生间.jpg

卫生间也是以暖色点为主,让空间显得温馨稳重,让业主在使用过程中能多体现出设计师的用心良苦,在每一个空间都能表现出中式风格的魅力

雅居乐-134平-中式风格-厨房.jpg

厨房相对来说比较保守设计,主要把中式设计风格颜色搭配好,在实用性和使用性上多下点功夫,细节决定成败

雅居乐-134平-中式风格-平面图.jpg

案例设计师

林凤设计师

设计师:林凤设计师

从业时间:9年

设计理念:细节是基础,专注是根本

预约设计师

算算你家装修多少钱

报名即享丰厚赠品,享半价装修

免费报价
咨询热线:400-656-9909
20190221103704574636.jpg

精品设计案例

20180612134930523248.jpg 服务号二维码.jpg