立即预约 立即预约
免费定制整装家居

免费定制整装家居

一站置家 全程无忧 一省到底
hide.png

当前位置: 首页 > 装修案例效果图 > 格林玫瑰湾

格林玫瑰湾 176平 现代简约风格效果图

收藏
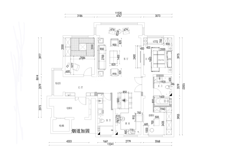
案例风格 现代简约 案例户型 三居 案例面积 176平米
楼盘名称 格林玫瑰湾 设计师 沈阳林凤装饰 案例类型 儿童房

设计理念:本案以简约欧式风格为主,空间色调以明快的节奏展现,力求为业主打造一个时尚而不反腐的欧式空间!

客厅
第1张
第2张
第3张
餐厅
第1张
卧室
第1张
卫生间
第1张
第2张
厨房
第1张
门厅
第1张
户型图
第1张
格林玫瑰湾-176平-现代风格-客厅2.jpg 格林玫瑰湾-176平-现代风格-客厅1.jpg 格林玫瑰湾-176平-现代风格-客厅3.jpg

本案简欧风格,大厅以简洁的设计手法,并无采用繁复的吊顶造型,在满足其功能及装饰性的前提下,做了减法,同时灰色仿理石地砖的呼应,让此空间更加的充满年轻的气息,而无欧式风格给人的厚重感受。

格林玫瑰湾-176平-现代风格-餐厅.jpg

餐厅的餐桌在设计考虑上采用了深咖大理石台面,搭配浅色的餐厅空间着实增加其层次感,背景墙简单石膏线勾勒出简洁的造型,无不融合其整体空间,让每一位在此就餐者都有个一放松而愉悦的就餐环境。

格林玫瑰湾-176平-现代风格-卧室.jpg

卧室一个我们在家使用率最频使用时间最长的空间,一定要做的更加舒适温馨,适于休息,地板采用人字铺贴法,追求其个性的同时,又不失其时尚的特点,床头软包的处理给人更加柔软舒适的空间效果。

格林玫瑰湾-176平-现代风格-卫生间.jpg 格林玫瑰湾-176平-现代风格-主卫.jpg

本案卫生间采用波浪纹的刨釉瓷砖,让原本封闭的卫生间有一丝灵动的空间效果,定制的手台与淋浴间的设计,在卫生方面解决掉了卫生死角问题,增加卫生间的整洁度,也是整个空间业主对于家的期盼。

格林玫瑰湾-176平-现代风格-厨房.jpg

本案采用封闭式厨房,业主二人还是比较从实际使用出发并结合以往经验,而且在橱柜设计上要求做到橱柜门板简介易打理,所以在设计上采用现代的装饰手法,橱柜采用汽车漆面板,墙面瓷砖采用地砖上墙,为业主提供一个便于打理而愉悦的烹饪空间。

格林玫瑰湾-176平-现代风格-门厅.jpg 格林玫瑰湾-176平-现代风格-平面图.jpg

案例设计师

沈阳林凤装饰

设计师:沈阳林凤装饰

从业时间:12年

设计理念:我们不是艺术家,我们只是用艺术的手法来做实用的东西。

预约设计师

算算你家装修多少钱

报名即享丰厚赠品,品质装修

免费报价
咨询热线:400-656-9909
20190221103704574636.jpg

精品设计案例

20180612134930523248.jpg 服务号二维码.jpg