立即预约 立即预约
免费定制整装家居

免费定制整装家居

一站置家 全程无忧 一省到底
hide.png

当前位置: 首页 > 装修案例效果图 > 中海锦城

中海锦城 109平 欧式风格效果图

收藏
案例风格 欧式 案例户型 三居 案例面积 109平米
楼盘名称 中海锦城 设计师 林凤设计师 案例类型 婚房

设计理念:本方案以简欧风格为主题,简欧风格虽然有异于欧式风格,但是它还是保留了欧式的材质、色彩的大致风格,仍然可以很强烈地感受传统的历史痕迹与浑厚的文化底蕴,同时又放弃了过于复杂的肌理和装饰,简化了线条,适合喜爱简单的人。

  • 案例详情

中海锦城-109平-简欧风格-沙发墙.jpg 中海锦城-109平-简欧风格-电视墙.jpg 中海锦城-109平-简欧风格-电视墙1.jpg 中海锦城-109平-简欧风格-沙发墙1.jpg 中海锦城-109平-简欧风格-头图.jpg

可以再平面布局中可以看见客厅的空间是最大的,放带有贵妃椅的沙发是没有问题的。那么在空间效果的设计中本设计师采用了强烈的色彩对比,在沙发上体现个性的一面,在电视背景墙中采用护墙板造型体现大方,又不失业主的尊贵身份。

中海锦城-109平-简欧风格-餐厅2.jpg 中海锦城-109平-简欧风格-餐厅1.jpg 中海锦城-109平-简欧风格-餐厅.jpg

餐厅以大理石台面欧式餐桌搭配布艺欧式新古典风格餐椅,与餐厅吊顶遥相呼应并搭配一副欧式抽象壁画,使其餐厅空间突出欧式氛围。

中海锦城-109平-简欧风格-主卧室.jpg 中海锦城-109平-简欧风格-客卧室.jpg

卧室的衣柜采用的是实木的,卧室的墙面采用的是与衣柜不相同材质,壁纸更会增加房间的通透感和质感。与木地板融合让人感到一种很温馨的感觉,窗帘做出跳色很做出个性化的温馨感。

中海锦城-109平-简欧风格-卫生间.jpg 中海锦城-109平-简欧风格-干湿分离区.jpg

4.卫生间采用防水石膏板吊棚,整体棚面感觉简洁大方,瓷砖选用深色亚光瓷砖搭配原木色洗漱柜与陶瓷的手盆提出对比度,卫生间给人的整体视觉感觉上得到提升。

中海锦城-109平-简欧风格-厨房.jpg

厨房的设计风格直接影响到住宅内设计的风格,格局的合理性。灰色墙体砖与白色吸塑橱柜颇显出自然风姿,深浅搭配颜色的运用,呼应搭配也更好的满足烹饪的心情,民以食为天不是白说的

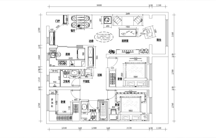
中海锦城-109平-简欧风格-过廊.jpg 中海锦城-109平-简欧风格-过廊1.jpg 中海锦城-109平-简欧风格-平面图.jpg

案例设计师

林凤设计师

设计师:林凤设计师

从业时间:9年

设计理念:想客户之所想,急客户之所急,永远吧客户的利益放在自己的利益之上。

预约设计师

算算你家装修多少钱

报名即享丰厚赠品,享半价装修

免费报价
咨询热线:400-656-9909
20190221103704574636.jpg

精品设计案例

20180612134930523248.jpg 服务号二维码.jpg