立即预约 立即预约
免费定制整装家居

免费定制整装家居

一站置家 全程无忧 一省到底
hide.png

当前位置: 首页 > 装修案例效果图 > 华润二十四城

华润二十四城 102平 港式风格效果图

收藏
案例风格 港式 案例户型 三居 案例面积 102平米
楼盘名称 华润二十四城 设计师 林凤设计师 案例类型 改善性住宅

设计理念:本案例定位为现代港式风格,家具主要采用深色实木家具和理石上墙,首先先考虑实用性在考虑美观。

客厅
第1张
第2张
第3张
卧室
第1张
第2张
第3张
卫生间
第1张
过廊
第1张
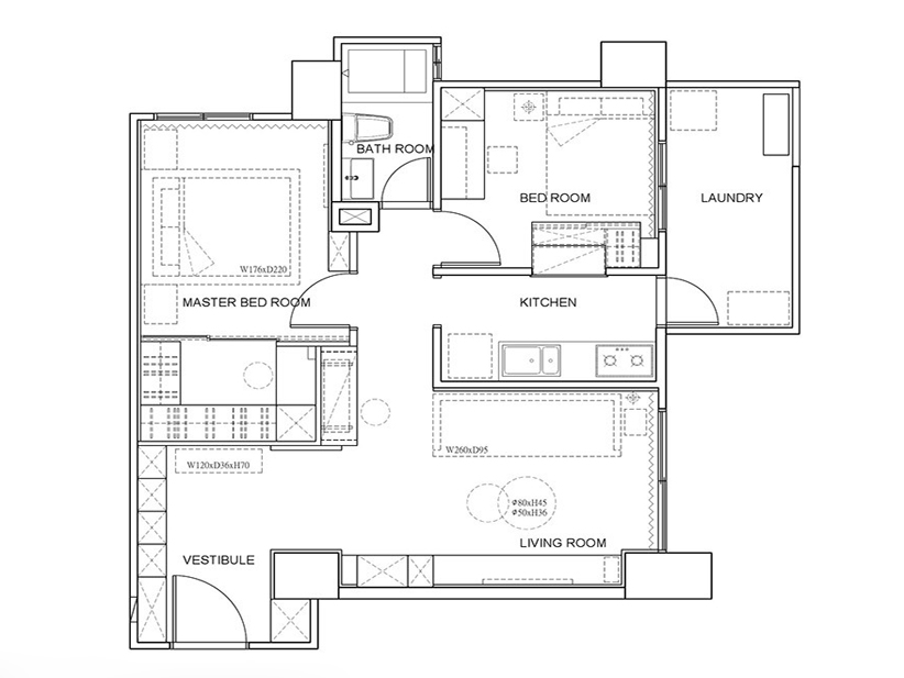
户型图
第1张
华润二十城-102平-现代港式风格-客厅3.jpg 华润二十城-102平-现代港式风格-客厅.jpg 华润二十城-102平-现代港式风格-客厅2.jpg

客厅我们采用灰色系亚光瓷砖,电视背景利用理石上墙使整个空间更立体,更上档次,沙发用高级灰色来使空间更和谐。

华润二十城-102平-现代港式风格-卧室.jpg 华润二十城-102平-现代港式风格-主卧室.jpg 华润二十城-102平-现代港式风格-次卧室.jpg

卧室重点在于灯光,明居暗室,主卧室可采用局部的深紫色,即又神秘又高档,只有在床头背景墙的位置我们选用了直纹暖系壁纸,暖白色的图案来呼应整体空间,看上去即活泼又温馨。

华润二十城-102平-现代港式风格-卫生间.jpg

卫生间采用洞石砖,和白色瓷体相搭配,使卫生间层次分明。在用暖色的灯带烘托气氛,起到点睛之笔。

华润二十城-102平-现代港式风格-走廊.jpg 华润二十城-102平-现代港式风格-平面布局.jpg

案例设计师

林凤设计师

设计师:林凤设计师

从业时间:8年

设计理念:合理划分空间,让设计融入生活,营造自然,品味,格调。

预约设计师

算算你家装修多少钱

报名即享丰厚赠品,品质装修

免费报价
咨询热线:400-656-9909
20190221103704574636.jpg

精品设计案例

20180612134930523248.jpg 服务号二维码.jpg