立即预约 立即预约
免费定制整装家居

免费定制整装家居

一站置家 全程无忧 一省到底
hide.png

当前位置: 首页 > 装修案例效果图 > 中海国际社区

中海国际社区 134平 现代简约风格效果图

收藏
案例风格 现代简约 案例户型 三居 案例面积 134平米
楼盘名称 中海国际社区 设计师 李雪 案例类型 改善性住宅

设计理念:本案是以现代风格为主的设计,室内温馨,简单,没有太多的复杂,这种搭配令空间充满恒久的亲和力!让人比较容易接受的风格,是最值得选择。

客厅
第1张
第2张
第3张
餐厅
第1张
第2张
卧室
第1张
卫生间
第1张
厨房
第1张
过廊
第1张
第2张
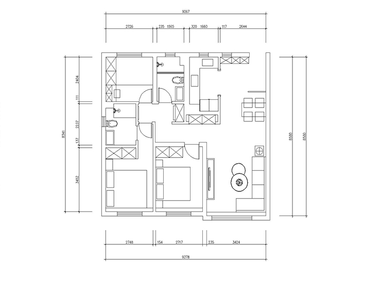
户型图
第1张
中海国际社区-134平-现代风格-客厅2.jpg 中海国际社区-134平-现代风格-客厅.jpg 中海国际社区-134平-现代风格-电视背景墙.jpg

客户喜欢简单又不失高档的客厅。通过灯光的效果进而打造温馨的客厅,灰色的沙发配上简约的抱枕从而打造简单又不奢华的环境。

中海国际社区-134平-现代风格-餐厅2.jpg 中海国际社区-134平-现代风格-餐厅.jpg

本案餐厅没有什么复杂的装饰,木色的背景给业主带来了一种温馨,让业主在就餐的过程中可以得以放松。

中海国际社区-134平-现代风格-卧室.jpg

本案的卧室地面采用深色地板,给人带来一种高档的感觉,卧室里淡黄色的背景墙给人带来一种温馨的感觉。

中海国际社区-134平-现代风格-卫生间.jpg

卫生间墙地砖选择蓝色系列的砖给人带来的是一种简单,浴屏的独特设计分开了干湿空间。

中海国际社区-134平-现代风格-厨房.jpg

厨房主要以明亮的暗色为主,能给人带来愉悦放松的心态,使人在烹饪过程中享受生活,热爱生活。

中海国际社区-134平-现代风格-过廊.jpg 中海国际社区-134平-现代风格-过廊2.jpg 中海国际社区-134平-现代风格-平面图.jpg

案例设计师

李雪

设计师:李雪

从业时间:6年

设计理念:设计源于生活,而又升华于生活。

预约设计师

算算你家装修多少钱

报名即享丰厚赠品,品质装修

免费报价
咨询热线:400-656-9909
20190221103704574636.jpg

精品设计案例

20180612134930523248.jpg 服务号二维码.jpg