立即预约 立即预约
免费定制整装家居

免费定制整装家居

一站置家 全程无忧 一省到底
hide.png

当前位置: 首页 > 装修案例效果图 > 中海和平之门

中海和平之门 85平 现代简约风格效果图

收藏
案例风格 现代简约 案例户型 二居 案例面积 85平米
楼盘名称 中海和平之门 设计师 魏东超 案例类型 婚房

设计理念:业主家庭情况及要求:一中年夫妇,改善型居室,家中物品多,希望有较实用的储物功能。客厅说明:强调客厅空间宽敞、与餐厅,厨房内外通透,运用了亮黄与蓝的对比色来冲击视觉效果。本案设计亮点在于温馨,明朗,在储藏空间利用率达到最大化的同时,能够达到更好的视觉效果。使人提升居住的舒适性。

客厅
第1张
第2张
卧室
第1张
卫生间
第1张
第2张
厨房
第1张
门厅
第1张
过廊
第1张
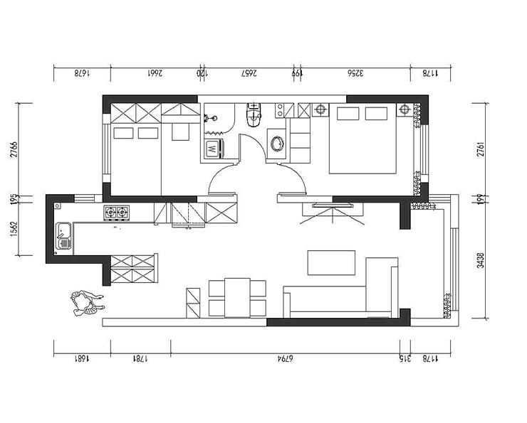
户型图
第1张
  • 案例详情

和平之门-85平-现代风格-客厅.jpg 和平之门-85平-现代风格-客厅1.jpg

强调客厅空间宽敞、与餐厅,厨房内外通透,运用了亮黄与蓝的对比色来冲击视觉效果。

和平之门-85平-现代风格-榻榻米.jpg

本案灯光多采用反回光、点光源等辅助灯光做为渲染墙面材质,营造了温馨浪漫气氛,业主使用非常便捷。整让忙碌了一天的业主可以有一个空间可以休闲,随心所欲享受一家人的幸福。亮黄色软饰与整体色彩元素相呼应。

和平之门-85平-现代风格-次卫.jpg 和平之门-85平-现代风格-卫生间.jpg 和平之门-85平-现代风格-厨房.jpg

封闭式式厨房,简洁通透,拉伸空间感。白色亮面烤漆橱柜面板,使得整个空间中充满着一种现代化的休闲气息。

和平之门-85平-现代风格-门厅.jpg 和平之门-85平-现代风格-过廊.jpg 和平之门-85平-现代风格-户型图.jpg

案例设计师

魏东超

设计师:魏东超

从业时间:14年

设计理念:在有限的空间里创造无限的可能

预约设计师

算算你家装修多少钱

报名即享丰厚赠品,享半价装修

免费报价
咨询热线:400-656-9909
20190221103704574636.jpg

精品设计案例

20180612134930523248.jpg 服务号二维码.jpg