立即预约 立即预约
免费定制整装家居

免费定制整装家居

一站置家 全程无忧 一省到底
hide.png

当前位置: 首页 > 装修案例效果图 > 龙湖天寰原著︱现代轻奢

龙湖天寰原著︱现代轻奢 300平 轻奢风格效果图

收藏
案例风格 轻奢 案例户型 复式 案例面积 300平米
楼盘名称 龙湖天寰原著 设计师 白涵琦 案例类型 改善性住宅

设计理念:本案采用现阶段十分流行的现代轻奢风格,用各种具有轻奢风格的金属配饰点缀空间,搭配出具有轻奢风格的现代设计并且老人房有独立的风格特色。业主是一家三口和一位老人,由于是改善型住房所以对设计风格要求很高,基本上每个空间都有相应的要求,风格更加偏向现代轻奢风格,老人的房间风格更符合他们的想法。

客厅
第1张
第2张
第3张
餐厅
第1张
卧室
第1张
第2张
卫生间
第1张
厨房
第1张
阳台
第1张
儿童房
第1张
休闲区
第1张
门厅
第1张
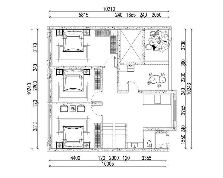
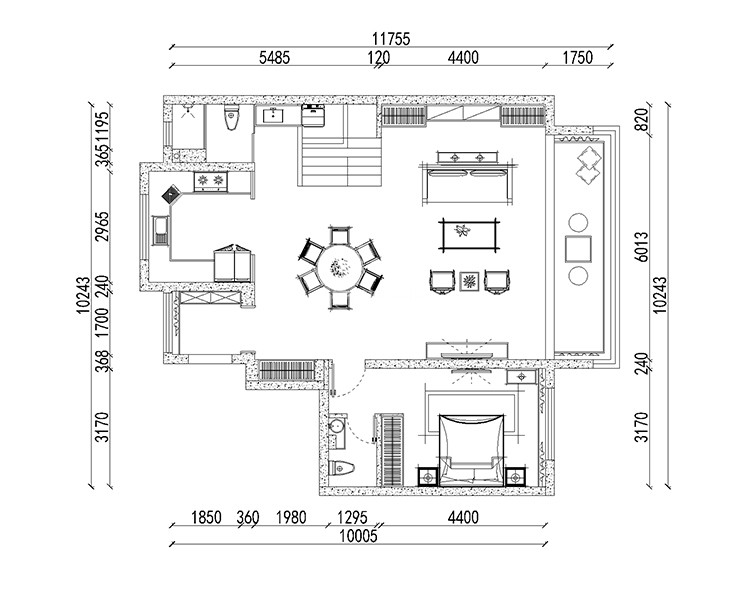
户型图
第1张
第2张
龙湖天寰原著 300平 现代轻奢 客厅.jpg 龙湖天寰原著 300平 现代轻奢 客厅 .jpg 龙湖天寰原著 300平 现代轻奢 客厅  .jpg

客厅与餐厅相通,空间更宽敞,整体吊顶没有过多造型,凸显现代风格的简约。电视背景墙运用大理石,金属线条作为点缀,凸显大气,使空间更上档次,皮质沙发和理石茶几都是现代轻奢的代表家具,都能凸显现代轻奢风格。

龙湖天寰原著 300平 现代轻奢 餐厅.jpg

餐厅在一楼,与客厅相邻,色调呼应,金属材质的吊灯更能凸显轻奢风格。理石材质的餐桌让空间显得更加整洁大气,并且做的是圆桌可以坐更多的人,还很上档次。

龙湖天寰原著 300平 现代轻奢 老人房.jpg 龙湖天寰原著 300平 现代轻奢 主卧.jpg

主卧室床头背景墙运用护墙板,压金属扣条,使空间更加上档次。金属吊灯和金属边框的挂画点缀整个空间,视觉效果更好。

龙湖天寰原著 300平 现代轻奢 卫生间.jpg

卫生间采用灰白色纹路墙砖和地砖,使空间在视觉效果上扩大,加上金属边框挂画让空间颜色更加饱满,且卫生间做了干湿分离更加方便使用。

龙湖天寰原著 300平 现代轻奢 厨房.jpg

厨房是封闭式,运用暖灰色调,采用浅灰色的柜体和理石台面,更能渲染氛围。

龙湖天寰原著 300平 现代轻奢 露台.jpg 龙湖天寰原著 300平 现代轻奢 儿童房.jpg

蓝灰色墙面与木色地板颜色碰撞,凸显主题风格。挂画更显童趣,使空间主题不显沉闷,整体造型没有特别幼稚还很符合儿童房,孩子没有特别小在大些也不会显幼稚。

龙湖天寰原著 300平 现代轻奢 休闲室.jpg 龙湖天寰原著 300平 现代轻奢 玄关.jpg 龙湖天寰原著 300平 现代轻奢 一楼户型图.jpg 龙湖天寰原著 300平 现代轻奢 二楼户型图.jpg

案例设计师

白涵琦

设计师:白涵琦

从业时间:10年

设计理念:设计实现客户家居梦想

预约设计师

算算你家装修多少钱

报名即享丰厚赠品,享半价装修

免费报价
咨询热线:400-656-9909
20190221103704574636.jpg

精品设计案例

20180612134930523248.jpg 服务号二维码.jpg