立即预约 立即预约
免费定制整装家居

免费定制整装家居

一站置家 全程无忧 一省到底
hide.png

当前位置: 首页 > 装修案例效果图 > 九州御府

九州御府 130平 现代简约风格效果图

收藏
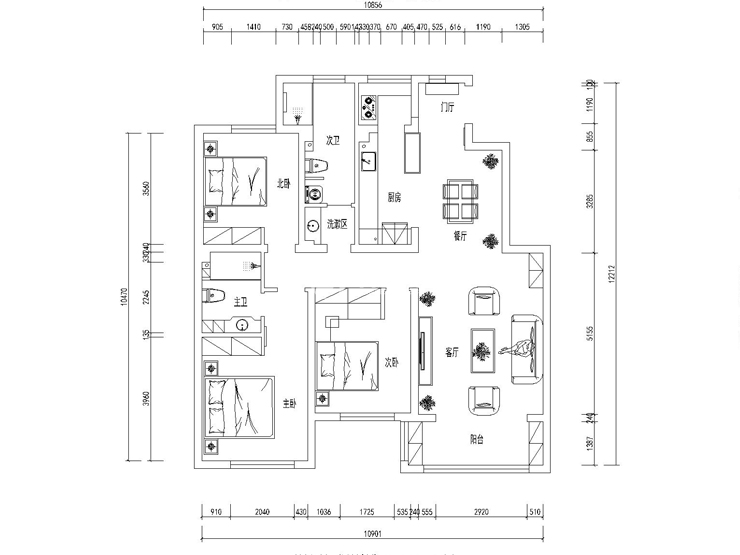
案例风格 现代简约 案例户型 三居 案例面积 130平米
楼盘名称 九州御府 设计师 林凤设计师 案例类型 改善性住宅

设计理念:一个家,一段梦,一种心境,一种生活方式,发现最美的家,过诗一般的生活。

九州御府-130平-后现代风格-客厅2.jpg 九州御府-130平-后现代风格-客厅1.jpg 九州御府-130平-后现代风格-客厅4.jpg 九州御府-130平-后现代风格-客厅3.jpg

以白灰为硬装部分的主色,咖色系的软装为辅。让整个居家的色调非常舒适,不会给人带来冰冷的居家感觉,采用L型沙发舒适的同时也不失美观。

九州御府-130平-后现代风格-餐厅.jpg

同客厅色系采用白色与咖色为主色,另加吧台实用的同时也不失美观。

九州御府-130平-后现代风格-次卧室1.jpg 九州御府-130平-后现代风格-次卧室2.jpg 九州御府-130平-后现代风格-主卧室3.jpg 九州御府-130平-后现代风格-次卧室3.jpg 九州御府-130平-后现代风格-次卧室5.jpg 九州御府-130平-后现代风格-主卧室1.jpg 九州御府-130平-后现代风格-次卧室4.jpg 九州御府-130平-后现代风格-主卧室2.jpg

主卧整体以咖色与灰色,床头采用咖色条纹状壁纸,窗帘采用淡绿色,非常有层高感,显得厚重不失文雅。因为是女儿房所以色彩采用的相对活泼更有活力一些,淡蓝色的乳胶漆,咖色的窗帘,搭配上白色的衣柜和一点点粉色的床品。

九州御府-130平-后现代风格-次卫3.jpg 九州御府-130平-后现代风格-主卫2.jpg 九州御府-130平-后现代风格-次卫1.jpg 九州御府-130平-后现代风格-主卫3.jpg 九州御府-130平-后现代风格-主卫1.jpg 九州御府-130平-后现代风格-次卫2.jpg 九州御府-130平-后现代风格-厨房3.jpg 九州御府-130平-后现代风格-厨房1.jpg 九州御府-130平-后现代风格-厨房2.jpg 九州御府-130平-后现代风格-户型图.jpg

案例设计师

林凤设计师

设计师:林凤设计师

从业时间:12年

设计理念:让设计成为艺术,让艺术进入生活。

预约设计师

算算你家装修多少钱

报名即享丰厚赠品,享半价装修

免费报价
咨询热线:400-656-9909
20190221103704574636.jpg

精品设计案例

20180612134930523248.jpg 服务号二维码.jpg