立即预约 立即预约
免费定制整装家居

免费定制整装家居

一站置家 全程无忧 一省到底
hide.png

当前位置: 首页 > 装修案例效果图 > 孔雀城

孔雀城 270平 欧式风格效果图

收藏
案例风格 欧式 案例户型 四居 案例面积 270平米
楼盘名称 孔雀城 设计师 林凤装饰设计师 案例类型 改善性住宅

设计理念:美式风格在空间方面强调功能性和舒适度。该案例以暖色调为背景基调,用古典美式元素来体现业主不俗的品味。

客厅
第1张
第2张
第3张
第4张
餐厅
第1张
卧室
第1张
第2张
卫生间
第1张
书房
第1张
门厅
第1张
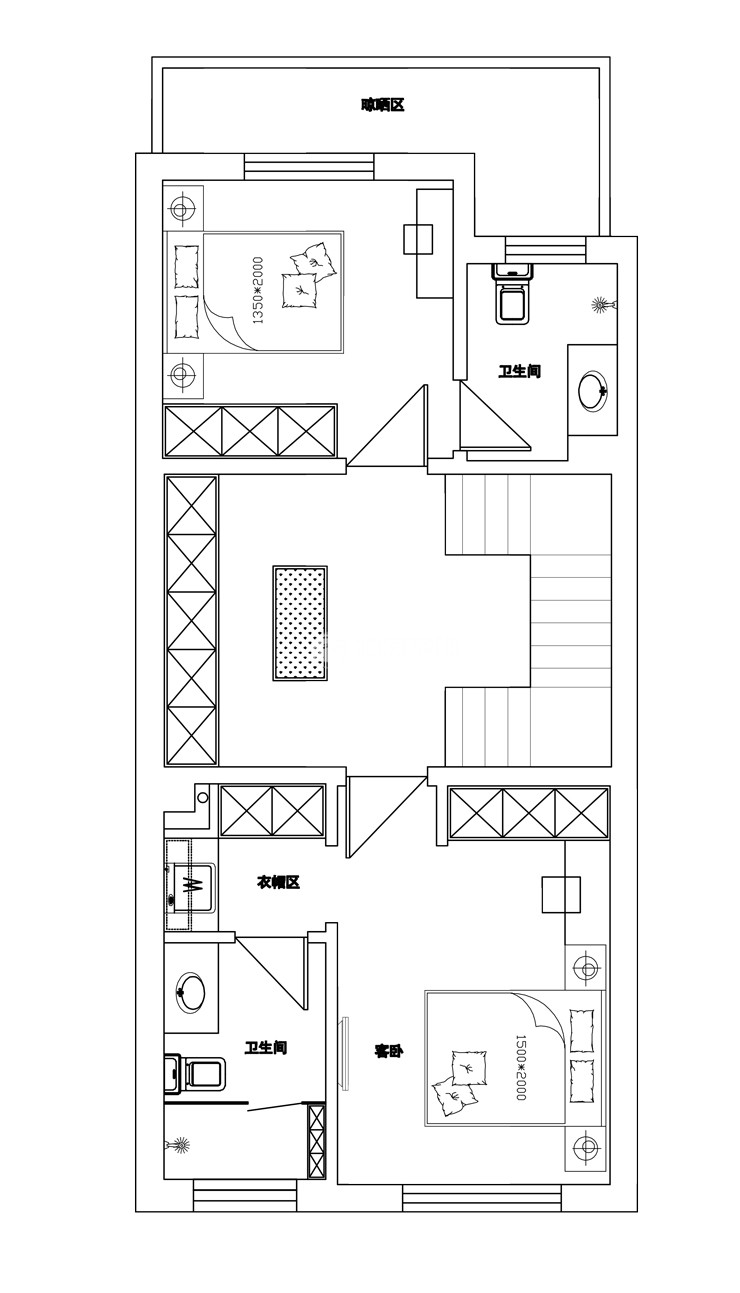
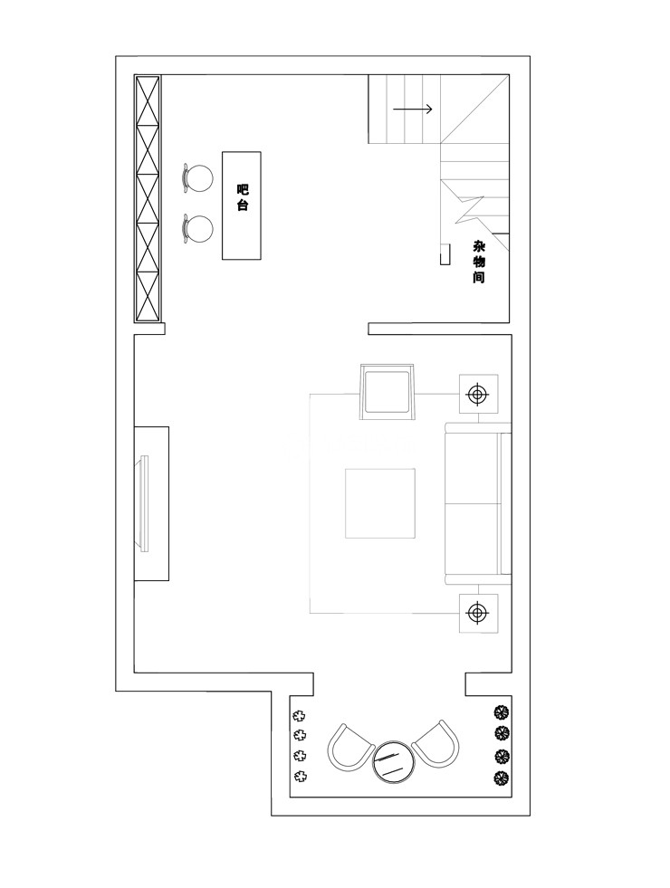
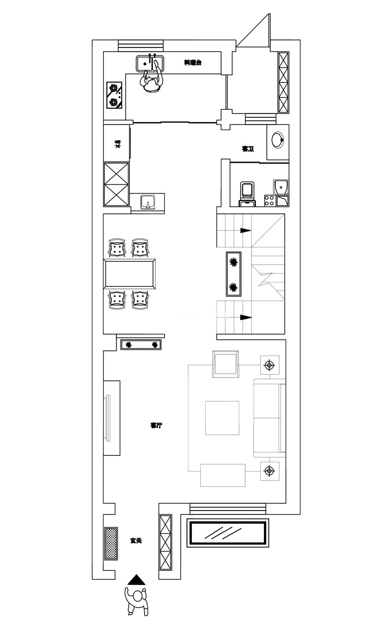
户型图
第1张
第2张
第3张
第4张
第5张
  • 案例详情

孔雀城-270平-美式风格-客厅.jpg 孔雀城-270平-美式风格-客厅1.jpg 孔雀城-270平-美式风格-客厅2.jpg 孔雀城-270平-美式风格-地下室.jpg

客厅天花板采用石膏板吊顶配合欧式石膏线,并配以精致的水晶吊顶,营造出一种怀旧、浪漫的感觉。以复古砖作为地面装饰材料,体现美式风格的质朴和自由,复古造型的沙发,以及茶几都具有舒适的质感,让美式传统复古风格得以进一步的彰显。

孔雀城-270平-美式风格-餐厅.jpg

粗犷、大气的美式餐桌椅,搭配造型镜子墙,让人迷失在时光隧道中。与厨房遥相呼应。

孔雀城-270平-美式风格-客卧.jpg 孔雀城-270平-美式风格-主卧室.jpg

卧室空间的地面装饰材料选用脚感更舒适的木地板,墙面则采用驼色乳胶漆粉刷,表现出美式风格追求简单、实用的特点。

孔雀城-270平-美式风格-卫生间.jpg 书房.jpg 孔雀城-270平-美式风格-玄关.jpg

玄关是入门的第一道风景,在注重收纳功能的同时也定了美式自由的整体风格。

孔雀城-270平-美式风格-阁楼平面图.jpg 孔雀城-270平-美式风格-1层平面图.jpg 孔雀城-270平-美式风格-3层平面图.jpg 孔雀城-270平-美式风格-2层平面图.jpg 孔雀城-270平-美式风格-地下室平面图.jpg

案例设计师

林凤装饰设计师

设计师:林凤装饰设计师

从业时间:15年

设计理念:用设计再现人文

预约设计师

算算你家装修多少钱

报名即享丰厚赠品,享半价装修

免费报价
咨询热线:400-656-9909
20190221103704574636.jpg

精品设计案例

20180612134930523248.jpg 服务号二维码.jpg