立即预约 立即预约
免费定制整装家居

免费定制整装家居

一站置家 全程无忧 一省到底
hide.png

当前位置: 首页 > 装修案例效果图 > 格林玫瑰湾

格林玫瑰湾 91平 现代简约风格效果图

收藏
案例风格 现代简约 案例户型 二居 案例面积 91平米
楼盘名称 格林玫瑰湾 设计师 林凤装饰设计师 案例类型 改善性住宅

设计理念:通过与业主的沟通,了解到业主喜欢时尚有特色的风格,但又不能过于复杂,最终把本案的设计风格定位为现代偏简奢风格,给业主打造一个有格调的生活环境。

客厅
第1张
第2张
第3张
餐厅
第1张
卧室
第1张
卫生间
第1张
厨房
第1张
儿童房
第1张
门厅
第1张
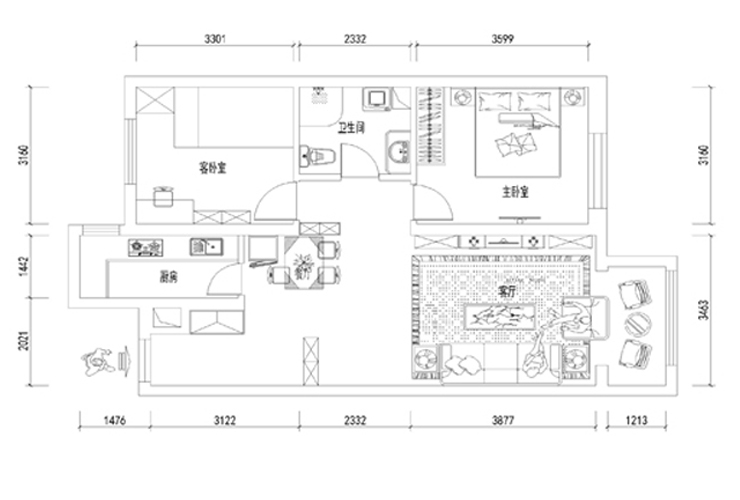
户型图
第1张
  • 案例详情

格林玫瑰湾-91平-现代风格-客厅1.jpg 格林玫瑰湾-91平-现代风格-首图.JPG 格林玫瑰湾-91平-现代风格-客厅2.jpg

客厅是主人品味的象征,体现了主人的品格、地位,也是娱乐的场合,电视背景墙采用了壁纸做了简单美化处理,即美丽又大方,还不是去奢华。浅色的地砖与暖色的空间交会,看起来更加的奢华大方。

格林玫瑰湾-91平-现代风格-餐厅.jpg

餐厅是整个家的心脏,不仅要美观,更重要的是实用性,在餐厅的后面做个酒柜,即美观又实用。客厅的壁纸延伸过来,在餐桌的一面墙上放些装饰画,以达到增加餐厅的情调。餐厅的灯光以温馨和暖的黄色为基调,让餐厅看起来更加的温馨和睦。

格林玫瑰湾-91平-现代风格-卧室.jpg

明亮的卧室整体空间效果,让人置身卧室就能感觉到心旷神怡。通过实木地板的铺贴,运用简单的铺贴手法进行设计,整个地面光洁、干净。床具与地毯和沙发使用相仿的颜色,让整个空间看起来更加的协调美观。

格林玫瑰湾-91平-现代风格-卫生间.jpg

卫生间空间相对而言比较小,所以选用了一致的地砖和墙砖,让整个空间看起来大而美观。暖色的灯光与地砖呼应,让卫生间看起来整洁而温馨。

格林玫瑰湾-91平-现代风格-厨房.jpg

厨房的设计不以美观为原则,而更加注重实际使用。厨房做了个L形橱柜,这种空间的运用方式让烹饪信手拈来,实用而不失美观。把清洗台放到窗户旁边,让清洗更加容易分辨,便于清洗,还可以在工作时欣赏外面的风景。

格林玫瑰湾-91平-现代风格-女儿房.jpg 格林玫瑰湾-91平-现代风格-门厅.jpg 格林玫瑰湾-91平-现代风格-户型图.jpg

案例设计师

林凤装饰设计师

设计师:林凤装饰设计师

从业时间:15年

设计理念:用心感受生活,用设计完善空间,让设计与生活空间完美结合。

预约设计师

算算你家装修多少钱

报名即享丰厚赠品,享半价装修

免费报价
咨询热线:400-656-9909
20190221103704574636.jpg

精品设计案例

20180612134930523248.jpg 服务号二维码.jpg