立即预约 立即预约
免费定制整装家居

免费定制整装家居

一站置家 全程无忧 一省到底
hide.png

当前位置: 首页 > 装修案例效果图 > 金地樾檀山

金地樾檀山 115平 欧式风格效果图

收藏
案例风格 欧式 案例户型 三居 案例面积 115平米
楼盘名称 金地樾檀山 设计师 林凤装饰 案例类型 改善性住宅

设计理念:男女人是中年人,男主人工作比较忙,女主人和女儿都比较喜欢粉色,而且很时尚,追求温馨舒适的生活方式,选择现代简欧风格的,在客户的角度是非常明智的,现代家具和风格特点都是以“简”为主,不繁琐又不失生活家具的特色。

客厅
第1张
第2张
第3张
餐厅
第1张
卧室
第1张
厨房
第1张
第2张
门厅
第1张
过廊
第1张
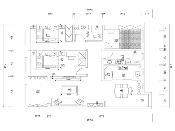
户型图
第1张
  • 案例详情

金地樾檀山-115平-现代简欧风格-客厅1.jpg 金地樾檀山-115平-现代简欧风格-客厅2.jpg 金地樾檀山-115平-现代简欧风格-首图.jpg

本案户型客厅主要作用是满足客户生活起居,客厅没有做过多的造型和装饰,多以装饰为主。电视墙搭配的是一款及镜面材质和壁纸石膏板三种元素为一体的背景墙。在沙发墙的左右两侧置办一组照明吊灯,照明是一个照明兼装饰的代表,造型不繁琐。整体配饰温馨舒适干干净净。整体吊顶是石膏角线和石膏板造型棚相结合。正好弥补了原始顶棚的不完美空间。

金地樾檀山-115平-现代简欧风格-餐厅.jpg

本案餐厅空间与厨房相互结合。餐厅空间实用空间比较大,没有做太多装饰性的造型,餐具和灯具的金属材质正好与客厅部分元素相呼应。餐桌是传统4人位形式,比较适合此户型,使用率非常高。

金地樾檀山-115平-现代简欧风格-次卧.jpg

卧室是家居空间比较重要的地方,每天都会使用的空间,舒适度是非常重要的,主卧必备的就是床品和衣柜还有一些配饰,装饰画还有辅助照明,适当在卧室增添一些绿植,效果会更好。在主卧加一部分边棚这样在卧室活动时比较有氛围感。

金地樾檀山-115平-现代简欧风格-厨房1.jpg 金地樾檀山-115平-现代简欧风格-厨房2.jpg

整体格局来看厨房的空间很大,空间可以利用的非常充分,厨房选择半敞开式式空间,餐桌旁边打了一组酒柜,然后冰箱是嵌入式的,这样对于客厅和餐厅都比较有帮助,采光更好了。厨房砖尽量选择比较干净偏冷色系的砖,这样搭配橱柜更好协调。

金地樾檀山-115平-现代简欧风格-门厅.jpg 金地樾檀山-115平-现代简欧风格-过道.jpg 金地樾檀山-115平-现代简欧风格-平面图.jpg

案例设计师

林凤装饰

设计师:林凤装饰

从业时间:6年

设计理念:万科翡翠书院 金地旭辉九韵风华 华润奉天九里 中海和平之门 龙湖唐宁one 金水花城 金辉湖畔里

预约设计师

算算你家装修多少钱

报名即享丰厚赠品,享半价装修

免费报价
咨询热线:400-656-9909
20190221103704574636.jpg

精品设计案例

20180612134930523248.jpg 服务号二维码.jpg