立即预约 立即预约
免费定制整装家居

免费定制整装家居

一站置家 全程无忧 一省到底
hide.png

当前位置: 首页 > 装修案例效果图 > 保利茉莉公馆

保利茉莉公馆 125平 美式风格效果图

收藏
案例风格 美式 案例户型 三居 案例面积 125平米
楼盘名称 保利茉莉公馆 设计师 林凤设计师 案例类型 婚房

设计理念:本案以简约美式风格为主,随性、舒适、自我的生活方式,没有太多复杂的造型修饰与约束,在没有任何修饰的情况下,形成了独特的一种休闲式的浪漫氛围,它有着欧罗巴的奢侈与贵气,但又结合了美洲大陆这块水土的各种文化的综合,这样的相互结合,吸收各个地域之所长,又符合国内人的审美眼观,形成取众地方之美,所独具的风格

客厅
第1张
第2张
第3张
第4张
第5张
餐厅
第1张
卧室
第1张
卫生间
第1张
厨房
第1张
衣帽间
第1张
过廊
第1张
第2张
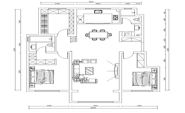
户型图
第1张
  • 案例详情

保利茉莉公馆-125平-美式轻奢-客厅2.jpg 保利茉莉公馆-125平-美式轻奢-客厅3.jpg 保利茉莉公馆-125平-美式轻奢-客厅.jpg 保利茉莉公馆-125平-美式轻奢-首图.jpg 保利茉莉公馆-125平-美式轻奢-客厅4.jpg

客厅电视背景墙使用的高大尚的石材作为主要装饰,使人眼前一亮,配上灰色的护墙板,显得是那么的协调统一,黑色带有金属的电视柜,给人感觉是那么的高贵,相对应的金属茶几,茶几上的理石台面与电视背景墙呼应的完美无尽。

保利茉莉公馆-125平-美式轻奢-餐厅.jpg

在餐桌的墙面上的那副装饰画,是那么的恰到好处,惹人的眼光但是整个空间的完美结合,以达到增加餐厅的情调。而餐桌上的绿色植物,则起到了画龙点睛的作用,使环境充满生机与活力,

保利茉莉公馆-125平-美式轻奢-卧室.jpg

主卧室是睡眠、休息、最具私隐性的空间。卧室主要以简洁大方为主,无论什么样的花纹壁纸,都可以保持这原有的清新内敛,业主最为喜欢的是那盏主灯,是那么的清新脱俗。

保利茉莉公馆-125平-美式轻奢-卫生间.jpg 保利茉莉公馆-125平-美式轻奢-厨房.jpg

高贵大气的理石纹理地砖,略带暖色,与之呼应的白色纹理墙砖,两种砖是整个空间形成统一的干净,温馨的环境。美式的橱柜带有轻奢的颜色,结合的那么的顺理成章。

保利茉莉公馆-125平-美式轻奢-衣帽间.jpg 保利茉莉公馆-125平-美式轻奢-过廊.jpg 保利茉莉公馆-125平-美式轻奢-过廊2.jpg 保利茉莉公馆-125平-美式轻奢-平面图.jpg

案例设计师

林凤设计师

设计师:林凤设计师

从业时间:7年

设计理念:人为生活而设计,设计为生活而存在。

预约设计师

算算你家装修多少钱

报名即享丰厚赠品,享半价装修

免费报价
咨询热线:400-656-9909
20190221103704574636.jpg

精品设计案例

20180612134930523248.jpg 服务号二维码.jpg