立即预约 立即预约
免费定制整装家居

免费定制整装家居

一站置家 全程无忧 一省到底
hide.png

当前位置: 首页 > 装修案例效果图 > 保利茉莉公馆

保利茉莉公馆 106平 现代简约风格效果图

收藏
案例风格 现代简约 案例户型 三居 案例面积 106平米
楼盘名称 保利茉莉公馆 设计师 林凤装饰设计师 案例类型 改善性住宅

设计理念:北欧风格主要体现契合现代年轻人的时代感,都市快节奏,满足储物收纳功能需求的同时,尽量让空间变得更加时尚美观。该案例以亮色为基调,为业主创造出宽敞、舒适的居住氛围。

客厅
第1张
第2张
第3张
餐厅
第1张
卧室
第1张
卫生间
第1张
厨房
第1张
门厅
第1张
过廊
第1张
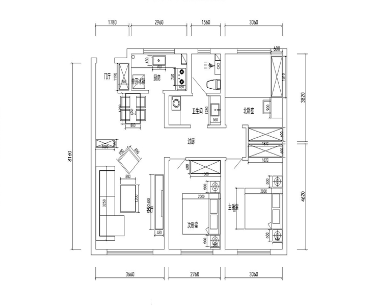
户型图
第1张
  • 案例详情

保利茉莉公馆-106平-北欧风格-首图.jpg 保利茉莉公馆-106平-北欧风格-客厅1.jpg 保利茉莉公馆-106平-北欧风格-客厅.jpg

宽敞的空间,电视背景墙采用石膏造型为主,再配上黑色烤漆玻璃和颜色墙面做背景,简约时尚的同时少不了大气,后期一套北欧的家具和灯具瞬间让整个空间感觉更加时尚诙谐。

保利茉莉公馆-106平-北欧风格-餐厅.jpg

餐厅区正好挨着厨房,过廊的吊顶正好把空间划分开来,棚面以宽大的石膏线做装饰,提升空间的同时让人感觉没那么压抑。

保利茉莉公馆-106平-北欧风格-卧室.jpg

高冷范的空间卧室,软包皮革床,现代化的休闲垂钓灯, 暖色系的床头颜色,瞬间把空间温馨度调控起来。

保利茉莉公馆-106平-北欧风格-卫生间.jpg

灰色理石纹理的墙面砖,大气的同时也充满艺术,时尚的台上盆和洗衣机凹嵌式的设计是整个空间的最大亮点,美观的同时实用性也大大增加了。

保利茉莉公馆-106平-北欧风格-厨房.jpg

对于建筑106平米的空间,厨房的空间显得有些不足,所以颜色上以浅色为主,让空间显得更大一些,也让主人使用起来更加得心应手。

保利茉莉公馆-106平-北欧风格-门厅.jpg

下悬中空的时尚实用鞋柜是进门的亮点,回家时所有东西都有地方摆放,出门的时候穿鞋更是有自己的单独坐着的空间。

保利茉莉公馆-106平-北欧风格-过廊.jpg 保利茉莉公馆-106平-北欧风格-平面布局图.jpg

案例设计师

林凤装饰设计师

设计师:林凤装饰设计师

从业时间:10年

设计理念:用灵魂感知梦一般的空间

预约设计师

算算你家装修多少钱

报名即享丰厚赠品,享半价装修

免费报价
咨询热线:400-656-9909
20190221103704574636.jpg

精品设计案例

20180612134930523248.jpg 服务号二维码.jpg