立即预约
免费定制整装家居
一站置家 全程无忧 一省到底
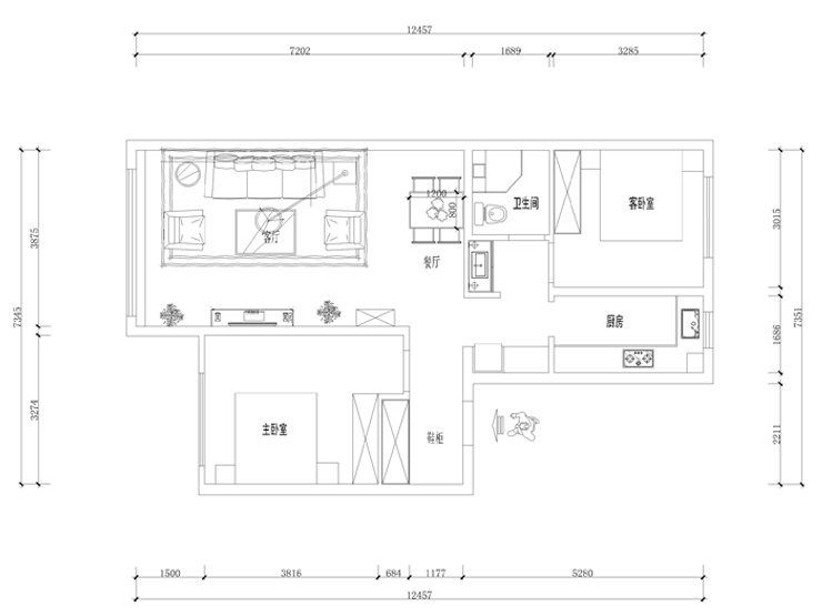
设计理念:本案以现代简约风格为主题的设计,装修的时候不一定华丽复杂才能显示一个人的品味,简约而不简单也是一种生活态度。
案例详情
本案以现代风格为主题的客厅,在整体空间上即有划分又与色彩变换协调统一.沙发背景墙是运用在深绿色在乳胶漆作为整个空间主色调!硅藻泥的双造型拼接,比较有层次和立体效果!
以简单不失个性为主题的现代餐厅,在延续个性色调心情的客厅,餐厅与客厅完美的无缝连接,互相借景,无限放大空间,家庭的简约不只是说装修,还反映在家居配饰上的简约!
以超托凡俗为主题的卧室.高级色的床头墙面融为一体,温馨的床头小灯把整个空间点缀的更加柔美,使得整个卧室更加流派个性。
以明尚为主题的卫生间,白色墙砖在奶白色的卫浴的映衬下更加醒目,黑色的小方砖很强烈的对比,独立的淋浴空间与卫浴的摆放错落有序。
以简单大气为主题现代简约厨房,个性简单的奶白色L型橱柜在白色高级灰砖的映衬下更加独特与时尚。
精品设计案例
设计说明:
三室两厅一厨两卫,高层整体采用美式风格,色调以深色为主,体现美式的居家感和温馨感。
设计说明:
本案业主为年轻时尚小两口,所以我们考虑到未来想要给未来宝宝一个温馨舒适的一个房间,所以本案整体采用现代风格的手法,运用颜色,来打造整体空间的设计感及时尚感
设计说明:
本案以北欧风格为主题的设计,北欧风格能以现代、简洁、自然的特点俘获人心,所营造出来的生活氛围会让人倍感舒适与自在。
设计说明:
客户是一名成功人士,对于家的执念就是简单干净,客户衣服比较多,所以把每个空间都做了大衣柜,并且融入到设计里