立即预约 立即预约
免费定制整装家居

免费定制整装家居

一站置家 全程无忧 一省到底
hide.png

当前位置: 首页 > 装修案例效果图 > 格林新港湾

格林新港湾 90平 现代简约风格效果图

收藏
案例风格 现代简约 案例户型 二居 案例面积 90平米
楼盘名称 格林新港湾 设计师 林凤设计师 案例类型 改善性住宅

设计理念:本案设计整体以浅色系为主线,为业主打造一个时尚温馨的家。相信每个人心中都有自己对时尚的定义。家,舒适,这就是我认为的时尚,舒适,惬意,轻松,实用的“爱巢”。

客厅
第1张
第2张
第3张
第4张
餐厅
第1张
卧室
第1张
第2张
卫生间
第1张
厨房
第1张
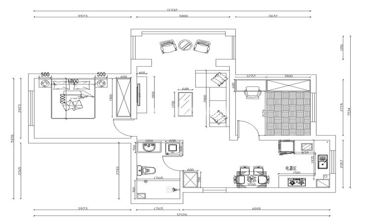
户型图
第1张
  • 案例详情

格林新港湾-90㎡-现代风格-客厅3.jpg 格林新港湾-90㎡-现代风格-客厅2.jpg 格林新港湾-90㎡-现代风格-客厅1.jpg 格林新港湾-90㎡-现代风格-首图.jpg

简洁明快的客厅让人心情愉悦,棚面采用直线条装饰,既干净整洁又互相呼应,电视背景墙采用略带纹理的硅藻泥,配合金色金属材质的点缀,有拉伸了整体空间的宽度。

格林新港湾-90㎡-现代风格-餐厅.jpg

通透的餐厅让人眼前一亮,顶面延续客厅的直线棚面,造型简洁的灯具是这个空间的亮点,呼应主题。

格林新港湾-90㎡-现代风格-卧室2.jpg 格林新港湾-90㎡-现代风格-卧室1.jpg

舒适的卧室缓解一天忙碌工作带来的疲倦,柔软的大床伴你度过每个美好的夜晚,浅色装饰柜给人以轻松的感觉。

格林新港湾-90㎡-现代风格-卫生间.jpg

卫生间采用拼色砖进行搭配,区域划分明显,整体简洁大气,以自我为中心,我舒服我实用。

格林新港湾-90㎡-现代风格-厨房.jpg

白色的橱柜配白色略带中国风的瓷砖瓷砖,让整个开放式厨房空间明亮和干净,连上餐厅,使餐厅和厨房形成鲜明整洁的一体。

格林新港湾-90㎡-现代风格-平面图.jpg

案例设计师

林凤设计师

设计师:林凤设计师

从业时间:7年

设计理念:设计源于生活,生活映与本性

预约设计师

算算你家装修多少钱

报名即享丰厚赠品,品质装修

免费报价
咨询热线:400-656-9909
20190221103704574636.jpg

精品设计案例

20180612134930523248.jpg 服务号二维码.jpg