立即预约
免费定制整装家居
一站置家 全程无忧 一省到底
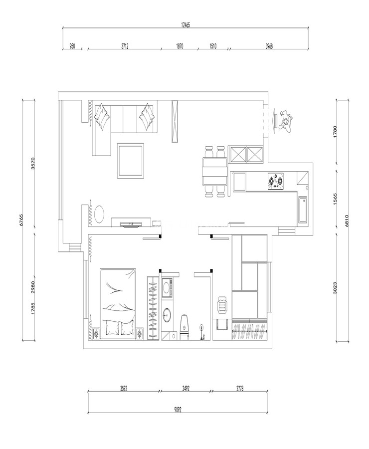
设计理念:特别的设计,不同寻常的客厅空间。米白色的沙发搭配原木色的茶几电视柜加上纯白色的书架,有一股扑面而来的小清新感觉,一个仿大理石纹理的地面使整个清新的空间一下子就稳了下来,让空间没有那么浮躁。
案例详情
特别的设计,不同寻常的客厅空间。米白色的沙发搭配原木色的茶几电视柜加上纯白色的书架,有一股扑面而来的小清新感觉,一个仿大理石纹理的地面使整个清新的空间一下子就稳了下来,让空间没有那么浮躁。
卧室空间的用了一个比客厅灰度更高的灰色做背景墙,原木色的家具搭配清新的绿色和黄色,让空间风格更加明显。
墙面砖延续了客厅砖的理石质感,采用下深上浅的颜色搭配,使空间颜色对比分明,浴室柜台面做了一个延伸,有更多的平面空间摆放洗漱用品,增加了空间的利用率。
原木色的下柜,搭配白色的上柜和白色的吊顶,不同材质的融合与碰撞,让空间明净且具有超强的质感。
精品设计案例
设计说明:
三室两厅一厨两卫,高层整体采用美式风格,色调以深色为主,体现美式的居家感和温馨感。
设计说明:
本案业主为年轻时尚小两口,所以我们考虑到未来想要给未来宝宝一个温馨舒适的一个房间,所以本案整体采用现代风格的手法,运用颜色,来打造整体空间的设计感及时尚感
设计说明:
本案以北欧风格为主题的设计,北欧风格能以现代、简洁、自然的特点俘获人心,所营造出来的生活氛围会让人倍感舒适与自在。
设计说明:
客户是一名成功人士,对于家的执念就是简单干净,客户衣服比较多,所以把每个空间都做了大衣柜,并且融入到设计里