立即预约 立即预约
免费定制整装家居

免费定制整装家居

一站置家 全程无忧 一省到底
hide.png

当前位置: 首页 > 装修案例效果图 > 金地铁西檀府

金地铁西檀府 106平 其他风格效果图

收藏
案例风格 其他 案例户型 二居 案例面积 106平米
楼盘名称 金地铁西檀府 设计师 林凤设计师 案例类型 改善性住宅

设计理念:本方案整体设计为法式风格,通过华丽,浪漫的家具及配饰,来彰显出空间的奢华感与贵族气息。无论家具还是墙面造型,搭配以金属条和对称设计,来提升整体的视觉的美感。通过线条和造型来体现法式风格的优柔华贵气质。

客厅
第1张
第2张
第3张
餐厅
第1张
卧室
第1张
第2张
卫生间
第1张
厨房
第1张
门厅
第1张
过廊
第1张
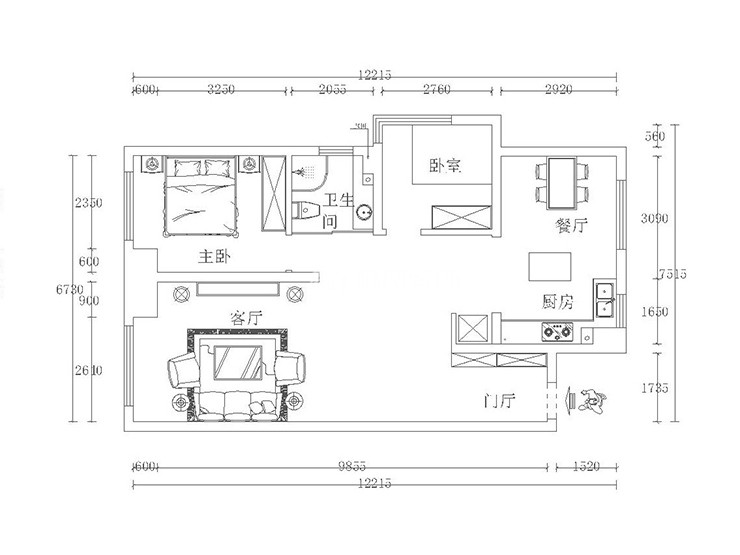
户型图
第1张
  • 案例详情

金地铁西檀府-106-法式风格-客厅(2).jpg 金地铁西檀府-106-法式风格-首图.jpg 金地铁西檀府-106-法式风格-客厅.jpg

客厅的墙面是白色的乳胶漆,因为是法式风格,所以无论是墙面还是顶棚都有石膏线条造型,附以金色的金属条,来凸显风格与空间感。沙发与电视柜等采用撞色设计, 色彩对比鲜明,并且家具大多有配饰金属条,更能增加视觉感受。

金地铁西檀府-106-法式风格-餐厅.jpg

餐厅的起始功能分区是客卧,由于户型的原因以及后期业主可能自己住,所以将之改为餐厅,使得厨房和餐厅更宽敞,有个独立的餐厅区域,还有一面墙体做了造型,使得独立的餐厅又与房屋整体风格相呼应。

金地铁西檀府-106-法式风格-卧室(2).jpg 金地铁西檀府-106-法式风格-卧室.jpg

卧室墙面采用暖色墙壁纸,床的背景墙同样石膏线条造型,家具及配饰等多浅色为主。虽然整体为法式风格,但卧室的床头亦或背景墙并没有采用比较纯欧式的雕花造型等。这样看起来既不是华丽的感觉又不至于复杂繁琐。

金地铁西檀府-106-法式风格-卫生间.jpg

卫生间整体采用灰咖色调瓷砖,定制整面墙的洗手台以及墙壁镜。由于空间有限无法设计成干湿分离,但正常使用空间还是够用的。烟道部分影响美观,所以在正面用理石或其他材料定制成开放格。既起到装饰又有一定的储放功能。

金地铁西檀府-106-法式风格-厨房.jpg

厨房是开敞式厨房,餐厅与厨房相连,中间设计了一个导台,空间相较于封闭式厨房与餐厅,空间显得宽敞大气,也能匹配法式风格。橱柜的颜色以及造型与客厅统一,柜体上同样镶嵌金属条。

金地铁西檀府-106-法式风格-门厅.jpg

门厅区域地面地砖拼花,将门厅与客厅分离开来,鞋柜满做,上部并没有做吊柜,这样不至于太影响视觉感官和显得门厅狭小,穿衣镜设计在对面墙面,既节省空间又利于着装。

金地铁西檀府-106-法式风格-过廊.jpg 金地铁西檀府-106-法式风格-户型图.jpg

案例设计师

林凤设计师

设计师:林凤设计师

从业时间:13年

设计理念:无论含蓄还是奢华,能贴合主人味道,传达主人性格的房子才是我所追求的设计

预约设计师

算算你家装修多少钱

报名即享丰厚赠品,享半价装修

免费报价
咨询热线:400-656-9909
20190221103704574636.jpg

精品设计案例

20180612134930523248.jpg 服务号二维码.jpg