立即预约 立即预约
免费定制整装家居

免费定制整装家居

一站置家 全程无忧 一省到底
hide.png

当前位置: 首页 > 装修案例效果图 > 龙湖唐宁ONE

龙湖唐宁ONE 88平 现代简约风格效果图

收藏
案例风格 现代简约 案例户型 二居 案例面积 88平米
楼盘名称 龙湖唐宁ONE 设计师 林凤装饰设计师 案例类型 改善性住宅

设计理念:在本案设计中,业主是一户三口之家,由于业主是南方人,所以对阳台的要求比较高,想法也比较多,而业主的女儿更是一个喜欢上下铺的爱笑的小姑娘

客厅
第1张
第2张
餐厅
第1张
卧室
第1张
卫生间
第1张
厨房
第1张
阳台
第1张
儿童房
第1张
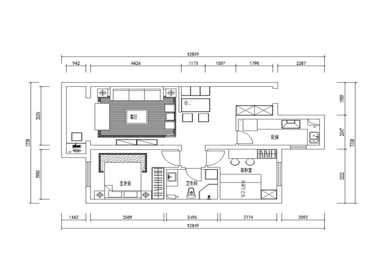
户型图
第1张
  • 案例详情

龙湖唐宁ONE-88-北欧风格-客厅 (3).jpg 龙湖唐宁ONE-88-北欧风格-客厅 (2).jpg

在整个客厅中,设计采用了文化石壁纸的铺贴,并在沙发背景墙上采用了深灰蓝色,作为整个空间的点缀,在墙上放了大量的挂画让整个客厅中的这面墙成为了整个客厅的亮点,大量的木色和白色的搭配让整个空间更加显得干净整洁

龙湖唐宁ONE-88-北欧风格-客厅 (2).jpg

在餐厅的区域里,业主特别要求希望能有一个卡座的设计,对于这个要求设计师也深深进行了考量,既要有餐厅区域的划分,也要有更好的采光,所以最好的办法,设计师决定采用半墙式的设计,在墙的上方采用了镂空的金属隔断,让整个餐厅区域既有分割开来的感觉而又不影响采光

龙湖唐宁ONE-88-北欧风格-主卧室.jpg 龙湖唐宁ONE-88-北欧风格-卫生间.jpg 龙湖唐宁ONE-88-北欧风格-厨房.jpg

在厨房更是采用了木色来起到柔和空间的作用 ,在厨房这样每天需要进出的空间里来说,厨房墙砖的选择显得尤为重要,在整个空间里采用了木色与白色的搭配,让整个厨房既不显得独立,而又自成一个空间,厨房的墙砖更是采用了白色的大理石纹路的瓷片,与整个空间更加协调

龙湖唐宁ONE-88-北欧风格-阳台.jpg 龙湖唐宁ONE-88-北欧风格-儿童房.jpg

在小卧室中,设计师做成了儿童房的设计,而业主的女儿尤其喜欢上下铺,并且业主也有最近要二胎的打算,所以在小卧室中做一个上下铺的设计又要兼顾储物和美观这两的特征,因为业主有一个女儿,所以在整个儿童房的空间里采用了一个以粉色系为主的空间感

龙湖唐宁ONE-88-北欧风格-平面布局.jpg

案例设计师

林凤装饰设计师

设计师:林凤装饰设计师

从业时间:11年

设计理念:处处是细节的家,应该处处用心

预约设计师

算算你家装修多少钱

报名即享丰厚赠品,品质装修

免费报价
咨询热线:400-656-9909
20190221103704574636.jpg

精品设计案例

20180612134930523248.jpg 服务号二维码.jpg