立即预约 立即预约
免费定制整装家居

免费定制整装家居

一站置家 全程无忧 一省到底
hide.png

当前位置: 首页 > 装修案例效果图 > 保利香槟国际

保利香槟国际 107平 北欧风格效果图

收藏
案例风格 北欧 案例户型 三居 案例面积 107平米
楼盘名称 保利香槟国际 设计师 林凤装饰设计师 案例类型 婚房

设计理念:业主是年轻小两口,喜欢比较简单的生活方式,注重搭配,喜欢个性一些的东西,需要与众不同的设计。

客厅
第1张
第2张
餐厅
第1张
卧室
第1张
第2张
卫生间
第1张
厨房
第1张
儿童房
第1张
衣帽间
第1张
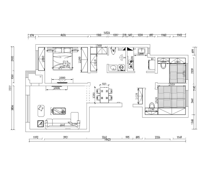
户型图
第1张
  • 案例详情

保利香槟国际-107平-北欧极简-首图.jpg 保利香槟国际-107平-北欧极简-客厅.jpg

客厅棚面主要为石膏板平棚,筒灯为主,整个空间充满辅助光源,两个人在家基本上不用开主灯,筒灯营造的氛围比较有情调,墙面乳胶漆调色,但是只刷半墙,显得较为个性,突出了与众不同。

保利香槟国际-107平-北欧极简-餐厅.jpg

餐厅只有餐桌椅,挂画和吊灯,元素比较少,但是简单的同时又比较彰显极简风格的特点,以简单创造简装,以平凡创造不凡。

保利香槟国际-107平-北欧极简-主卧1.jpg 保利香槟国际-107平-北欧极简-主卧2.jpg

主卧室的床也是个性十足,尤其是两侧的床头柜,非常简单,直扣主题,床头乳胶漆调色也不是普通的全屋一色,而是通过一些几何形状来塑造。

保利香槟国际-107平-北欧极简-主卫.jpg

卫生间地面的砖比较个性,黑色小块使脚下更添一抹神秘,而墙砖是简单的白色瓷砖,通过竖拼的方式拉伸整个卫生间空间,是空间显得更大。

保利香槟国际-107平-北欧极简-厨房.jpg

橱柜颜色比较浅,显得干净整洁,把手用独特的黑色漆面搭配,对比明显,使简单中的整洁更为明显。

保利香槟国际-107平-北欧极简-儿童房.jpg 保利香槟国际-107平-北欧极简-衣帽间.jpg 保利香槟国际-107平-北欧极简-平面.jpg

案例设计师

林凤装饰设计师

设计师:林凤装饰设计师

从业时间:6年

设计理念:适合才是最重要的,在适合的同时打造独一无二

预约设计师

算算你家装修多少钱

报名即享丰厚赠品,品质装修

免费报价
咨询热线:400-656-9909
20190221103704574636.jpg

精品设计案例

20180612134930523248.jpg 服务号二维码.jpg