立即预约 立即预约
免费定制整装家居

免费定制整装家居

一站置家 全程无忧 一省到底
hide.png

当前位置: 首页 > 装修案例效果图 > 金色高尔夫

金色高尔夫 500平 欧式风格效果图

收藏
案例风格 欧式 案例户型 办公空间 案例面积 500平米
楼盘名称 金色高尔夫 设计师 胡迪 案例类型 改善性住宅

设计理念:本案是以法式风格为主的设计。设计师主要以法式元素的理解再加上对房型的理解相结合,整改了很多对于土建方面的缺陷。对于主体主要包括法式巴洛克风格(路易十四风格)洛可可风格(路易十五风格)新古典•风格(路易十六风格)帝政风格等,是欧洲家具和建筑文化的顶峰。

客厅
第1张
第2张
第3张
第4张
餐厅
第1张
第2张
卧室
第1张
卫生间
第1张
第2张
厨房
第1张
书房
第1张
儿童房
第1张
门厅
第1张
第2张
第3张
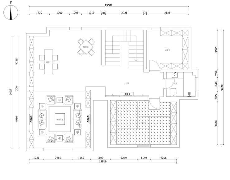
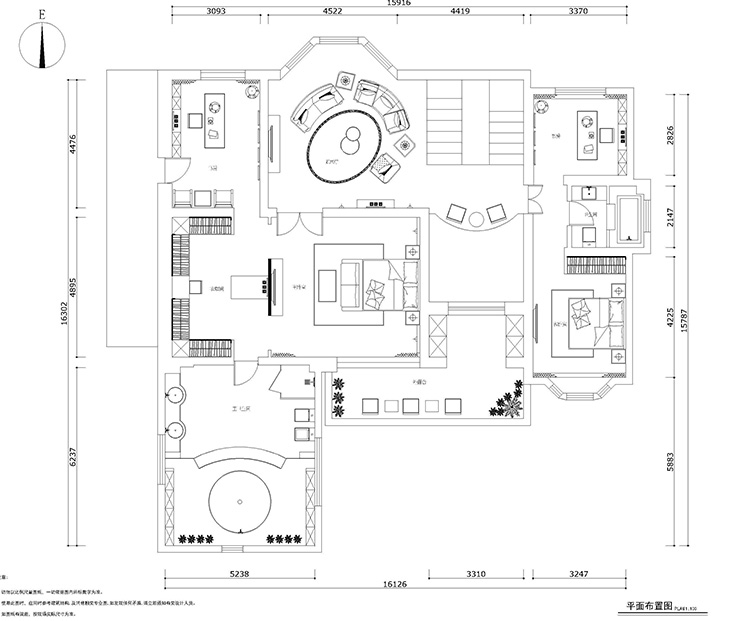
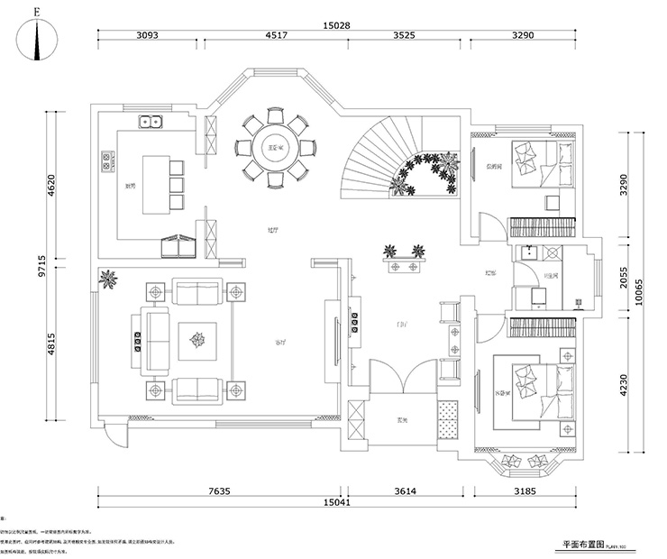
户型图
第1张
第2张
第3张
  • 案例详情

金色高尔夫-500平-法式-客厅A.jpg 金色高尔夫-500平-法式-客厅B.jpg 金色高尔夫-500平-法式-起居厅.jpg 金色高尔夫-500平-法式-首图.jpg

这是一张透漏着古典、客厅的开间超过了9米之远,对于整体设计把客厅一分为二,让整个客厅彰显出风格特点。欧式之美的法式风格客厅装修效果图。首先是色彩的选择方面,其选择了中性灰作为空间的主色调,除了中性灰之外,又用粉色来点缀空间。中性灰给人的感觉是平衡的和谐的,粉丝虽然是比较鲜艳的颜色,但是在这间客厅中,设计师降低了粉色的纯度,增加了其亮度,从而让粉色给人带给人浪漫、婉约的感觉。

金色高尔夫-500平-法式-餐厅B.jpg 金色高尔夫-500平-法式-餐厅A.jpg

与自己的生活习惯、个人爱好相吻合。餐厅设计的关键在餐桌的选择上,所以餐厅桌椅的选择也是非常重要的,长条桌是对于整个餐厅的一个非常好的选择,一方面要与房屋的整个设计风格相一致,另一方面也的要考虑自己的喜好,款式要是自己喜欢的,这样才会积极影响整个餐厅的氛围,使家人开心快乐。整体餐厅的吊棚是整个餐厅的关键,复杂的造型及石膏雕花与客厅造型相结合,所以,在选择色彩时,切忌颜色过多,可以多用中性色,如沙色、石色、浅黄色、灰色、棕色,这些色彩能给人宁静的感觉。

金色高尔夫-500平-法式-主卧室.jpg

法式卧室具有开放式的美,有时候还会刻意的去呈现一种突出,这样也是为了体现主人的一个悠然自得的生活态度。法式风格卧室的装修也是需要一定的技巧的,一般床上的用品会以白色作为主色调,窗帘的话,在选择的时候也多选择近似的一个色调,这样主要是为了凸显房间的大气,整体设计出来的形象也是非常协调的,我们在装修的时候,注意尽量不要出现深色调的家具哦,不然会显得有些突兀。

金色高尔夫-500平-法式-卫生间B.jpg 金色高尔夫-500平-法式-卫生间A.jpg 金色高尔夫-500平-法式-厨房.jpg

特别设计的水吧干净整洁,陈列的杯具与酒品静候着主人的挑选,生活在其间,繁忙时可以制作一份美味的简餐,闲暇时也可充作吧台享受一支心仪的红酒,让生活的每一刻都成为一种对于生命的享受。

金色高尔夫-500平-法式-书房.jpg 金色高尔夫-500平-法式-儿童房.jpg 金色高尔夫-500平-法式-门厅A.jpg 金色高尔夫-500平-法式-门厅C.jpg 金色高尔夫-500平-法式-门厅B.jpg 金色高尔夫-500平-法式-二层平面图.jpg 金色高尔夫-500平-法式-三层平面图.jpg 金色高尔夫-500平-法式-一层平面图.jpg

案例设计师

胡迪

设计师:胡迪

从业时间:14年

设计理念:设计以人为本

预约设计师

算算你家装修多少钱

报名即享丰厚赠品,品质装修

免费报价
咨询热线:400-656-9909
20190221103704574636.jpg

精品设计案例

20180612134930523248.jpg 服务号二维码.jpg