立即预约 立即预约
免费定制整装家居

免费定制整装家居

一站置家 全程无忧 一省到底
hide.png

当前位置: 首页 > 装修案例效果图 > 保利.紫荆公馆

保利.紫荆公馆 123平 现代简约风格效果图

收藏
案例风格 现代简约 案例户型 三居 案例面积 123平米
楼盘名称 保利.紫荆公馆 设计师 林凤设计师 案例类型 婚房

设计理念:简欧为主,整体欧式吊棚, 家具偏现代风格家具和软装, 温馨浪漫不失贵族气息。

客厅
第1张
第2张
第3张
餐厅
第1张
第2张
第3张
卧室
第1张
卫生间
第1张
过廊
第1张
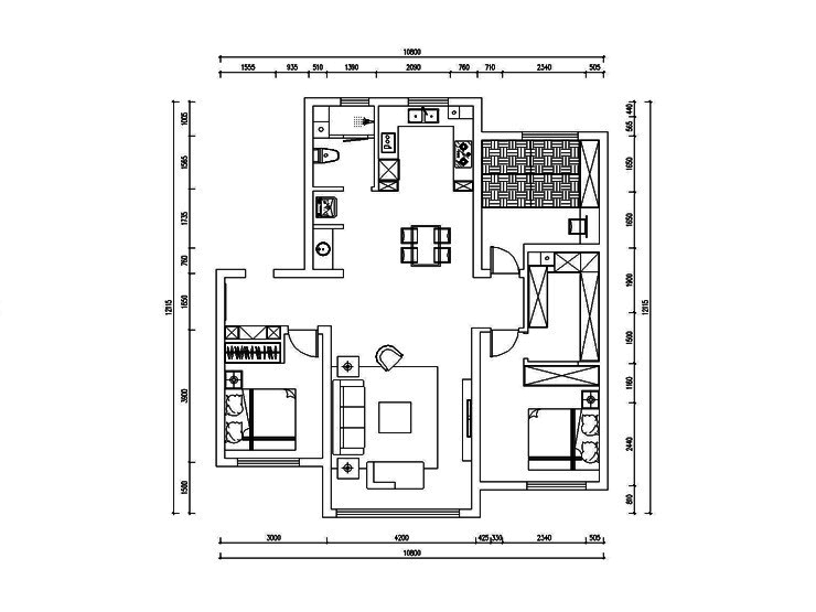
户型图
第1张
  • 案例详情

保利.紫荆公馆-123平-简欧风格-沙发背景墙.jpg 保利.紫荆公馆-123平-简欧风格-首图.jpg 保利.紫荆公馆-123平-简欧风格-客厅.jpg

客厅电视背景墙和沙发背景墙吊的边棚,沙发背景和电视背景对称的背景墙装饰,背景墙是双面石膏板加以欧式石膏线来设计体现出墙面的层次感延伸感,不同的材质使空间层次感更加的丰富,在软装搭配上,主灯、壁灯、还有地毯等。都是挑选些符合欧式元素的配饰、这样使整体搭配欧式风格更加的突出、协调。营造典雅、自然、高贵的气质、浪漫的情调。

保利.紫荆公馆-123平-简欧风格-餐厅厨房.jpg 保利.紫荆公馆-123平-简欧风格-餐厅.jpg 保利.紫荆公馆-123平-简欧风格-餐厅1.jpg

餐厅的墙面背景硬装与客厅的样式线条是一致的加以富有韵律的波形木方来活跃空间.壁灯非常有特点.很符合对个性时尚的烘托

保利.紫荆公馆-123平-简欧风格-卧室.jpg

卧室大面积为白色的乳胶漆,床头背景墙用欧式石膏线简单的做了几个框架配以软包搭配整体上强调线形流动的变化

保利.紫荆公馆-123平-简欧风格-卫生间.jpg 保利.紫荆公馆-123平-简欧风格-干湿分离区.jpg 保利.紫荆公馆-123平-简欧风格-平面图.jpg

案例设计师

林凤设计师

设计师:林凤设计师

从业时间:3年

设计理念:设计是一种感受、一种心态、一种舒适的、开心的生活方式。

预约设计师

算算你家装修多少钱

报名即享丰厚赠品,享半价装修

免费报价
咨询热线:400-656-9909
20190221103704574636.jpg

精品设计案例

20180612134930523248.jpg 服务号二维码.jpg