立即预约 立即预约
免费定制整装家居

免费定制整装家居

一站置家 全程无忧 一省到底
hide.png

当前位置: 首页 > 装修案例效果图 > 九颂大院

九颂大院 126平 现代简约风格效果图

收藏
案例风格 现代简约 案例户型 三居 案例面积 126平米
楼盘名称 九颂大院 设计师 林凤设计师 案例类型 婚房

设计理念:本案以现代风格为主,是在设计上强调功能结构和形式,更追求整体空间的表现与精确。

客厅
第1张
第2张
第3张
餐厅
第1张
第2张
第3张
卧室
第1张
卫生间
第1张
厨房
第1张
第2张
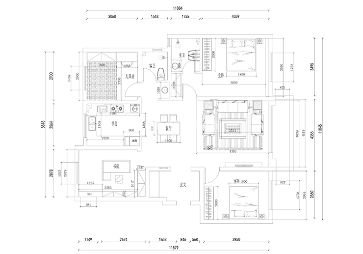
户型图
第1张
  • 案例详情

九颂大院-126平-现代风格-客厅02.jpg 九颂大院-126平-现代风格-客厅03.jpg 九颂大院-126平-现代风格-客厅01.jpg

客厅装修是整个装修的重点,所以沙发作用很重要,它的造型和颜色会直接影响到整个客厅风格。浅灰色乳胶漆背景墙,简单的装饰画,简单的装饰材料,营造出现代化空间

九颂大院-126平-现代风格-餐厅.jpg 九颂大院-126平-现代风格-餐厅01.jpg 九颂大院-126平-现代风格-餐厅02.jpg

吊灯以黄色色为基调,在餐桌墙面摆放一些装饰画,增加餐厅情调。餐桌上的绿植则有画龙点睛之处。使餐厅充满生机。让人在就餐中感受轻松和愉快。

九颂大院-126平-现代风格-卧室.jpg

卧室讲究功能齐全,线条明快。在设计时没有设计复杂的天花,吊灯以及墙纸,取而代之的是简洁的家具布置和明快的色调。

九颂大院-126平-现代风格-卫生间.jpg

卫生间围绕现代简约为主题,相互结合。以简洁明快为设计主调,总体上尽量满足业主生活质量需求。卫生间为干湿分离式,提高了生活效率。墙面简单以白色瓷砖为主,简洁大方,凸显现代感。

九颂大院-126平-现代风格-厨房01.jpg 九颂大院-126平-现代风格-厨房.jpg

厨房墙面,顶棚以及家具摆设和灯光都以简约的外形,简单的质地,精密的工艺为主。减少不必要的装饰线条,这样强调了空间的开阔感。让人在其中倍感舒适清爽。

九颂大院-126平-现代风格-平面图.jpg

案例设计师

林凤设计师

设计师:林凤设计师

从业时间:6年

设计理念:化繁为简,以简驭繁。

预约设计师

算算你家装修多少钱

报名即享丰厚赠品,享半价装修

免费报价
咨询热线:400-656-9909
20190221103704574636.jpg

精品设计案例

20180612134930523248.jpg 服务号二维码.jpg