立即预约
免费定制整装家居
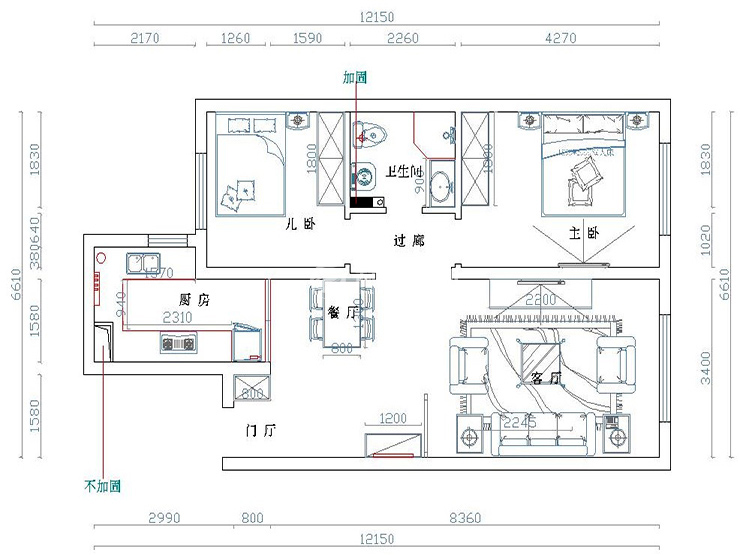
一站置家 全程无忧 一省到底
设计理念:北欧风格的特色是简单大方,配色舒适且温馨,所以简约的空间设计非常含蓄。
案例详情
客厅背景墙以浅灰色为主,简单,清爽,干净,同时不会显得空间单调,对本户型而言,可以很好的达到空间扩干净容的效果。为了使沙发背景墙看上去不空无一物,适当的在背景墙上搭配了具有风格的装饰画,使空间充满现代气息。
餐厅区域,白色餐椅与原木色的餐桌搭配,现代与自然元素相结合,温暖的色调使整个餐厅温暖起来。
南卧以木色为卧室主色调营造的空间凸显干净利落,搭配简单的挂画让卧室瞬间进入温馨时刻,为业主提供舒适的休息氛围。北卧以木色为主,搭配及其简单的挂画及造型奇特的吊灯,使得空间非常有设计感。
在白色的墙面装修能让空间看上去更加清晰明亮。墙面的镜子和精致地灯装饰,让卫生间变得很别致
厨房墙面选用白色小方砖铺贴,增强空间的既视感,看起来空间不会那么拥挤。台面u型布置,充分利用面积,上下布满橱柜,增大了储存空间,易于收纳。
精品设计案例
设计说明:
三室两厅一厨两卫,高层整体采用美式风格,色调以深色为主,体现美式的居家感和温馨感。
设计说明:
本案业主为年轻时尚小两口,所以我们考虑到未来想要给未来宝宝一个温馨舒适的一个房间,所以本案整体采用现代风格的手法,运用颜色,来打造整体空间的设计感及时尚感
设计说明:
本案以北欧风格为主题的设计,北欧风格能以现代、简洁、自然的特点俘获人心,所营造出来的生活氛围会让人倍感舒适与自在。
设计说明:
客户是一名成功人士,对于家的执念就是简单干净,客户衣服比较多,所以把每个空间都做了大衣柜,并且融入到设计里