立即预约 立即预约
免费定制整装家居

免费定制整装家居

一站置家 全程无忧 一省到底
hide.png

当前位置: 首页 > 装修案例效果图 > 金辉中央云著

金辉中央云著 89平 混搭风格效果图

收藏
案例风格 混搭 案例户型 二居 案例面积 89平米
楼盘名称 金辉中央云著 设计师 林凤设计师 案例类型 改善性住宅

设计理念:本案装修风格根据“梵几”这个家具品牌的风格定位,定位为“瑞典风格“和“日式风格“混搭,“瑞典风格“源于北欧瑞典地区,是改进型北欧风格,融合了很多现代元素,保留了北欧风的天然材质和线条简洁性。“日式风格“源于日本,遵循了原始与简洁的理念,本案配饰大多为“日式风格”元素。软装饰搭配纯棉,亚麻等天然材质,饰品摆件以陶器及多色玻璃。

客厅
第1张
第2张
第3张
餐厅
第1张
第2张
卧室
第1张
卫生间
第1张
厨房
第1张
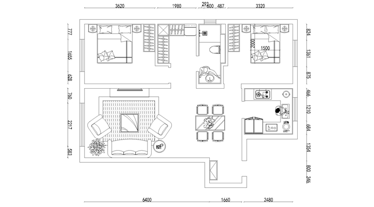
户型图
第1张
  • 案例详情

金辉中央云著-89平-混搭风格-客厅01.jpg 金辉中央云著-89平-混搭风格-客厅02.jpg 金辉中央云著-89平-混搭风格-客厅03.jpg

客厅与餐厅同宽,格局很好。客厅没有做过多的装饰,以白墙为主,陶瓶+干枝,还有悬挂式的电视柜下方的灯光,使背景墙达到日式的禅意效果。

金辉中央云著-89平-混搭风格-餐厅02.jpg 金辉中央云著-89平-混搭风格-餐厅01.jpg

厨房与餐厅地板通铺,考虑水的问题所以在菜盆附近铺了块橡胶垫,更便于清洗。橱柜用原木色的,所以墙砖用了对比强烈质感粗糙的冷灰色墙砖。餐厅按常规餐桌设计取中放置,增加餐桌使用频率,除了吃饭也可以做手工或画画,圆形的发光体增加了日式感觉。

金辉中央云著-89平-混搭风格-卧室.jpg

主卧室和北卧室尺寸都不大,墙面为北欧风格的冷灰色壁纸,原木色的家具,暖色的灯光营造出温馨的效果。

金辉中央云著-89平-混搭风格-卫生间.jpg

4.卫生间和衣帽间一共才5.8平,如果卫生间按常规4平面积做,衣帽间就很难实现了。为了保证业主对衣帽间的需求,把北卧多余的空间规划到卫生间里,这样在衣帽间不减少的情况下,卫生间做到4平米的使用面积,而且卫生间门正好在中间,利用率达到了最好的布局。

金辉中央云著-89平-混搭风格-厨房.jpg

厨房与餐厅地板通铺,考虑水的问题所以在菜盆附近铺了块橡胶垫,更便于清洗。橱柜用原木色的,所以墙砖用了对比强烈质感粗糙的冷灰色墙砖。餐厅按常规餐桌设计取中放置,增加餐桌使用频率,除了吃饭也可以做手工或画画,圆形的发光体增加了日式感觉。

金辉中央云著-89平-混搭风格-平面.jpg

案例设计师

林凤设计师

设计师:林凤设计师

从业时间:20年

设计理念:您的梦想由我来实现。

预约设计师

算算你家装修多少钱

报名即享丰厚赠品,享半价装修

免费报价
咨询热线:400-656-9909
20190221103704574636.jpg

精品设计案例

20180612134930523248.jpg 服务号二维码.jpg