立即预约 立即预约
免费定制整装家居

免费定制整装家居

一站置家 全程无忧 一省到底
hide.png

当前位置: 首页 > 装修案例效果图 > 锦城邻里

锦城邻里 72平 现代简约风格效果图

收藏
案例风格 现代简约 案例户型 二居 案例面积 72平米
楼盘名称 锦城邻里 设计师 林凤装饰设计师 案例类型 婚房

设计理念:本案是现代风格,以浅色调为主,中性时尚,以细腻的质感和淡淡的彩色做补色。

客厅
第1张
第2张
第3张
餐厅
第1张
卧室
第1张
第2张
卫生间
第1张
厨房
第1张
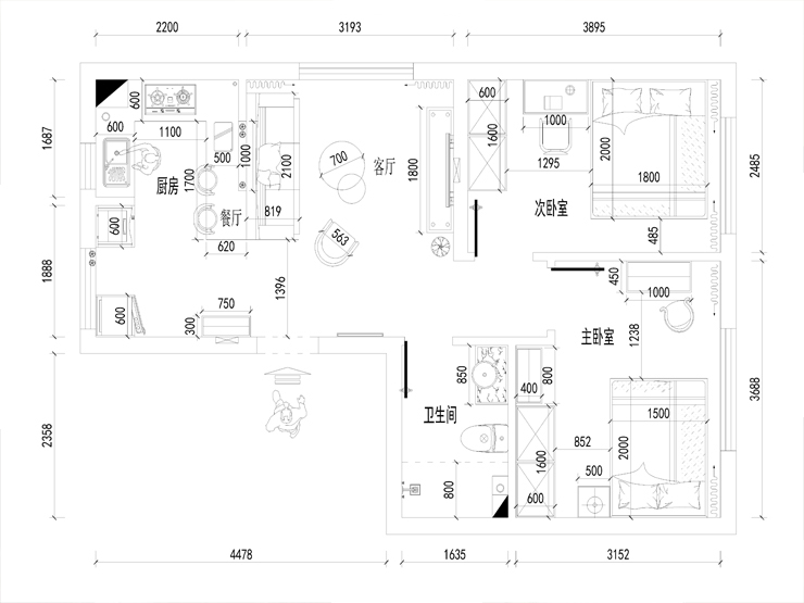
户型图
第1张
  • 案例详情

锦城邻里-72平-现代风格-客厅1.jpg 锦城邻里-72平-现代风格-客厅3.jpg 锦城邻里-72平-现代风格-客厅2.jpg

客厅的设计设计整体来说是最中心点,它在设计的同时又要考虑到动线方面。电视墙采用的是彩色乳胶漆,与旁边对角墙面的颜色做区分,拉伸整个空间的视觉效果,也使得整个客厅变的温馨浪漫。

锦城邻里-72平-现代风格-餐厅.jpg

考虑到餐厅与厨房在一个空间,餐厅的台面是橱柜同一材质的石英石台面,视觉效果扩大了厨房的空间,也使得餐厅与厨房的操作空间变大。

锦城邻里-72平-现代风格-卧室1.jpg 锦城邻里-72平-现代风格-卧室2.jpg

浅蓝色床头背景的彩色乳胶漆,使得整个空间轻松活跃。

锦城邻里-72平-现代风格-卫生间.jpg

整体采用了深咖色与奶白色的瓷砖,奶白色的瓷砖与洁具的颜色产生统一的同时又与地面的深咖色产生颜色冲突,使得狭小的卫生间有明暗分割,给人洁净统一的感觉。

锦城邻里-72平-现代风格-厨房.jpg

整体瓷砖选用了米黄理石纹理横向铺贴的方式,橱柜选用了灰色木材,与纯白色台面对比明显,

锦城邻里-72平-现代风格-户型图.jpg

案例设计师

林凤装饰设计师

设计师:林凤装饰设计师

从业时间:5年

设计理念:设计师不但要引领潮流、还要融入生活,设计的灵感出自于生活但又高于生活的一种产物。如果设计太过脱离生活就不会被消费者接受,不被接受的话 ,这就是一个失败品也没有任何价值意义 , 用最省钱的办法设计出最适合客户的居室 。

预约设计师

算算你家装修多少钱

报名即享丰厚赠品,享半价装修

免费报价
咨询热线:400-656-9909
20190221103704574636.jpg

精品设计案例

20180612134930523248.jpg 服务号二维码.jpg