立即预约 立即预约
免费定制整装家居

免费定制整装家居

一站置家 全程无忧 一省到底
hide.png

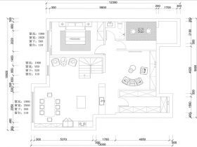
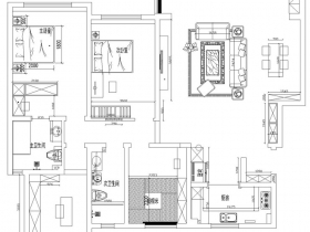
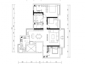
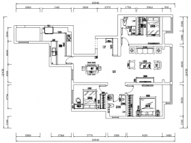
当前位置: 首页 > 装修案例效果图 > 港式,151㎡ - 300㎡,户型图

当前筛选:

港式 hide2.png 151㎡ - 300㎡ hide2.png 户型图 hide2.png

装修预算

200000家庭数据参考、一步解决预算烦恼。

房屋户型

  • 1室
  • 2室
  • 3室
  • 4室
  • 5室
  • 1厅
  • 2厅
  • 3厅
  • 4厅
  • 5厅
  • 1卫
  • 2卫
  • 3卫
  • 4卫
  • 5卫

您的称呼

  • 70㎡以下
  • 71㎡ - 90㎡
  • 91㎡ - 120㎡
  • 121㎡ - 150㎡
  • 151㎡ - 300㎡
  • 300㎡以上

电话号码

project-pic02.jpg

您的称呼

预约时间

房屋地址

电话号码

project-pic02.jpg
你是哪种装修风格.jpg
20180612134930523248.jpg 服务号二维码.jpg