立即预约
免费定制整装家居
一站置家 全程无忧 一省到底
当前位置: 首页 > 装修案例效果图 > 北欧,151㎡ - 300㎡,户型图
设计说明:
本设计方案以北欧风格为主,不想要太多繁杂的造型,去繁从简,设计想线条化,因为考虑到业主也是朝九晚五的上班族,平时压力就大,不想他们回家受束缚 ,太死板因为考虑到以后他们的宝宝跑来跑去,安全性也同样重要。茶几也特意选了一款高低组合的形式,增加很多的可变性,因为沙发也不是选那种高靠背的,所以在茶几的高度上也选择一款相对较低的,这样整个客厅会整体协调。整体风格呢,更多表达生活化的氛围,设计上更想让业主回家就想放松,能保持个好的心情。
设计说明:
北欧风格的主元素,融入了生活元素。本案主要已木色与藏蓝色搭配为主,米色的布艺沙发更凸显出主人的品味,在大气的前题下又陪衬出家的温馨与舒适。
设计说明:
随着社会经济的发展,人们生活水平的提高,越来越多的人们喜欢上了,简单,大气,彰显生活品质的居住场所,此设计是给一对年轻的夫妇,要求希望可以居住在一个具有色彩搭配,充满设计感。
设计说明:
旭辉东樾城300平4居室林凤装饰的装修风格定位为北欧风格,源于北欧瑞典地区,是改进型北欧风格,融合了很多现代元素,保留了北欧风的天然材质和线条简洁性。墙面局部做了灰绿色来增加立面的变化,地面以灰色地砖为主,搭配浅实木框架的家具。软装饰搭配纯棉,亚麻等天然材质,饰品摆件以陶器及多色玻璃。
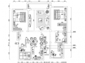
户型分析:
优点:本案例原始户型的客厅归方,举架高,餐厅位置合理,可扩建地方比较多,地下室有采光通风井,南区最南侧的房子不挡光。
缺点:无北花园,造成北侧楼间距小,卫生间采光通风不好,整体户型东西间距不够宽,南北过长。地下室五米举架比较低,原户型一楼靠近厨房有一个卧室,造成厨房过小,下水管道需要重新布局。
设计说明:
华润橡树湾160平4居室林凤装饰的装修风格定位为北欧风格,源于北欧瑞典地区,是改进型北欧风格,融合了很多现代元素,保留了北欧风的天然材质和线条简洁性。墙面局部做了生态木来增加立面的变化,地面以原木色地板为主,搭配浅实木框架的家具。软装饰搭配纯棉,亚麻等灰色天然材质,饰品摆件以陶器及多色玻璃。
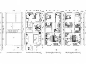
户型分析:
优点:本案例原始户型的客厅归方,开间大举架高,餐厅位置合理,可扩建地方比较多,北进户门可以通过拆改,改为东进户。
缺点:次卫过小,次卫干湿分离的地方对整体客厅影响比较大,两个北卧太小;举架可以,但是厨房管道不合理,造成新风系统与原管道冲突,影响最后布管后的举架。
设计说明:
江户雅致200平3居室北欧风格林凤装饰设计整体以温馨,浪漫为主导,为业主打造一个柔美舒适,浪漫宁静的家。
设计说明:
本案设计为北欧风格,加以中式元素点缀,丰富空间层次。以人为本的设计理念在本案设计中表现的淋淋尽致。主要采用木质材质穿插于各个空间,增强空间的连贯性,冷色调的整体搭配与小面积暖色块碰撞,营造舒适而不失情趣的居住氛围。
设计说明:
金地铁西檀府155平4居室林凤装饰以北欧风格为主题,北欧风格是一种以“简单”为主题的装饰风格,“轻装修,重装饰”是它的代名词。在硬装上北欧风格没有什么华丽的装饰,基本都是靠软装来体现,这次的设计方案就是处处体现着自然,简单的感觉。营造出了一种闲适,惬意的生活环境。