立即预约
免费定制整装家居
一站置家 全程无忧 一省到底
当前位置: 首页 > 装修案例效果图 > 一居,91㎡ - 120㎡,户型图
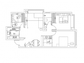
设计说明:
设计说明:
设计师整体设计理念: 家里常住一家两口,希望各个空间都能有较高的舒适性;在收纳功能上要求空间大,且能做到分门别类;周末和节假日的时候,家里需要接待家人和朋友,需要一个比较大的公共活动空间。
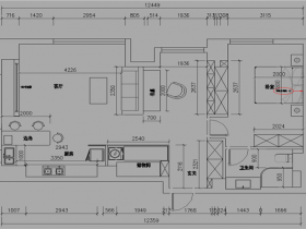
设计说明:
本案以北欧为主设计,大气沉稳温馨是设计的主线,这种搭配令客户舒,是不错的选择。
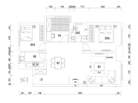
设计说明:
本案设计师以“简化生活”为设计理念,以“回归”为主题构思,是为了满足业主希望在繁忙的一天工作后,回到家中去找寻一份宁静与温暖的诉求,让业主回归家、回归生活、回归自然。
空间以自然的色调与简约的设计相融合,不仅反映出现代人追求简单生活的居住要求,更体现出家居设计风格的内敛和质朴,使简约风格更加实用、更富现代感。
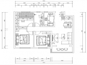
设计说明:
本案采用丰富的色彩打造一种温馨的感觉,深灰色和棕色让空间更加温暖,更有结婚之后家的感觉,也让空间没有因为灰色的加入而缺失温馨的感觉。
设计说明:
本案装修风格为北欧风格
设计说明:
本案业主对平面空间规划相当重视,喜欢明显的区域分隔,风格希望尽量简洁,提倡空间简洁明了,同时略带一丝韵味,设计师打破了传统新中式风格,通过对空间、功能的合理分配,通过简约并略带现代感的金属线条,黑、白、咖等几种典雅的经典配色,还原家居生活的本质——修养身心。
设计说明:
本案采用简约美式风格,在陈设以简约复古的形式体现出简美的风格特点。以美式原木质感的家具与皮质材料完美的在一起,利用明亮的点缀配色,使整体空间沉稳大气又不是明亮。