立即预约
免费定制整装家居
一站置家 全程无忧 一省到底
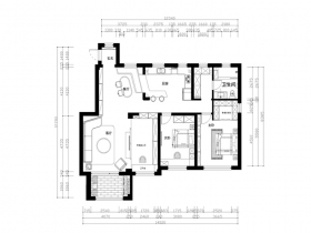
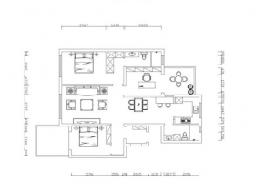
当前位置: 首页 > 装修案例效果图 > 工业风,三居,户型图
设计说明:
设计师整体设计理念:用设计改变生活,用设计丰富生活。
业主家庭情况及要求:业主是一对年轻情侣,还没有孩子,更加喜欢那种房子宽敞明亮的感觉,家具摆放简洁大方,同时希望家里有足够多的收纳功能。
设计说明:
工业风装饰设计兴起,越来越多的潮流家居使用了砖墙的元素,砖墙的设计可以是空间更具工业化,也更别致。
设计说明:
本案为现代工业风格,工业风是经过深思熟虑后经过创新的得出的设计和思路的延展,不是简单的“堆砌”和平淡的摆放,不像有些设计师粗浅的理解的直白,它是凝结着设计师的独具匠心,即美观又实用。以简洁工业的表现形式来满足人们对空间环境的那种感性的,本性的和狂野的需求,这是当今国际社会流行的设计风格——现代工业风格。
设计说明:
该案设计采用loft风格,主色调采用黑白灰色,利用色彩丰富的软装配饰做以搭配,黑白灰为经典颜色,软装的搭配使整体空间不再平淡无奇,使空间层次更加丰富。
设计说明:
本案是以工业材料质感比较强烈为主的设计方案,本案设计中即保留业主对工业质感的追求又不失对生活细节的把控,让工业质感的张狂与对生活品质细腻要求的完美结合。
设计说明:
工业风格运用分裂与解析的手法,打破和分解了既存的形式、意向格局和模式,导致一定程度上的模糊性和多义性,将工业风格设计的冷漠、理性的特征反叛为一种在设计细节中采用的调侃手段,以强调非理性因素来达到一种设计中的轻松和宽容。
设计说明:
黑白灰色系十分适合工业风。 黑色神秘冷酷,白色优雅轻盈,两者混搭交错又可以创造出更多层次的变化;在搭配室内装潢与家俱的颜色时候,选用纯粹的黑白灰色系,可以让 家里更有工业风的感觉哦!
设计说明:
整个空间在风格的选择上,设计师给业主选择的师现在,并没有没那么多客户可以接受的工业风,整体以浅灰色为主,搭配以白色提亮整个空间,再加上暗色调的金属元素让整个空间,加上了一份重量。