立即预约
免费定制整装家居
一站置家 全程无忧 一省到底
当前位置: 首页 > 装修案例效果图 > 北欧,三居,91㎡ - 120㎡,户型图
设计说明:
生命是不断变化的旅程,十年前,我们拥有的不多,十年后,拥有的多了 ,对于生活的重视却从未改变, 家的故事,应该是从两人开始说起,慢慢的,可能是三个人,也可能四个人一起写的故事,我很期待,未来,你们与自然共生,享受日常的自在、美好 .
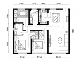
设计说明:
本案装修风格以北欧装修为主,北欧风被推上了家装的时尚巅峰。北欧风格强调简单结构与舒适功能的完美结合。业主是年轻小两口为了给孩子以后上学买的学区房。
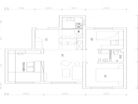
设计说明:
由于本房主家采光非常差,所以在色彩搭配上以大面积白色为主,简洁大方。配色上选用的是今年流行的莫兰迪色,无纯度特别高的彩色,所有颜色都加入了灰色。
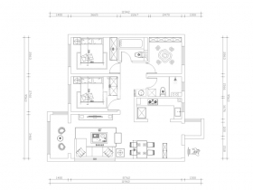
设计说明:
本次设计方案以北欧风格为主,简单,不枯燥,用简单的设计,搭配不简单的色彩。营造不一样的家居设计。
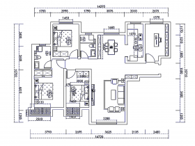
设计说明:
通过家具的布局以及色彩的搭配营造出温馨祥和的空间。
设计说明:
本案设计整体以简洁,干练为主导,为业主打造一个自然舒适,干净之美的家。
设计说明:
通过平面规划和色彩搭配来打造浪漫舒适的居家空间。
设计说明:
北欧风格是大部分年轻人喜欢的装修风格,它以简洁、干练形式来体现它的自然、和舒适。北欧是一个比较寒冷的地方,所以总是采用一些温暖的元素来温暖人们的心灵。多采用木质的地板、简洁的家具和各种配饰,来体现对传统的尊重,对自然的欣赏,以及材料的价值体现。