立即预约
免费定制整装家居
一站置家 全程无忧 一省到底
当前位置: 首页 > 装修案例效果图 > 现代简约,四居,151㎡ - 300㎡,户型图
设计说明:
本案以现代简约风格出发,注重空间的布局与使用功能的完美结合,发挥结构构成本身的形式美,造型简洁,搭配上舒适自然的家居布置,棕色的细节点缀让空间更加高级大气,营造出一种轻松自然的氛围。
设计说明:
一个人的家,决定着他的层次,藏着一生的模样。
家不仅仅是住所,更是一个人品味和生活状态的体现。
当极简风撞上蓝灰色和大理石,不仅让设计充满时尚感、高级感,功能上也实用又方便。267平的极简风,在干净大气高颜值空间,找到心目中“家”的归属感。
设计说明:
设计说明:人的一生,绝大部分时间是在室内度过的,因此,人们设计创造的室内环境要更加考虑一些舒适性
设计说明:
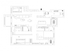
设计师整体设计理念:经过前期和客户的沟通,整体格局开阔,不会有压抑感,色彩搭配合理,简约奶油风不显得单调,在满足住户基本需求的同时,增加美感与时尚感
设计说明:
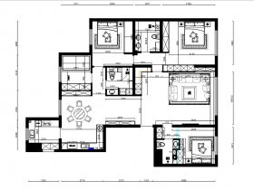
设计师整体设计理念:根据客户的喜好与需求,来打造一个简约而富有功能性的空间,通过合理的空间规划和布局,让每一个角落都充满实用性和美观性,让家成为一个既美观又实用的空间。
设计说明:
设计师整体设计理念: 整体思路考虑简单,容易打理,便于居住的前提下多考虑一些暖色调,不要太冷。
设计说明:
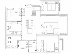
设计理念:本案建筑面积200平米,根据业主需求设计了现代风格,常住人口只有夫妻2人加小孩,父母偶尔回来居住,所以保证要有3间卧室的同时,还需要一个供孩子玩耍的亲子空间。希望尽量保证自己在各个区域时,都可以关注到孩子的活动,让孩子随时在自己的视线范围内。
设计说明:
一个人的家,决定着他的层次,藏着一生的模样。
家不仅仅是住所,更是一个人品味和生活状态的体现。
当极简风撞上蓝灰色和大理石,不仅让设计充满时尚感、高级感,功能上也实用又方便。267平的极简风,在干净大气高颜值空间,找到心目中“家”的归属感。
极简不仅是一种风格,更是一种生活态度