立即预约
免费定制整装家居
一站置家 全程无忧 一省到底
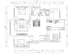
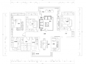
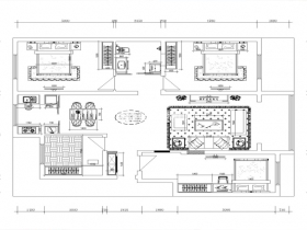
当前位置: 首页 > 装修案例效果图 > 轻奢,四居,121㎡ - 150㎡,户型图
设计说明:
设计理念: 本案采用了现代轻奢风格,注重深浅颜色对比,运用黑白灰咖为主体色调,通过每个颜色的占比不同打造出视觉冲击感。体现了业主的品味
设计说明:
本案以现代元素为主,采用理石质感的石材,搭配灰色木质定制类家具,配以亚麻质感的软装饰品,打造一种现代时尚简洁的居住空间
设计说明:
本案以现代轻奢风格为主的设计,运用了理石背景墙和整体壁纸墙面做搭配,全屋采用无主灯设计让本案更加唯美的体现了现代奢华的感觉。
设计说明:
用心感悟空间,让设计融入生活。
设计说明:
整体设计是以轻奢造型,现代家具为主,整个空间设计明亮大方,没有风格的局限性。
设计说明:
本案是比较主流的低调奢华的轻奢风格,用大面的壁布做基调,通过墙面一些主饰面墙体划分区域和衔接区域,用硬朗的钢条做元素边框,再通过冷暖灯光的调节和水蓝色的软装配饰点缀提艳空间色彩。
设计说明:
本方案以现代轻奢的风格为主题,运用理石造型和硬包造型进行色彩调配,让屋内显得格外的奢华低调,屋内功能性全面,空间功能性最大化。
设计说明:
本方案以现代轻奢的风格为主题,墙面运用了硬包墙板造型与地面理石文理的大地砖搭配,让屋内显得奢华低调,合理性的布局空间让功能性最大化。