立即预约
免费定制整装家居
一站置家 全程无忧 一省到底
近期正值新房的下房高峰期,很多新下房业主都想趁着装修公司年终收官的优惠,尽快定下装修来避免来年涨价。但是很多业主都是第一次装修,所以很多问题一时间无法做出决定,所以为了帮各位新房装修业主解决难题,今天小编分享的是沈北新区富力星月湾128㎡四室两厅装修分析。
首先我们先分析一下这个户型:
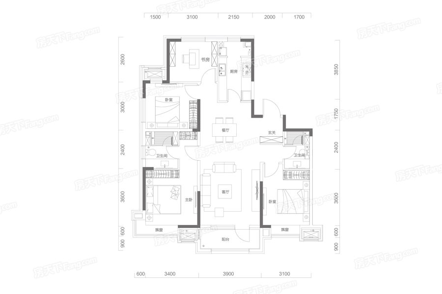
本套户型的整体空间方正,规整程度一般,虽然整套户型采用全明的格局,对于整体的通风和采光都有良好的保证,但是很多部分的空间都有一些缺陷,在装修时需要格外设计和改造的空间较多,居住体验一般。
(户型图源自房天下)
接下来我们一起分析一下富力星月湾128㎡四室两厅各个空间如何装修:
本套户型的玄关区域空间一般,在开门的对侧有隔墙,可以选择整体收纳柜设计。
(图为富力星月湾128㎡玄关装修效果图)
本套户型的餐厅空间宽敞且邻近客厅厨房,由于厨房空间一般,所以餐厅只能单独设计。另外还要注意餐厅客厅的空间分隔尽量不要做硬隔断,吊顶或者波导线隔断效果会更好。
(图为富力星月湾128㎡美式风格餐厅装修效果图)
本套户型的厨房空间宽敞但是过于细长,另外在厨房的旁边还有阳台,所以在装修时只能选择二字型厨房设计,对于旁边的阳台建议作为洗衣空间使用,需要注意的是晾晒衣物需要防止油烟;再有就是厨房建议选择推拉门设计减少对厨房空间的侵占。
(图为富力星月湾128㎡二字型厨房装修效果图)
本套户型的客厅整体空间一般,不过有阳台相邻,在装修时如果觉得空间不足可以选择合并扩展空间。
(图为富力星月湾128㎡轻奢风格客厅装修效果图)
本套户型的卫生空间宽敞而且还有独立的洗衣空间,所以在装修时有很充分的设计空间可以利用。
(图为富力星月湾128㎡卫生间装修效果图)
本套户型中有四个居室空间,位于整个户型西南侧的主卧空间开门正对着厕所门比较尴尬,在设计时需要着重注意。另外对于东南角和北侧的居室需要注意相邻空间防水以免影响使用。
(图为富力星月湾128㎡主卧装修效果图)
以上就是关于沈北新区富力星月湾128㎡四室两厅装修分析,从整体来看本套户型有很多空间存在,需要适当调整,所以在装装修时要格外注意。由于每个人的喜好不同,所以具体的装修改造情况还要以各个业主的自身习惯为准,对于已经收房的业主想要尽快装修的的话,建议趁着各大装修公司的年终收官尽快选择。另外林凤装饰近期还有更大力的的压轴收官活动优惠多多,预约咨询热线:400-656-9909
2026-03-07 14:39:29 | 浏览次数:263
2026-02-28 17:10:52 | 浏览次数:325
2026-02-27 16:02:41 | 浏览次数:416
2026-02-26 17:06:34 | 浏览次数:368
2026-02-25 16:35:18 | 浏览次数:391
2026-02-24 17:28:55 | 浏览次数:372
2026-02-08 09:25:29 | 浏览次数:523
2026-02-05 16:57:20 | 浏览次数:543
2026-02-02 16:33:59 | 浏览次数:576
2026-02-01 10:26:50 | 浏览次数:603
2026-01-31 17:18:50 | 浏览次数:631
2026-01-29 16:47:07 | 浏览次数:631
2026-01-28 10:30:32 | 浏览次数:613
2026-01-27 16:06:55 | 浏览次数:622
2026-01-25 14:52:18 | 浏览次数:752
2026-01-24 15:28:45 | 浏览次数:692
2026-01-23 09:57:17 | 浏览次数:592
2026-01-22 09:45:51 | 浏览次数:665
2026-01-21 16:31:49 | 浏览次数:655
2026-01-20 16:48:01 | 浏览次数:621
2026-01-18 15:07:26 | 浏览次数:683
2026-01-17 16:49:29 | 浏览次数:638
2026-01-16 16:56:27 | 浏览次数:636
2026-01-14 15:32:43 | 浏览次数:616
2026-01-13 14:20:41 | 浏览次数:830
2026-01-11 13:59:36 | 浏览次数:774
2026-01-10 09:30:19 | 浏览次数:747
2026-01-09 10:21:59 | 浏览次数:944
2026-01-08 16:20:41 | 浏览次数:725
2026-01-07 09:31:25 | 浏览次数:805
2026-01-06 16:34:08 | 浏览次数:783
2026-01-04 10:40:41 | 浏览次数:836
2026-01-03 15:03:20 | 浏览次数:923
2026-01-02 16:58:37 | 浏览次数:823
2025-12-31 11:03:08 | 浏览次数:1016
2025-12-30 13:35:19 | 浏览次数:894
2025-12-29 10:38:58 | 浏览次数:913
2025-12-28 16:28:29 | 浏览次数:970
2025-12-27 15:31:11 | 浏览次数:920
2025-12-26 16:06:04 | 浏览次数:1005
2025-12-25 11:37:22 | 浏览次数:1133
2025-12-24 10:33:54 | 浏览次数:1047
2025-12-23 16:52:26 | 浏览次数:1007
2025-12-21 09:51:53 | 浏览次数:1003
2025-12-20 15:17:47 | 浏览次数:961
2025-12-19 16:28:25 | 浏览次数:1084
2025-12-18 16:46:55 | 浏览次数:1011
2025-12-17 10:08:28 | 浏览次数:1329
2025-12-16 15:19:16 | 浏览次数:1117
2025-12-14 11:34:12 | 浏览次数:1064
2025-12-13 16:10:23 | 浏览次数:1113
2025-12-11 14:15:40 | 浏览次数:1056
2025-12-10 16:30:57 | 浏览次数:1147
2025-12-09 15:48:50 | 浏览次数:1195
2025-12-07 15:06:17 | 浏览次数:1104
2025-12-06 10:19:53 | 浏览次数:987
2025-12-05 11:09:51 | 浏览次数:984
2025-12-04 16:24:49 | 浏览次数:1114
2025-12-03 16:29:06 | 浏览次数:930
2025-12-02 11:32:59 | 浏览次数:1039
2025-11-30 11:14:22 | 浏览次数:986
2025-11-29 16:10:33 | 浏览次数:981
2025-11-28 16:27:35 | 浏览次数:1256
2025-11-27 16:59:59 | 浏览次数:1025
2025-11-26 16:03:41 | 浏览次数:956
2025-11-25 16:25:40 | 浏览次数:1038
2025-11-23 11:08:56 | 浏览次数:1121
2025-11-22 16:50:53 | 浏览次数:1128
2025-11-21 13:40:40 | 浏览次数:1109
2025-11-20 10:13:24 | 浏览次数:1219
2025-11-19 15:03:18 | 浏览次数:1134
2025-11-18 15:29:16 | 浏览次数:1149
2025-11-16 10:45:00 | 浏览次数:1189
2025-11-15 16:29:08 | 浏览次数:1322
2025-11-14 16:31:13 | 浏览次数:1165
2025-11-13 16:59:57 | 浏览次数:1191
2025-11-12 16:36:18 | 浏览次数:1258
2025-11-09 10:20:31 | 浏览次数:1347
2025-11-08 10:44:56 | 浏览次数:1175
2025-11-07 15:23:52 | 浏览次数:1226
2025-11-06 16:10:25 | 浏览次数:1214
2025-11-05 10:30:03 | 浏览次数:1259
2025-11-04 11:23:07 | 浏览次数:1317
2025-11-02 16:11:15 | 浏览次数:1250
2025-11-01 16:19:20 | 浏览次数:1270
2025-10-31 09:16:58 | 浏览次数:1272
2025-10-30 10:32:28 | 浏览次数:1254
2025-10-29 16:09:09 | 浏览次数:1197
2025-10-28 16:22:48 | 浏览次数:1212
2025-10-26 10:19:39 | 浏览次数:1290
2025-10-25 16:11:14 | 浏览次数:1351
2025-10-24 15:28:42 | 浏览次数:1333
2025-10-23 10:40:33 | 浏览次数:1326
2025-10-22 14:52:12 | 浏览次数:1171
2025-10-21 16:43:25 | 浏览次数:1240
2025-10-19 12:34:45 | 浏览次数:1227
2025-10-17 14:35:23 | 浏览次数:1309
2025-10-16 10:57:27 | 浏览次数:1269
2025-10-15 12:25:26 | 浏览次数:1233
2025-10-12 14:06:26 | 浏览次数:1384
2025-10-11 09:51:02 | 浏览次数:1462
2025-10-10 15:15:08 | 浏览次数:1482
2025-10-09 16:32:40 | 浏览次数:1603
2025-10-08 14:45:02 | 浏览次数:1455
2025-10-07 17:07:28 | 浏览次数:1473
2025-10-06 13:19:04 | 浏览次数:1443
2025-10-05 13:47:19 | 浏览次数:1497
2025-10-02 15:01:32 | 浏览次数:1506
2025-10-01 15:51:24 | 浏览次数:1544
2025-09-30 09:37:29 | 浏览次数:1586
2025-09-29 16:34:57 | 浏览次数:1618
2025-09-27 16:43:36 | 浏览次数:1636
2025-09-26 11:03:39 | 浏览次数:1749
2025-09-25 10:26:55 | 浏览次数:1572
2025-09-24 15:17:39 | 浏览次数:1723
2025-09-23 10:00:33 | 浏览次数:1886
2025-09-21 14:19:19 | 浏览次数:1825
2025-09-20 15:09:15 | 浏览次数:1778
2025-09-19 15:51:53 | 浏览次数:1882
2025-09-18 14:49:34 | 浏览次数:1683
2025-09-17 16:47:52 | 浏览次数:1697
2025-09-16 16:35:07 | 浏览次数:2083
2025-09-14 14:59:51 | 浏览次数:1854
2025-09-13 17:04:32 | 浏览次数:1792
2025-09-12 09:35:24 | 浏览次数:1963
2025-09-11 15:46:23 | 浏览次数:1914
2025-09-10 13:58:02 | 浏览次数:1994
2025-09-09 16:48:23 | 浏览次数:2020
2025-09-07 11:44:11 | 浏览次数:2035
2025-09-06 09:43:11 | 浏览次数:2010
2025-09-05 09:51:41 | 浏览次数:1932
2025-09-04 17:08:16 | 浏览次数:2213
2025-09-03 16:42:34 | 浏览次数:2114
2025-09-02 14:35:40 | 浏览次数:2016
2025-08-31 09:42:38 | 浏览次数:2016
2025-08-30 17:10:52 | 浏览次数:2010
2025-08-29 16:56:07 | 浏览次数:2246
2025-08-28 16:10:50 | 浏览次数:1955
2025-08-27 15:11:21 | 浏览次数:2044
2025-08-26 16:13:37 | 浏览次数:1978
2025-08-24 10:34:05 | 浏览次数:2115
2025-08-23 16:22:41 | 浏览次数:2004
2025-08-22 09:54:07 | 浏览次数:1905
2025-08-21 15:44:53 | 浏览次数:1776
2025-08-20 10:30:48 | 浏览次数:1893
2025-08-19 15:26:24 | 浏览次数:1882
2025-08-17 09:38:31 | 浏览次数:1985
2025-08-16 09:17:41 | 浏览次数:1975
2025-08-15 16:16:38 | 浏览次数:1916
2025-08-14 15:11:15 | 浏览次数:1986
2025-08-13 11:16:39 | 浏览次数:1941
2025-08-12 16:40:13 | 浏览次数:1902
2025-08-10 11:51:34 | 浏览次数:2233
2025-08-09 15:23:47 | 浏览次数:2360
2025-08-08 17:05:56 | 浏览次数:2243
2025-08-07 14:22:25 | 浏览次数:2218
2025-08-06 16:11:50 | 浏览次数:2207
2025-08-05 16:24:45 | 浏览次数:2163
2025-08-03 16:42:11 | 浏览次数:2125
2025-08-02 16:52:53 | 浏览次数:2157
2025-08-01 12:33:16 | 浏览次数:2122
2025-07-31 13:52:41 | 浏览次数:2184
2025-07-30 14:25:27 | 浏览次数:2312
2025-07-29 14:53:02 | 浏览次数:2211
2025-07-27 10:22:56 | 浏览次数:2009
2025-07-26 10:32:01 | 浏览次数:2091
2025-07-25 11:25:50 | 浏览次数:2329
2025-07-24 14:06:45 | 浏览次数:2183
2025-07-23 10:12:49 | 浏览次数:2055
2025-07-22 15:40:09 | 浏览次数:1994
2025-07-20 10:09:20 | 浏览次数:2013
2025-07-19 12:38:59 | 浏览次数:1975
2025-07-18 16:29:46 | 浏览次数:1969
2025-07-17 10:16:42 | 浏览次数:2180
2025-07-16 10:45:54 | 浏览次数:2406
2025-07-15 15:35:01 | 浏览次数:2128
2025-07-13 10:07:41 | 浏览次数:1928
2025-07-12 16:51:37 | 浏览次数:2187
2025-07-11 16:37:32 | 浏览次数:2169
2025-07-10 16:47:48 | 浏览次数:2192
2025-07-09 15:34:09 | 浏览次数:2127
2025-07-08 15:52:37 | 浏览次数:2214
2025-07-06 10:40:32 | 浏览次数:2408
2025-07-05 17:15:15 | 浏览次数:2225
2025-07-04 09:49:17 | 浏览次数:2138
2025-07-03 16:41:12 | 浏览次数:2289
2025-07-02 15:50:42 | 浏览次数:2167
2025-07-01 12:31:53 | 浏览次数:2016
2025-06-30 16:27:08 | 浏览次数:2045
2025-06-29 09:55:37 | 浏览次数:2222
2025-06-28 16:36:33 | 浏览次数:2256
2025-06-27 14:03:37 | 浏览次数:2350
2025-06-26 16:06:22 | 浏览次数:2139
2025-06-24 15:26:00 | 浏览次数:2368
2025-06-22 10:00:14 | 浏览次数:2967
2025-06-21 10:08:40 | 浏览次数:2521
2025-06-20 14:52:47 | 浏览次数:2396
2025-06-19 16:36:24 | 浏览次数:2587
2025-06-18 15:44:05 | 浏览次数:2395
2025-06-13 11:33:04 | 浏览次数:2347
2025-06-12 16:01:19 | 浏览次数:2488
2025-06-11 15:19:21 | 浏览次数:2397
2025-06-10 16:40:08 | 浏览次数:2497
2025-06-08 14:39:12 | 浏览次数:2339
2025-06-07 15:14:59 | 浏览次数:2535
2025-06-06 16:03:43 | 浏览次数:2262
2025-06-05 16:03:53 | 浏览次数:2328
2025-06-04 16:33:15 | 浏览次数:2515
2025-06-02 14:16:04 | 浏览次数:2286
2025-06-01 09:05:36 | 浏览次数:2512
2025-05-31 14:26:35 | 浏览次数:2442
2025-05-30 16:37:51 | 浏览次数:2143
2025-05-29 16:24:51 | 浏览次数:2380
2025-05-28 14:38:54 | 浏览次数:2238
2025-05-27 16:09:59 | 浏览次数:2333
2025-05-25 11:41:11 | 浏览次数:2430
2025-05-24 15:50:28 | 浏览次数:2266
2025-05-23 16:50:58 | 浏览次数:2241
2025-05-22 11:28:42 | 浏览次数:2399
2025-05-21 16:25:34 | 浏览次数:2253
2025-05-20 16:07:22 | 浏览次数:2233
2025-05-18 11:08:06 | 浏览次数:2338
2025-05-17 16:44:37 | 浏览次数:2427
2025-05-16 16:18:03 | 浏览次数:2488
2025-05-15 15:18:00 | 浏览次数:3007
2025-05-14 15:38:10 | 浏览次数:2355
2025-05-13 14:27:50 | 浏览次数:2161
2025-05-11 10:14:30 | 浏览次数:2427
2025-05-10 16:59:04 | 浏览次数:2392
2025-05-09 15:20:33 | 浏览次数:2355
2025-05-08 15:18:03 | 浏览次数:2785
2025-05-05 15:44:43 | 浏览次数:2590
2025-05-04 15:22:31 | 浏览次数:2826
2025-05-03 16:12:37 | 浏览次数:2407
2025-05-02 15:32:47 | 浏览次数:2661
2025-05-01 16:09:56 | 浏览次数:2550
2025-04-30 13:29:34 | 浏览次数:2523
2025-04-25 11:56:45 | 浏览次数:2588
2025-04-24 15:18:22 | 浏览次数:2545
2025-04-23 15:24:21 | 浏览次数:2566
2025-04-22 16:36:31 | 浏览次数:2420
2025-04-20 10:16:19 | 浏览次数:2777
2025-04-19 14:10:59 | 浏览次数:2432
2025-04-18 15:37:43 | 浏览次数:2808
2025-04-17 14:54:29 | 浏览次数:2479
2025-04-16 15:36:16 | 浏览次数:2546
2025-04-15 11:33:47 | 浏览次数:2477
2025-04-13 10:17:57 | 浏览次数:2538
2025-04-12 09:46:39 | 浏览次数:2996
2025-04-11 15:15:06 | 浏览次数:2564
2025-04-10 15:23:21 | 浏览次数:2739
2025-04-09 15:36:16 | 浏览次数:2489
2025-04-08 14:07:17 | 浏览次数:2492
2025-04-06 10:00:17 | 浏览次数:2912
2025-04-05 16:11:40 | 浏览次数:2725
2025-04-04 16:27:40 | 浏览次数:2746
2025-04-03 15:32:16 | 浏览次数:2510
2025-04-02 14:47:40 | 浏览次数:3240
2025-04-01 11:02:10 | 浏览次数:2753
2025-03-31 14:45:43 | 浏览次数:2883
2025-03-30 11:40:27 | 浏览次数:2925
2025-03-29 16:01:08 | 浏览次数:2994
2025-03-28 16:46:53 | 浏览次数:2849
2025-03-27 16:24:49 | 浏览次数:2791
2025-03-26 15:11:15 | 浏览次数:2893
2025-03-25 14:20:18 | 浏览次数:2752
2025-03-23 10:27:52 | 浏览次数:3145
2025-03-22 14:30:31 | 浏览次数:2851
2025-03-21 15:03:22 | 浏览次数:2664
2025-03-20 10:31:21 | 浏览次数:2888
2025-03-19 16:20:32 | 浏览次数:2985
2025-03-18 15:31:40 | 浏览次数:2965
2025-03-16 09:38:53 | 浏览次数:2894
2025-03-15 10:47:41 | 浏览次数:2834
2025-03-14 16:17:20 | 浏览次数:2948
2025-03-13 14:54:41 | 浏览次数:2905
2025-03-12 15:55:07 | 浏览次数:2702
2025-03-11 16:33:55 | 浏览次数:2943
2025-03-09 10:40:41 | 浏览次数:2855
2025-03-08 16:30:36 | 浏览次数:2998
2025-03-07 16:18:36 | 浏览次数:2833
2025-03-06 16:13:33 | 浏览次数:2812
2025-03-05 15:40:13 | 浏览次数:3130
2025-03-03 15:08:44 | 浏览次数:2932
2025-03-02 10:13:25 | 浏览次数:3158
2025-03-01 09:59:10 | 浏览次数:3017
2025-02-28 10:23:39 | 浏览次数:3060
2025-02-27 16:01:34 | 浏览次数:2847
2025-02-26 14:18:40 | 浏览次数:3073
2025-02-25 15:25:22 | 浏览次数:3015
2025-02-23 10:08:49 | 浏览次数:2950
2025-02-22 15:47:47 | 浏览次数:2876
2025-02-21 15:32:49 | 浏览次数:2833
2025-02-20 14:55:50 | 浏览次数:2854
2025-02-19 14:13:22 | 浏览次数:2952
2025-02-18 11:25:27 | 浏览次数:3066
2025-02-16 09:30:24 | 浏览次数:2938
2025-02-15 16:06:27 | 浏览次数:2962
2025-02-14 15:02:39 | 浏览次数:3088
2025-02-12 14:01:16 | 浏览次数:3083
2025-02-11 10:34:08 | 浏览次数:3306
2025-02-09 10:15:04 | 浏览次数:2986
2025-02-08 09:55:57 | 浏览次数:3190
2025-02-07 14:29:39 | 浏览次数:3127
2025-01-21 11:47:41 | 浏览次数:3280
2025-01-19 15:29:54 | 浏览次数:3135
2025-01-18 17:01:49 | 浏览次数:3347
2025-01-17 14:07:21 | 浏览次数:3280
2025-01-16 09:22:42 | 浏览次数:3068
2025-01-15 16:45:18 | 浏览次数:3205
2025-01-14 10:18:46 | 浏览次数:3189
2025-01-12 16:35:25 | 浏览次数:3356
2025-01-11 09:56:40 | 浏览次数:3090
2025-01-10 15:42:17 | 浏览次数:3516
2025-01-09 16:20:28 | 浏览次数:2966
2025-01-08 15:25:38 | 浏览次数:2913
2025-01-07 10:51:29 | 浏览次数:2927
2025-01-05 11:24:58 | 浏览次数:2857
2025-01-04 09:04:40 | 浏览次数:2942
2025-01-03 09:32:19 | 浏览次数:3234
2025-01-02 11:12:47 | 浏览次数:2995
2024-12-31 10:28:01 | 浏览次数:2972
2024-12-30 16:25:14 | 浏览次数:3758
2024-12-29 10:02:50 | 浏览次数:3142
2024-12-28 16:20:53 | 浏览次数:3057
2024-12-27 16:04:59 | 浏览次数:2974
2024-12-26 16:46:17 | 浏览次数:3434
2024-12-25 16:07:44 | 浏览次数:3045
2024-12-24 15:00:08 | 浏览次数:3115
2024-12-22 11:01:23 | 浏览次数:3184
2024-12-21 16:54:54 | 浏览次数:3007
2024-12-20 16:53:46 | 浏览次数:3327
2024-12-19 16:54:27 | 浏览次数:3202
2024-12-18 16:48:02 | 浏览次数:3438
2024-12-17 16:27:57 | 浏览次数:3383
2024-12-15 11:08:44 | 浏览次数:3381
2024-12-14 15:58:28 | 浏览次数:3037
2024-12-13 16:45:50 | 浏览次数:3149
2024-12-12 16:44:03 | 浏览次数:3183
2024-12-11 16:29:10 | 浏览次数:3280
2024-12-10 16:05:56 | 浏览次数:3451
2024-12-08 11:41:01 | 浏览次数:3328
2024-12-07 16:32:22 | 浏览次数:3446
2024-12-06 16:39:11 | 浏览次数:3246
2024-12-05 16:40:23 | 浏览次数:3224
2024-12-04 16:17:22 | 浏览次数:3151
2024-12-03 15:59:15 | 浏览次数:3166
2024-12-01 10:34:03 | 浏览次数:3417
2024-11-30 16:39:14 | 浏览次数:3349
2024-11-29 16:20:50 | 浏览次数:3347
2024-11-28 15:47:34 | 浏览次数:3135
2024-11-27 16:13:42 | 浏览次数:3170
2024-11-26 11:08:10 | 浏览次数:3258
2024-11-24 10:46:13 | 浏览次数:3139
2024-11-23 16:29:10 | 浏览次数:3101
2024-11-22 14:50:50 | 浏览次数:3228
2024-11-21 16:31:39 | 浏览次数:3223
2024-11-20 16:25:10 | 浏览次数:2976
2024-11-19 16:17:53 | 浏览次数:3078
2024-11-17 09:46:50 | 浏览次数:3072
2024-11-16 15:54:53 | 浏览次数:3100
2024-11-14 15:26:32 | 浏览次数:2951
2024-11-13 15:59:01 | 浏览次数:2991
2024-11-12 16:16:04 | 浏览次数:3227
2024-11-10 13:45:46 | 浏览次数:3063
2024-11-09 16:09:59 | 浏览次数:2907
2024-11-08 16:03:19 | 浏览次数:2954
2024-11-07 15:58:33 | 浏览次数:2942
2024-11-06 15:55:55 | 浏览次数:3028
2024-11-05 15:45:01 | 浏览次数:2904
2024-11-03 10:35:04 | 浏览次数:3127
2024-11-02 16:21:08 | 浏览次数:2962
2024-11-01 16:03:25 | 浏览次数:3498
2024-10-31 16:00:32 | 浏览次数:3274
2024-10-30 16:06:32 | 浏览次数:3337
2024-10-29 16:20:52 | 浏览次数:3453
2024-10-27 10:19:02 | 浏览次数:3609
2024-10-26 16:28:37 | 浏览次数:3302
2024-10-25 15:56:29 | 浏览次数:3451
2024-10-24 15:27:07 | 浏览次数:3366
2024-10-23 15:38:36 | 浏览次数:3292
2024-10-22 15:41:18 | 浏览次数:3286
2024-10-20 11:36:53 | 浏览次数:3332
2024-10-19 14:11:53 | 浏览次数:3308
2024-10-18 15:58:42 | 浏览次数:3379
2024-10-17 14:03:26 | 浏览次数:3344
2024-10-16 14:19:47 | 浏览次数:3102
2024-10-15 11:32:12 | 浏览次数:3076
2024-10-14 13:45:51 | 浏览次数:3199
2024-10-13 10:24:16 | 浏览次数:3219
2024-10-12 11:21:59 | 浏览次数:3207
2024-10-11 11:42:27 | 浏览次数:3312
2024-10-07 10:57:09 | 浏览次数:3202
2024-10-06 10:34:06 | 浏览次数:3270
2024-10-05 14:10:09 | 浏览次数:3449
2024-10-04 11:39:16 | 浏览次数:3633
2024-10-03 11:45:38 | 浏览次数:3206
2024-10-02 15:12:40 | 浏览次数:3603
2024-10-01 11:30:59 | 浏览次数:4500
2024-09-30 15:07:17 | 浏览次数:3329
2024-09-29 10:36:06 | 浏览次数:3486
2024-09-28 11:55:35 | 浏览次数:3318
2024-09-27 15:28:01 | 浏览次数:3392
2024-09-26 10:58:03 | 浏览次数:3583
2024-09-25 10:45:40 | 浏览次数:3424
2024-09-24 11:35:09 | 浏览次数:3481
2024-09-22 10:12:55 | 浏览次数:3347
2024-09-21 14:21:39 | 浏览次数:3637
2024-09-20 11:29:15 | 浏览次数:3524
2024-09-19 11:36:30 | 浏览次数:3475
2024-09-17 09:56:25 | 浏览次数:3859
2024-09-16 14:52:59 | 浏览次数:3836
2024-09-15 12:33:17 | 浏览次数:3758
2024-09-14 09:55:50 | 浏览次数:3818
2024-08-30 09:05:32 | 浏览次数:3757
2024-08-29 11:32:37 | 浏览次数:3615
2024-08-28 09:37:14 | 浏览次数:3563
2024-08-27 09:47:42 | 浏览次数:3536
2024-08-25 09:56:04 | 浏览次数:3560
2024-08-24 10:42:02 | 浏览次数:3634
2024-08-23 10:02:59 | 浏览次数:3347
2024-08-22 09:12:26 | 浏览次数:3432
2024-08-21 11:44:08 | 浏览次数:3323
2024-08-20 11:47:37 | 浏览次数:3434
2024-08-18 10:27:14 | 浏览次数:3311
2024-08-17 14:09:04 | 浏览次数:3633
2024-08-16 10:59:49 | 浏览次数:3367
2024-08-15 10:03:34 | 浏览次数:3419
2024-08-14 11:24:34 | 浏览次数:3396
2024-08-13 10:29:36 | 浏览次数:3332
2024-08-11 10:46:16 | 浏览次数:3351
2024-08-10 10:44:38 | 浏览次数:3651
2024-08-09 13:56:48 | 浏览次数:3619
2024-08-08 15:17:48 | 浏览次数:3751
2024-08-07 09:25:26 | 浏览次数:3592
2024-08-06 10:17:54 | 浏览次数:3547
2024-08-04 10:34:24 | 浏览次数:3670
2024-08-03 10:28:01 | 浏览次数:3658
2024-08-02 11:17:41 | 浏览次数:3677
2024-08-01 10:04:18 | 浏览次数:3635
2024-07-31 10:05:06 | 浏览次数:3463
2024-07-30 09:43:26 | 浏览次数:3510
2024-07-29 10:02:10 | 浏览次数:3780
2024-07-28 09:55:21 | 浏览次数:3728
2024-07-27 09:48:22 | 浏览次数:3518
2024-07-26 11:18:34 | 浏览次数:3722
2024-07-25 10:35:58 | 浏览次数:3866
2024-07-24 11:12:04 | 浏览次数:3721
2024-07-23 11:56:32 | 浏览次数:3753
2024-07-21 10:28:22 | 浏览次数:3664
2024-07-20 10:41:29 | 浏览次数:3820
2024-07-19 11:44:53 | 浏览次数:3854
2024-07-18 10:52:42 | 浏览次数:3812
2024-07-17 09:55:42 | 浏览次数:3705
2024-07-16 09:03:17 | 浏览次数:3760
2024-07-14 10:54:25 | 浏览次数:3913
2024-07-13 11:46:15 | 浏览次数:3844
2024-07-12 11:03:04 | 浏览次数:3932
2024-07-11 11:27:28 | 浏览次数:3737
2024-07-10 10:19:24 | 浏览次数:3889
2024-07-09 10:08:46 | 浏览次数:3894
2024-07-07 10:41:01 | 浏览次数:3951
2024-07-06 10:02:59 | 浏览次数:4008
2024-07-05 10:10:42 | 浏览次数:3943
2024-07-04 10:18:29 | 浏览次数:3817
2024-07-03 09:43:04 | 浏览次数:3965
2024-07-02 10:39:08 | 浏览次数:3950
2024-06-30 10:51:37 | 浏览次数:3928
2024-06-29 11:27:09 | 浏览次数:3902
2024-06-28 11:43:26 | 浏览次数:3816
2024-06-27 11:08:26 | 浏览次数:3887
2024-06-26 09:23:44 | 浏览次数:3972
2024-06-25 10:22:45 | 浏览次数:3932
2024-06-22 13:23:34 | 浏览次数:3976
2024-06-21 09:50:34 | 浏览次数:4042
2024-06-20 09:57:13 | 浏览次数:3877
2024-06-19 09:43:58 | 浏览次数:3708
2024-06-18 10:36:35 | 浏览次数:3635
2024-06-16 09:38:39 | 浏览次数:3762
2024-06-15 11:13:53 | 浏览次数:3926
2024-06-14 10:00:46 | 浏览次数:3790
2024-06-13 11:14:21 | 浏览次数:3812
2024-06-12 13:50:40 | 浏览次数:3880
2024-06-12 10:54:04 | 浏览次数:3822
2024-06-11 10:10:52 | 浏览次数:3860
2024-06-09 10:19:45 | 浏览次数:3983
2024-06-08 11:02:22 | 浏览次数:4026
2024-06-07 09:43:42 | 浏览次数:4080
2024-06-06 11:53:58 | 浏览次数:4024
2024-06-05 09:04:43 | 浏览次数:4058
2024-06-04 10:05:19 | 浏览次数:4052
2024-06-02 09:29:14 | 浏览次数:4065
2024-06-01 11:40:17 | 浏览次数:3970
2024-05-31 11:56:29 | 浏览次数:4193
2024-05-30 10:40:05 | 浏览次数:4004
2024-05-29 11:58:12 | 浏览次数:4220
2024-05-29 11:04:56 | 浏览次数:3999
2024-05-28 10:02:35 | 浏览次数:3949
2024-05-26 09:26:04 | 浏览次数:3898
2024-05-25 10:49:20 | 浏览次数:4217
2024-05-24 10:57:10 | 浏览次数:4014
2024-05-23 11:28:52 | 浏览次数:4070
2024-05-22 11:34:43 | 浏览次数:3894
2024-05-21 10:18:17 | 浏览次数:4040
2024-05-19 09:48:31 | 浏览次数:4032
2024-05-18 10:00:27 | 浏览次数:4135
2024-05-17 11:16:23 | 浏览次数:3853
2024-05-16 09:17:01 | 浏览次数:4012
2024-05-15 09:41:22 | 浏览次数:3833
2024-05-14 09:40:06 | 浏览次数:3964
2024-05-13 10:14:34 | 浏览次数:4042
2024-05-12 09:30:28 | 浏览次数:3945
2024-05-11 09:55:02 | 浏览次数:3992
2024-05-10 10:21:22 | 浏览次数:4218
2024-05-09 11:13:03 | 浏览次数:4109
2024-05-05 10:33:09 | 浏览次数:4139
2024-05-03 09:40:35 | 浏览次数:4174
2024-05-02 09:38:06 | 浏览次数:4232
2024-05-01 09:19:44 | 浏览次数:4075
2024-04-30 10:25:45 | 浏览次数:4163
2024-04-29 09:28:47 | 浏览次数:4003
2024-04-28 09:48:24 | 浏览次数:4861
2024-04-27 10:08:17 | 浏览次数:4141
2024-04-26 10:06:29 | 浏览次数:4128
2024-04-25 11:36:13 | 浏览次数:4016
2024-04-24 09:49:00 | 浏览次数:4134
2024-04-23 10:21:12 | 浏览次数:3994
2024-04-21 11:36:25 | 浏览次数:4044
2024-04-20 11:04:03 | 浏览次数:3985
2024-04-19 09:30:17 | 浏览次数:3993
2024-04-18 09:06:15 | 浏览次数:3950
2024-04-17 09:19:40 | 浏览次数:4024
2024-04-16 09:26:39 | 浏览次数:3971
2024-04-14 10:27:39 | 浏览次数:4171
2024-04-13 09:50:52 | 浏览次数:4262
2024-04-12 09:00:57 | 浏览次数:4386
2024-04-11 09:22:52 | 浏览次数:4334
2024-04-10 08:54:01 | 浏览次数:4409
2024-04-09 13:45:07 | 浏览次数:4295
2024-04-07 10:57:42 | 浏览次数:4250
2024-04-06 11:03:10 | 浏览次数:4455
2024-04-05 11:54:46 | 浏览次数:4282
2024-04-04 14:16:50 | 浏览次数:4262
2024-04-03 11:18:34 | 浏览次数:4616
2024-04-02 10:59:09 | 浏览次数:4271
2024-03-31 13:08:07 | 浏览次数:4462
2024-03-30 16:17:41 | 浏览次数:4416
2024-03-29 11:19:27 | 浏览次数:4333
2024-03-28 11:00:52 | 浏览次数:4278
2024-03-27 10:22:00 | 浏览次数:4366
2024-03-26 10:33:06 | 浏览次数:4420
2024-03-24 09:34:19 | 浏览次数:4289
2024-03-23 10:21:54 | 浏览次数:4894
2024-03-22 09:24:35 | 浏览次数:4385
2024-03-21 09:13:57 | 浏览次数:4623
2024-03-20 09:55:01 | 浏览次数:4454
2024-03-19 10:15:02 | 浏览次数:4348
2024-03-17 10:14:12 | 浏览次数:4263
2024-03-16 09:10:03 | 浏览次数:4685
2024-03-15 09:36:33 | 浏览次数:4544
2024-03-14 09:34:09 | 浏览次数:4537
2024-03-13 14:02:21 | 浏览次数:4456
2024-03-12 11:39:51 | 浏览次数:4644
2024-03-10 09:33:04 | 浏览次数:4523
2024-03-09 10:17:30 | 浏览次数:4646
2024-03-08 11:23:44 | 浏览次数:4606
2024-03-07 09:50:17 | 浏览次数:4424
2024-03-06 14:14:07 | 浏览次数:4512
2024-03-05 11:50:06 | 浏览次数:4580
2024-03-03 10:27:26 | 浏览次数:4644
2024-03-02 09:58:29 | 浏览次数:4464
2024-03-01 10:22:55 | 浏览次数:4404
2024-02-29 12:16:03 | 浏览次数:4575
2024-02-28 09:04:32 | 浏览次数:4737
2024-02-27 10:47:09 | 浏览次数:4679
2024-02-25 10:26:32 | 浏览次数:4674
2024-02-24 11:28:07 | 浏览次数:4673
2024-02-23 09:15:58 | 浏览次数:4885
2024-02-22 09:50:35 | 浏览次数:4644
2024-02-21 09:52:03 | 浏览次数:4666
2024-02-20 09:44:47 | 浏览次数:4693
2024-02-19 10:30:18 | 浏览次数:4614
2024-02-18 13:37:57 | 浏览次数:4669
2024-01-10 09:06:30 | 浏览次数:5181
2024-01-09 11:37:29 | 浏览次数:5014
2024-01-07 10:57:31 | 浏览次数:5313
2024-01-06 11:07:28 | 浏览次数:5278
2024-01-05 14:56:45 | 浏览次数:5271
2024-01-04 14:52:23 | 浏览次数:5375
2024-01-03 09:23:23 | 浏览次数:5417
2024-01-02 09:43:09 | 浏览次数:5233
2023-12-31 09:51:00 | 浏览次数:5390
2023-12-30 11:33:24 | 浏览次数:5188
2023-12-29 09:18:51 | 浏览次数:5290
2023-12-28 09:50:10 | 浏览次数:5431
2023-12-27 11:20:39 | 浏览次数:5534
2023-12-26 08:54:38 | 浏览次数:5599
2023-12-24 11:01:27 | 浏览次数:5234
2023-12-23 11:09:04 | 浏览次数:5292
2023-12-22 08:59:40 | 浏览次数:5175
2023-12-21 09:30:10 | 浏览次数:5166
2023-12-20 10:26:16 | 浏览次数:5867
2023-12-19 10:28:29 | 浏览次数:5522
2023-12-17 09:54:08 | 浏览次数:5451
2023-12-16 10:19:04 | 浏览次数:5292
2023-12-14 09:22:54 | 浏览次数:5403
2023-12-13 11:06:28 | 浏览次数:5470
2023-12-12 09:33:56 | 浏览次数:5459
2023-12-10 09:37:18 | 浏览次数:5486
2023-12-09 10:42:03 | 浏览次数:5611
2023-12-08 09:35:06 | 浏览次数:5428
2023-12-07 09:22:40 | 浏览次数:5561
2023-12-06 09:55:11 | 浏览次数:5422
2023-12-05 10:00:25 | 浏览次数:5375
2023-12-03 10:35:31 | 浏览次数:5423
2023-12-02 10:49:43 | 浏览次数:5490
2023-12-01 10:12:34 | 浏览次数:5609
2023-11-30 10:12:03 | 浏览次数:5338
2023-11-29 10:29:51 | 浏览次数:5573
2023-11-28 09:44:42 | 浏览次数:5510
2023-11-26 09:24:27 | 浏览次数:5542
2023-11-25 10:36:55 | 浏览次数:5632
2023-11-24 09:43:58 | 浏览次数:5595
2023-11-23 09:54:45 | 浏览次数:5588
2023-11-22 10:52:53 | 浏览次数:5495
2023-11-21 10:33:45 | 浏览次数:5564
2023-11-19 10:41:42 | 浏览次数:5576
2023-11-17 09:59:35 | 浏览次数:5598
2023-11-16 09:22:27 | 浏览次数:5585
2023-11-15 09:20:56 | 浏览次数:5690
2023-11-14 09:39:10 | 浏览次数:5632
2023-11-12 09:33:58 | 浏览次数:5754
2023-11-11 10:02:50 | 浏览次数:5774
2023-11-10 10:25:30 | 浏览次数:5702
2023-11-09 14:28:21 | 浏览次数:6272
2023-11-08 10:21:14 | 浏览次数:5734
2023-11-07 09:36:24 | 浏览次数:5654
2023-11-05 10:05:27 | 浏览次数:5734
2023-11-04 10:13:06 | 浏览次数:5584
2023-11-03 09:49:02 | 浏览次数:5364
2023-11-02 10:16:48 | 浏览次数:5482
2023-11-01 09:26:21 | 浏览次数:5820
2023-10-31 09:21:55 | 浏览次数:5755
2023-10-30 10:29:22 | 浏览次数:5594
2023-10-29 09:51:10 | 浏览次数:5724
2023-10-28 10:19:45 | 浏览次数:5723
2023-10-27 10:17:50 | 浏览次数:5499
2023-10-26 10:52:26 | 浏览次数:5825
2023-10-25 09:54:51 | 浏览次数:5492
2023-10-24 09:32:35 | 浏览次数:5826
2023-10-22 10:17:22 | 浏览次数:5593
2023-10-21 11:09:08 | 浏览次数:5879
2023-10-19 10:15:02 | 浏览次数:5973
2023-10-18 11:12:40 | 浏览次数:5733
2023-10-17 16:03:41 | 浏览次数:5819
2023-10-15 09:56:39 | 浏览次数:5842
2023-10-13 10:02:39 | 浏览次数:5832
2023-10-12 09:47:07 | 浏览次数:5971
2023-10-08 10:57:06 | 浏览次数:5974
2023-10-07 11:24:37 | 浏览次数:6450
2023-10-06 09:45:31 | 浏览次数:6087
2023-10-04 09:39:33 | 浏览次数:6545
2023-10-03 09:56:05 | 浏览次数:6069
2023-10-02 10:39:02 | 浏览次数:5844
2023-10-01 10:58:01 | 浏览次数:5936
2023-09-29 09:53:57 | 浏览次数:5928
2023-09-28 10:17:27 | 浏览次数:6119
2023-09-27 10:01:58 | 浏览次数:5878
2023-09-26 09:45:49 | 浏览次数:5889
2023-09-24 10:47:48 | 浏览次数:6053
2023-09-23 10:33:39 | 浏览次数:5947
2023-09-22 09:45:23 | 浏览次数:5989
2023-09-21 10:22:06 | 浏览次数:6215
2023-09-20 09:50:18 | 浏览次数:6122
2023-09-19 10:40:45 | 浏览次数:5998
2023-09-17 10:58:05 | 浏览次数:6007
2023-09-16 10:08:45 | 浏览次数:7221
2023-09-15 09:25:18 | 浏览次数:6524
2023-09-14 09:21:02 | 浏览次数:6794
2023-09-13 09:16:04 | 浏览次数:6848
2023-09-12 09:20:02 | 浏览次数:6429
2023-09-10 09:54:45 | 浏览次数:6323
2023-09-09 09:44:24 | 浏览次数:7384
2023-09-08 10:14:42 | 浏览次数:6422
2023-09-07 10:47:08 | 浏览次数:7532
2023-09-06 14:55:38 | 浏览次数:6301
2023-09-05 09:11:33 | 浏览次数:6819
2023-09-03 09:47:22 | 浏览次数:6222
2023-09-02 09:40:35 | 浏览次数:7455
2023-08-31 09:16:47 | 浏览次数:6432
2023-08-30 09:26:20 | 浏览次数:7418
2023-08-29 09:26:28 | 浏览次数:7336
2023-08-26 10:22:19 | 浏览次数:7059
2023-08-25 11:01:35 | 浏览次数:7529
2023-08-24 09:23:46 | 浏览次数:6681
2023-08-22 09:41:58 | 浏览次数:6229
2023-08-19 09:32:57 | 浏览次数:6345
2023-08-17 10:23:57 | 浏览次数:7689
2023-08-13 10:22:35 | 浏览次数:6135
2023-08-12 10:43:31 | 浏览次数:6203
2023-08-10 09:37:04 | 浏览次数:7171
2023-08-09 16:50:53 | 浏览次数:6738
2023-08-08 09:23:49 | 浏览次数:6650
2023-08-05 09:50:43 | 浏览次数:7052
2023-08-04 09:52:37 | 浏览次数:10618
2023-08-02 09:43:47 | 浏览次数:6408
2023-08-01 09:38:06 | 浏览次数:7806
2023-07-31 10:52:46 | 浏览次数:6830
2023-07-30 09:56:26 | 浏览次数:7624
2023-07-29 10:41:05 | 浏览次数:6981
2023-07-27 09:46:00 | 浏览次数:7614
2023-07-26 10:03:14 | 浏览次数:6382
2023-07-25 09:24:34 | 浏览次数:6905
2023-07-23 09:58:19 | 浏览次数:7008
2023-07-22 10:24:35 | 浏览次数:7703
2023-07-21 09:26:36 | 浏览次数:7680
2023-07-20 09:20:24 | 浏览次数:7830
2023-07-19 09:08:55 | 浏览次数:7614
2023-07-18 09:29:34 | 浏览次数:7563
2023-07-14 09:41:41 | 浏览次数:7719
2023-07-13 10:56:39 | 浏览次数:7135
2023-07-11 10:06:46 | 浏览次数:7122
2023-07-09 10:22:05 | 浏览次数:7254
2023-07-07 09:30:18 | 浏览次数:7158
2023-07-06 09:42:15 | 浏览次数:6793
2023-07-01 10:02:28 | 浏览次数:7229
2023-06-30 09:40:23 | 浏览次数:7677
2023-06-29 10:09:54 | 浏览次数:8532
2023-06-28 10:01:42 | 浏览次数:8066
2023-06-27 09:52:00 | 浏览次数:7860
2023-06-25 11:07:20 | 浏览次数:7813
2023-06-24 10:06:31 | 浏览次数:7566
2023-06-23 09:53:43 | 浏览次数:8186
2023-06-18 11:12:08 | 浏览次数:8316
2023-06-17 10:28:55 | 浏览次数:8448
2023-06-16 09:07:45 | 浏览次数:7588
2023-06-15 09:08:54 | 浏览次数:8064
2023-06-13 11:49:03 | 浏览次数:7919
2023-06-11 10:10:07 | 浏览次数:8160
2023-06-08 09:18:40 | 浏览次数:8195
2023-06-07 16:26:36 | 浏览次数:8055
2023-06-06 10:03:35 | 浏览次数:7513
2023-06-04 09:44:19 | 浏览次数:8128
2023-06-03 10:08:29 | 浏览次数:7880
2023-06-02 09:34:56 | 浏览次数:7388
2023-06-01 09:11:27 | 浏览次数:7722
2023-05-31 09:31:05 | 浏览次数:8115
2023-05-30 10:04:18 | 浏览次数:6939
2023-05-28 10:07:21 | 浏览次数:7213
2023-05-27 10:07:12 | 浏览次数:7012
2023-05-26 11:08:06 | 浏览次数:7625
2023-05-23 09:58:25 | 浏览次数:7679
2023-05-21 09:35:12 | 浏览次数:7993
2023-05-20 10:20:39 | 浏览次数:7718
2023-05-19 09:45:17 | 浏览次数:7039
2023-05-18 13:26:28 | 浏览次数:7300
2023-05-17 09:10:46 | 浏览次数:7347
2023-05-16 08:57:00 | 浏览次数:7694
2023-05-14 09:30:21 | 浏览次数:8496
2023-05-13 09:23:39 | 浏览次数:7755
2023-05-12 09:39:17 | 浏览次数:7050
2023-05-11 08:43:37 | 浏览次数:7001
2023-05-10 15:03:36 | 浏览次数:7548
2023-05-10 09:17:53 | 浏览次数:8134
2023-05-09 09:09:41 | 浏览次数:7650
2023-05-08 15:28:04 | 浏览次数:7060
2023-05-07 09:31:17 | 浏览次数:7621
2023-05-06 09:29:59 | 浏览次数:7287
2021-03-23 14:10:00 | 浏览次数:10211
2021-03-23 13:23:09 | 浏览次数:9956
2021-03-20 14:51:01 | 浏览次数:10873
2021-03-18 15:21:51 | 浏览次数:9857
2021-03-16 11:52:08 | 浏览次数:9514
2021-03-16 10:32:31 | 浏览次数:9581
2021-03-13 16:56:25 | 浏览次数:9763
2021-03-11 16:39:18 | 浏览次数:9723
2021-03-11 14:20:28 | 浏览次数:9503
2021-03-07 14:23:46 | 浏览次数:9649
2021-03-06 14:58:00 | 浏览次数:9662
2020-11-27 10:25:11 | 浏览次数:10481
2020-11-25 16:04:28 | 浏览次数:10184
2020-11-17 15:49:08 | 浏览次数:10100
2020-11-17 15:11:53 | 浏览次数:10122
2020-11-17 14:55:08 | 浏览次数:10429
2020-10-31 00:11:25 | 浏览次数:10436
2020-09-20 14:06:54 | 浏览次数:10320
2019-12-04 10:24:17 | 浏览次数:15659
2019-11-20 16:30:56 | 浏览次数:11258
2019-10-07 17:26:12 | 浏览次数:14453
2019-10-06 13:28:44 | 浏览次数:11261
2019-09-10 15:34:35 | 浏览次数:11194
2019-06-07 14:43:20 | 浏览次数:11765
2019-05-31 15:01:23 | 浏览次数:11524
2019-05-18 15:47:29 | 浏览次数:12982
2019-03-28 11:24:29 | 浏览次数:11608
2018-12-01 11:02:07 | 浏览次数:12425
2018-11-08 13:56:32 | 浏览次数:18512
2018-10-21 08:48:23 | 浏览次数:15629