立即预约
免费定制整装家居
一站置家 全程无忧 一省到底
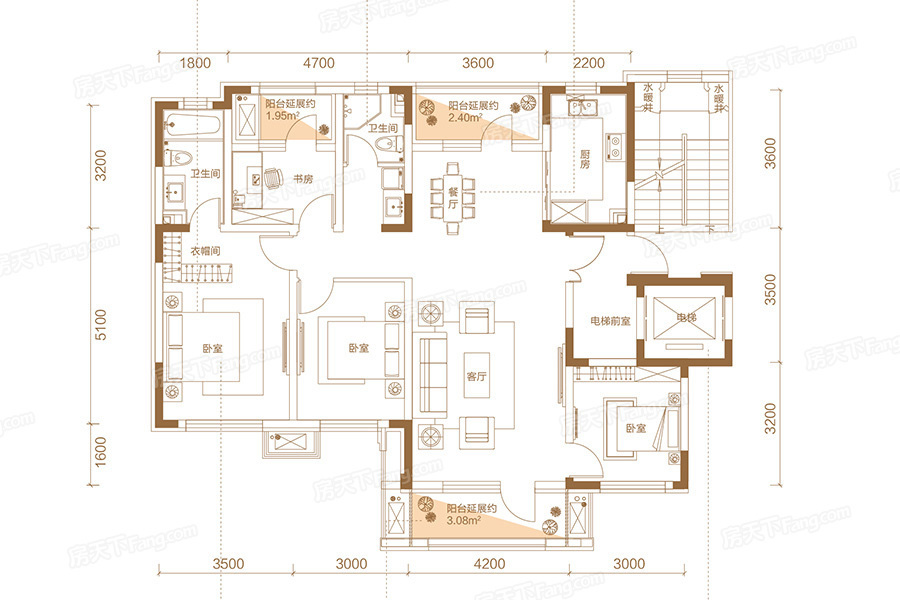
沈阳浑南区的房价近几年逐步攀高,新建楼盘更是最年攀升,新房装修是每一个家庭都非常重视的,今天小编给打分享的是沈阳浑南区亿博隆河谷118㎡四室两厅装修分析,希望给各位新装修的业主有所帮助。
首先我们先分析一下这个户型:
本套户型的整体空间宽敞明亮,而且通风效果也比较好。各个空间不仅分布合理而且设计也是非常充分,在沈阳新房装修中相比来看本套户型是非常不错的。
(户型图源自房天下)
接下来我们一起分析一下浑南区亿博隆河谷118㎡四室两厅各个空间如何装修:
本套户型没有玄关区域,在装修时建议在电视背景墙附近做半高的收纳柜,搭配镂空隔断来隔出玄关空间。
(图为亿博隆河谷118㎡玄关装修效果图)
本套户型的餐厅邻近厨房并且还有阳台相连,在装修时可以选择将阳台并入后做整体的餐厨一体设计,或者各自保持原有状况皆可。另外对于阳台区域也可以考虑改造成休闲区域或者其他功能性空间。
(图为亿博隆河谷118㎡餐厨一体设计装修效果图)
本套户型的客厅空间整体适中,对邻近的阳台建议合并作为空间扩展来使用。
(图为亿博隆河谷118㎡现代风风格客厅装修效果图)
本套户型的卫生间门口有预留的洗衣区域,非常的方便而且预先将洗手台剥离到外部也是非常的合适。
(图为亿博隆河谷118㎡卫生间装修效果图)
本套户型中有四个居室中北侧卧室相比来说比较小,如果想要一个独立的书房空间可以选此房间。另外需要注意的是北侧的居室空间夹在两个卫生间之间,注册两侧墙的防水避免造成麻烦。主卧由于有衣帽间存在,所以不建议将卫生间进行其他改造。另外东南角的卧室空间邻近电梯井需要注意做好隔音。
(图为亿博隆河谷118㎡卧室装修效果图)
(图为亿博隆河谷118㎡北卧榻榻米装修效果图)
以上就是关于浑南区亿博隆河谷118㎡四室两厅装修分析,从本套户型的整体来看还是非常不错的。对于各位业主在装修方面的需求,还是要以个人的生活方式和习惯出发,进行针对性的设计才好。点击这里查看沈阳装修公司哪家好?年关将至,林凤装饰不仅为新下房业主提供免费的验房、量房和设计服务,更有大力度的收官活动。所以各位新下房业主可以借此机会来电咨询:400-656-9909
2026-03-07 14:39:29 | 浏览次数:733
2026-02-28 17:10:52 | 浏览次数:700
2026-02-27 16:02:41 | 浏览次数:842
2026-02-26 17:06:34 | 浏览次数:792
2026-02-25 16:35:18 | 浏览次数:803
2026-02-24 17:28:55 | 浏览次数:756
2026-02-08 09:25:29 | 浏览次数:915
2026-02-05 16:57:20 | 浏览次数:950
2026-02-02 16:33:59 | 浏览次数:1029
2026-02-01 10:26:50 | 浏览次数:1053
2026-01-31 17:18:50 | 浏览次数:1084
2026-01-29 16:47:07 | 浏览次数:1065
2026-01-28 10:30:32 | 浏览次数:1061
2026-01-27 16:06:55 | 浏览次数:1053
2026-01-25 14:52:18 | 浏览次数:1193
2026-01-24 15:28:45 | 浏览次数:1089
2026-01-23 09:57:17 | 浏览次数:960
2026-01-22 09:45:51 | 浏览次数:1073
2026-01-21 16:31:49 | 浏览次数:1035
2026-01-20 16:48:01 | 浏览次数:963
2026-01-18 15:07:26 | 浏览次数:1063
2026-01-17 16:49:29 | 浏览次数:981
2026-01-16 16:56:27 | 浏览次数:1020
2026-01-14 15:32:43 | 浏览次数:981
2026-01-13 14:20:41 | 浏览次数:1212
2026-01-11 13:59:36 | 浏览次数:1175
2026-01-10 09:30:19 | 浏览次数:1132
2026-01-09 10:21:59 | 浏览次数:1393
2026-01-08 16:20:41 | 浏览次数:1119
2026-01-07 09:31:25 | 浏览次数:1196
2026-01-06 16:34:08 | 浏览次数:1167
2026-01-04 10:40:41 | 浏览次数:1256
2026-01-03 15:03:20 | 浏览次数:1334
2026-01-02 16:58:37 | 浏览次数:1251
2025-12-31 11:03:08 | 浏览次数:1463
2025-12-30 13:35:19 | 浏览次数:1265
2025-12-29 10:38:58 | 浏览次数:1297
2025-12-28 16:28:29 | 浏览次数:1397
2025-12-27 15:31:11 | 浏览次数:1330
2025-12-26 16:06:04 | 浏览次数:1411
2025-12-25 11:37:22 | 浏览次数:1531
2025-12-24 10:33:54 | 浏览次数:1420
2025-12-23 16:52:26 | 浏览次数:1385
2025-12-21 09:51:53 | 浏览次数:1405
2025-12-20 15:17:47 | 浏览次数:1401
2025-12-19 16:28:25 | 浏览次数:1484
2025-12-18 16:46:55 | 浏览次数:1428
2025-12-17 10:08:28 | 浏览次数:1725
2025-12-16 15:19:16 | 浏览次数:1502
2025-12-14 11:34:12 | 浏览次数:1432
2025-12-13 16:10:23 | 浏览次数:1450
2025-12-11 14:15:40 | 浏览次数:1419
2025-12-10 16:30:57 | 浏览次数:1506
2025-12-09 15:48:50 | 浏览次数:1629
2025-12-07 15:06:17 | 浏览次数:1435
2025-12-06 10:19:53 | 浏览次数:1303
2025-12-05 11:09:51 | 浏览次数:1309
2025-12-04 16:24:49 | 浏览次数:1475
2025-12-03 16:29:06 | 浏览次数:1232
2025-12-02 11:32:59 | 浏览次数:1375
2025-11-30 11:14:22 | 浏览次数:1292
2025-11-29 16:10:33 | 浏览次数:1295
2025-11-28 16:27:35 | 浏览次数:1832
2025-11-27 16:59:59 | 浏览次数:1372
2025-11-26 16:03:41 | 浏览次数:1292
2025-11-25 16:25:40 | 浏览次数:1394
2025-11-23 11:08:56 | 浏览次数:1469
2025-11-22 16:50:53 | 浏览次数:1498
2025-11-21 13:40:40 | 浏览次数:1477
2025-11-20 10:13:24 | 浏览次数:1618
2025-11-19 15:03:18 | 浏览次数:1466
2025-11-18 15:29:16 | 浏览次数:1500
2025-11-16 10:45:00 | 浏览次数:1533
2025-11-15 16:29:08 | 浏览次数:1737
2025-11-14 16:31:13 | 浏览次数:1554
2025-11-13 16:59:57 | 浏览次数:1573
2025-11-12 16:36:18 | 浏览次数:1614
2025-11-09 10:20:31 | 浏览次数:1715
2025-11-08 10:44:56 | 浏览次数:1480
2025-11-07 15:23:52 | 浏览次数:1584
2025-11-06 16:10:25 | 浏览次数:1560
2025-11-05 10:30:03 | 浏览次数:1605
2025-11-04 11:23:07 | 浏览次数:1676
2025-11-02 16:11:15 | 浏览次数:1621
2025-11-01 16:19:20 | 浏览次数:1591
2025-10-31 09:16:58 | 浏览次数:1574
2025-10-30 10:32:28 | 浏览次数:1573
2025-10-29 16:09:09 | 浏览次数:1515
2025-10-28 16:22:48 | 浏览次数:1535
2025-10-26 10:19:39 | 浏览次数:1606
2025-10-25 16:11:14 | 浏览次数:1675
2025-10-24 15:28:42 | 浏览次数:1694
2025-10-23 10:40:33 | 浏览次数:1659
2025-10-22 14:52:12 | 浏览次数:1476
2025-10-21 16:43:25 | 浏览次数:1553
2025-10-19 12:34:45 | 浏览次数:1526
2025-10-17 14:35:23 | 浏览次数:1637
2025-10-16 10:57:27 | 浏览次数:1580
2025-10-15 12:25:26 | 浏览次数:1533
2025-10-12 14:06:26 | 浏览次数:1712
2025-10-11 09:51:02 | 浏览次数:1763
2025-10-10 15:15:08 | 浏览次数:1832
2025-10-09 16:32:40 | 浏览次数:1951
2025-10-08 14:45:02 | 浏览次数:1810
2025-10-07 17:07:28 | 浏览次数:1841
2025-10-06 13:19:04 | 浏览次数:1787
2025-10-05 13:47:19 | 浏览次数:1825
2025-10-02 15:01:32 | 浏览次数:1804
2025-10-01 15:51:24 | 浏览次数:1891
2025-09-30 09:37:29 | 浏览次数:1908
2025-09-29 16:34:57 | 浏览次数:1979
2025-09-27 16:43:36 | 浏览次数:2010
2025-09-26 11:03:39 | 浏览次数:2105
2025-09-25 10:26:55 | 浏览次数:1884
2025-09-24 15:17:39 | 浏览次数:2019
2025-09-23 10:00:33 | 浏览次数:2233
2025-09-21 14:19:19 | 浏览次数:2195
2025-09-20 15:09:15 | 浏览次数:2122
2025-09-19 15:51:53 | 浏览次数:2225
2025-09-18 14:49:34 | 浏览次数:2024
2025-09-17 16:47:52 | 浏览次数:1998
2025-09-16 16:35:07 | 浏览次数:2480
2025-09-14 14:59:51 | 浏览次数:2205
2025-09-13 17:04:32 | 浏览次数:2146
2025-09-12 09:35:24 | 浏览次数:2313
2025-09-11 15:46:23 | 浏览次数:2254
2025-09-10 13:58:02 | 浏览次数:2375
2025-09-09 16:48:23 | 浏览次数:2342
2025-09-07 11:44:11 | 浏览次数:2417
2025-09-06 09:43:11 | 浏览次数:2325
2025-09-05 09:51:41 | 浏览次数:2272
2025-09-04 17:08:16 | 浏览次数:2551
2025-09-03 16:42:34 | 浏览次数:2490
2025-09-02 14:35:40 | 浏览次数:2355
2025-08-31 09:42:38 | 浏览次数:2378
2025-08-30 17:10:52 | 浏览次数:2342
2025-08-29 16:56:07 | 浏览次数:2625
2025-08-28 16:10:50 | 浏览次数:2308
2025-08-27 15:11:21 | 浏览次数:2386
2025-08-26 16:13:37 | 浏览次数:2357
2025-08-24 10:34:05 | 浏览次数:2458
2025-08-23 16:22:41 | 浏览次数:2320
2025-08-22 09:54:07 | 浏览次数:2258
2025-08-21 15:44:53 | 浏览次数:2098
2025-08-20 10:30:48 | 浏览次数:2214
2025-08-19 15:26:24 | 浏览次数:2216
2025-08-17 09:38:31 | 浏览次数:2304
2025-08-16 09:17:41 | 浏览次数:2326
2025-08-15 16:16:38 | 浏览次数:2245
2025-08-14 15:11:15 | 浏览次数:2299
2025-08-13 11:16:39 | 浏览次数:2239
2025-08-12 16:40:13 | 浏览次数:2211
2025-08-10 11:51:34 | 浏览次数:2601
2025-08-09 15:23:47 | 浏览次数:2744
2025-08-08 17:05:56 | 浏览次数:2604
2025-08-07 14:22:25 | 浏览次数:2545
2025-08-06 16:11:50 | 浏览次数:2545
2025-08-05 16:24:45 | 浏览次数:2508
2025-08-03 16:42:11 | 浏览次数:2470
2025-08-02 16:52:53 | 浏览次数:2514
2025-08-01 12:33:16 | 浏览次数:2460
2025-07-31 13:52:41 | 浏览次数:2520
2025-07-30 14:25:27 | 浏览次数:2675
2025-07-29 14:53:02 | 浏览次数:2583
2025-07-27 10:22:56 | 浏览次数:2365
2025-07-26 10:32:01 | 浏览次数:2425
2025-07-25 11:25:50 | 浏览次数:2671
2025-07-24 14:06:45 | 浏览次数:2517
2025-07-23 10:12:49 | 浏览次数:2368
2025-07-22 15:40:09 | 浏览次数:2302
2025-07-20 10:09:20 | 浏览次数:2304
2025-07-19 12:38:59 | 浏览次数:2249
2025-07-18 16:29:46 | 浏览次数:2250
2025-07-17 10:16:42 | 浏览次数:2472
2025-07-16 10:45:54 | 浏览次数:2732
2025-07-15 15:35:01 | 浏览次数:2427
2025-07-13 10:07:41 | 浏览次数:2209
2025-07-12 16:51:37 | 浏览次数:2538
2025-07-11 16:37:32 | 浏览次数:2475
2025-07-10 16:47:48 | 浏览次数:2502
2025-07-09 15:34:09 | 浏览次数:2404
2025-07-08 15:52:37 | 浏览次数:2569
2025-07-05 17:15:15 | 浏览次数:2555
2025-07-04 09:49:17 | 浏览次数:2438
2025-07-03 16:41:12 | 浏览次数:2629
2025-07-02 15:50:42 | 浏览次数:2489
2025-07-01 12:31:53 | 浏览次数:2330
2025-06-30 16:27:08 | 浏览次数:2387
2025-06-29 09:55:37 | 浏览次数:2542
2025-06-28 16:36:33 | 浏览次数:2596
2025-06-27 14:03:37 | 浏览次数:2685
2025-06-26 16:06:22 | 浏览次数:2423
2025-06-24 15:26:00 | 浏览次数:2694
2025-06-22 10:00:14 | 浏览次数:3289
2025-06-21 10:08:40 | 浏览次数:2861
2025-06-20 14:52:47 | 浏览次数:2717
2025-06-19 16:36:24 | 浏览次数:2921
2025-06-18 15:44:05 | 浏览次数:2706
2025-06-13 11:33:04 | 浏览次数:2666
2025-06-12 16:01:19 | 浏览次数:2813
2025-06-11 15:19:21 | 浏览次数:2702
2025-06-10 16:40:08 | 浏览次数:2802
2025-06-08 14:39:12 | 浏览次数:2682
2025-06-07 15:14:59 | 浏览次数:2850
2025-06-06 16:03:43 | 浏览次数:2602
2025-06-05 16:03:53 | 浏览次数:2650
2025-06-04 16:33:15 | 浏览次数:2843
2025-06-02 14:16:04 | 浏览次数:2596
2025-06-01 09:05:36 | 浏览次数:2853
2025-05-31 14:26:35 | 浏览次数:2862
2025-05-30 16:37:51 | 浏览次数:2446
2025-05-29 16:24:51 | 浏览次数:2691
2025-05-28 14:38:54 | 浏览次数:2564
2025-05-27 16:09:59 | 浏览次数:2667
2025-05-25 11:41:11 | 浏览次数:2761
2025-05-24 15:50:28 | 浏览次数:2594
2025-05-23 16:50:58 | 浏览次数:2575
2025-05-22 11:28:42 | 浏览次数:2721
2025-05-21 16:25:34 | 浏览次数:2555
2025-05-20 16:07:22 | 浏览次数:2543
2025-05-18 11:08:06 | 浏览次数:2636
2025-05-17 16:44:37 | 浏览次数:2731
2025-05-16 16:18:03 | 浏览次数:2812
2025-05-15 15:18:00 | 浏览次数:3335
2025-05-14 15:38:10 | 浏览次数:2655
2025-05-13 14:27:50 | 浏览次数:2475
2025-05-11 10:14:30 | 浏览次数:2789
2025-05-10 16:59:04 | 浏览次数:2710
2025-05-09 15:20:33 | 浏览次数:2696
2025-05-08 15:18:03 | 浏览次数:3136
2025-05-05 15:44:43 | 浏览次数:2903
2025-05-04 15:22:31 | 浏览次数:3161
2025-05-03 16:12:37 | 浏览次数:2694
2025-05-02 15:32:47 | 浏览次数:3035
2025-05-01 16:09:56 | 浏览次数:2888
2025-04-30 13:29:34 | 浏览次数:2848
2025-04-25 11:56:45 | 浏览次数:2908
2025-04-24 15:18:22 | 浏览次数:2848
2025-04-23 15:24:21 | 浏览次数:2909
2025-04-22 16:36:31 | 浏览次数:2722
2025-04-20 10:16:19 | 浏览次数:3083
2025-04-19 14:10:59 | 浏览次数:2752
2025-04-18 15:37:43 | 浏览次数:3144
2025-04-17 14:54:29 | 浏览次数:2820
2025-04-16 15:36:16 | 浏览次数:2858
2025-04-15 11:33:47 | 浏览次数:2768
2025-04-13 10:17:57 | 浏览次数:2826
2025-04-12 09:46:39 | 浏览次数:3334
2025-04-11 15:15:06 | 浏览次数:2876
2025-04-10 15:23:21 | 浏览次数:3055
2025-04-09 15:36:16 | 浏览次数:2785
2025-04-08 14:07:17 | 浏览次数:2821
2025-04-06 10:00:17 | 浏览次数:3257
2025-04-05 16:11:40 | 浏览次数:3044
2025-04-04 16:27:40 | 浏览次数:3070
2025-04-03 15:32:16 | 浏览次数:2820
2025-04-02 14:47:40 | 浏览次数:3590
2025-04-01 11:02:10 | 浏览次数:3072
2025-03-31 14:45:43 | 浏览次数:3245
2025-03-30 11:40:27 | 浏览次数:3249
2025-03-29 16:01:08 | 浏览次数:3331
2025-03-28 16:46:53 | 浏览次数:3161
2025-03-27 16:24:49 | 浏览次数:3112
2025-03-26 15:11:15 | 浏览次数:3259
2025-03-25 14:20:18 | 浏览次数:3115
2025-03-23 10:27:52 | 浏览次数:3467
2025-03-22 14:30:31 | 浏览次数:3197
2025-03-21 15:03:22 | 浏览次数:2975
2025-03-20 10:31:21 | 浏览次数:3183
2025-03-19 16:20:32 | 浏览次数:3300
2025-03-18 15:31:40 | 浏览次数:3303
2025-03-16 09:38:53 | 浏览次数:3281
2025-03-15 10:47:41 | 浏览次数:3157
2025-03-14 16:17:20 | 浏览次数:3263
2025-03-13 14:54:41 | 浏览次数:3240
2025-03-12 15:55:07 | 浏览次数:3042
2025-03-11 16:33:55 | 浏览次数:3255
2025-03-09 10:40:41 | 浏览次数:3185
2025-03-08 16:30:36 | 浏览次数:3302
2025-03-07 16:18:36 | 浏览次数:3155
2025-03-06 16:13:33 | 浏览次数:3151
2025-03-05 15:40:13 | 浏览次数:3430
2025-03-03 15:08:44 | 浏览次数:3277
2025-03-02 10:13:25 | 浏览次数:3481
2025-03-01 09:59:10 | 浏览次数:3353
2025-02-28 10:23:39 | 浏览次数:3378
2025-02-27 16:01:34 | 浏览次数:3208
2025-02-26 14:18:40 | 浏览次数:3391
2025-02-25 15:25:22 | 浏览次数:3375
2025-02-23 10:08:49 | 浏览次数:3294
2025-02-22 15:47:47 | 浏览次数:3186
2025-02-21 15:32:49 | 浏览次数:3166
2025-02-20 14:55:50 | 浏览次数:3181
2025-02-19 14:13:22 | 浏览次数:3274
2025-02-18 11:25:27 | 浏览次数:3392
2025-02-16 09:30:24 | 浏览次数:3260
2025-02-15 16:06:27 | 浏览次数:3297
2025-02-14 15:02:39 | 浏览次数:3428
2025-02-12 14:01:16 | 浏览次数:3411
2025-02-11 10:34:08 | 浏览次数:3665
2025-02-09 10:15:04 | 浏览次数:3299
2025-02-08 09:55:57 | 浏览次数:3518
2025-02-07 14:29:39 | 浏览次数:3454
2025-01-21 11:47:41 | 浏览次数:3601
2025-01-19 15:29:54 | 浏览次数:3468
2025-01-18 17:01:49 | 浏览次数:3657
2025-01-17 14:07:21 | 浏览次数:3628
2025-01-16 09:22:42 | 浏览次数:3402
2025-01-15 16:45:18 | 浏览次数:3524
2025-01-14 10:18:46 | 浏览次数:3545
2025-01-12 16:35:25 | 浏览次数:3709
2025-01-11 09:56:40 | 浏览次数:3409
2025-01-10 15:42:17 | 浏览次数:3849
2025-01-09 16:20:28 | 浏览次数:3304
2025-01-08 15:25:38 | 浏览次数:3213
2025-01-07 10:51:29 | 浏览次数:3257
2025-01-05 11:24:58 | 浏览次数:3158
2025-01-04 09:04:40 | 浏览次数:3312
2025-01-03 09:32:19 | 浏览次数:3535
2025-01-02 11:12:47 | 浏览次数:3289
2024-12-31 10:28:01 | 浏览次数:3259
2024-12-30 16:25:14 | 浏览次数:4083
2024-12-29 10:02:50 | 浏览次数:3477
2024-12-28 16:20:53 | 浏览次数:3383
2024-12-27 16:04:59 | 浏览次数:3298
2024-12-26 16:46:17 | 浏览次数:3751
2024-12-25 16:07:44 | 浏览次数:3376
2024-12-24 15:00:08 | 浏览次数:3446
2024-12-22 11:01:23 | 浏览次数:3511
2024-12-21 16:54:54 | 浏览次数:3339
2024-12-20 16:53:46 | 浏览次数:3664
2024-12-19 16:54:27 | 浏览次数:3550
2024-12-18 16:48:02 | 浏览次数:3778
2024-12-17 16:27:57 | 浏览次数:3818
2024-12-15 11:08:44 | 浏览次数:3758
2024-12-14 15:58:28 | 浏览次数:3375
2024-12-13 16:45:50 | 浏览次数:3457
2024-12-12 16:44:03 | 浏览次数:3483
2024-12-11 16:29:10 | 浏览次数:3597
2024-12-10 16:05:56 | 浏览次数:3800
2024-12-08 11:41:01 | 浏览次数:3662
2024-12-07 16:32:22 | 浏览次数:3775
2024-12-06 16:39:11 | 浏览次数:3558
2024-12-05 16:40:23 | 浏览次数:3557
2024-12-04 16:17:22 | 浏览次数:3485
2024-12-03 15:59:15 | 浏览次数:3473
2024-12-01 10:34:03 | 浏览次数:3779
2024-11-30 16:39:14 | 浏览次数:3694
2024-11-29 16:20:50 | 浏览次数:3708
2024-11-28 15:47:34 | 浏览次数:3446
2024-11-27 16:13:42 | 浏览次数:3470
2024-11-26 11:08:10 | 浏览次数:3591
2024-11-24 10:46:13 | 浏览次数:3455
2024-11-23 16:29:10 | 浏览次数:3420
2024-11-22 14:50:50 | 浏览次数:3530
2024-11-21 16:31:39 | 浏览次数:3534
2024-11-20 16:25:10 | 浏览次数:3283
2024-11-19 16:17:53 | 浏览次数:3401
2024-11-17 09:46:50 | 浏览次数:3383
2024-11-16 15:54:53 | 浏览次数:3420
2024-11-14 15:26:32 | 浏览次数:3252
2024-11-13 15:59:01 | 浏览次数:3288
2024-11-12 16:16:04 | 浏览次数:3495
2024-11-10 13:45:46 | 浏览次数:3366
2024-11-09 16:09:59 | 浏览次数:3204
2024-11-08 16:03:19 | 浏览次数:3237
2024-11-07 15:58:33 | 浏览次数:3229
2024-11-06 15:55:55 | 浏览次数:3347
2024-11-05 15:45:01 | 浏览次数:3194
2024-11-03 10:35:04 | 浏览次数:3433
2024-11-02 16:21:08 | 浏览次数:3258
2024-11-01 16:03:25 | 浏览次数:3837
2024-10-31 16:00:32 | 浏览次数:3593
2024-10-30 16:06:32 | 浏览次数:3668
2024-10-29 16:20:52 | 浏览次数:3788
2024-10-27 10:19:02 | 浏览次数:3915
2024-10-26 16:28:37 | 浏览次数:3647
2024-10-25 15:56:29 | 浏览次数:3789
2024-10-24 15:27:07 | 浏览次数:3671
2024-10-23 15:38:36 | 浏览次数:3622
2024-10-22 15:41:18 | 浏览次数:3594
2024-10-20 11:36:53 | 浏览次数:3636
2024-10-19 14:11:53 | 浏览次数:3627
2024-10-18 15:58:42 | 浏览次数:3683
2024-10-17 14:03:26 | 浏览次数:3647
2024-10-16 14:19:47 | 浏览次数:3384
2024-10-15 11:32:12 | 浏览次数:3374
2024-10-14 13:45:51 | 浏览次数:3524
2024-10-13 10:24:16 | 浏览次数:3512
2024-10-12 11:21:59 | 浏览次数:3479
2024-10-11 11:42:27 | 浏览次数:3629
2024-10-07 10:57:09 | 浏览次数:3506
2024-10-06 10:34:06 | 浏览次数:3545
2024-10-05 14:10:09 | 浏览次数:3765
2024-10-04 11:39:16 | 浏览次数:3951
2024-10-03 11:45:38 | 浏览次数:3533
2024-10-02 15:12:40 | 浏览次数:3889
2024-10-01 11:30:59 | 浏览次数:4806
2024-09-30 15:07:17 | 浏览次数:3614
2024-09-29 10:36:06 | 浏览次数:3766
2024-09-28 11:55:35 | 浏览次数:3612
2024-09-27 15:28:01 | 浏览次数:3682
2024-09-26 10:58:03 | 浏览次数:3916
2024-09-25 10:45:40 | 浏览次数:3761
2024-09-24 11:35:09 | 浏览次数:3776
2024-09-22 10:12:55 | 浏览次数:3644
2024-09-21 14:21:39 | 浏览次数:3952
2024-09-20 11:29:15 | 浏览次数:3856
2024-09-19 11:36:30 | 浏览次数:3778
2024-09-17 09:56:25 | 浏览次数:4160
2024-09-16 14:52:59 | 浏览次数:4155
2024-09-15 12:33:17 | 浏览次数:4089
2024-09-14 09:55:50 | 浏览次数:4134
2024-08-30 09:05:32 | 浏览次数:4072
2024-08-29 11:32:37 | 浏览次数:3944
2024-08-28 09:37:14 | 浏览次数:3891
2024-08-27 09:47:42 | 浏览次数:3859
2024-08-25 09:56:04 | 浏览次数:3889
2024-08-24 10:42:02 | 浏览次数:3966
2024-08-23 10:02:59 | 浏览次数:3681
2024-08-22 09:12:26 | 浏览次数:3732
2024-08-21 11:44:08 | 浏览次数:3645
2024-08-20 11:47:37 | 浏览次数:3742
2024-08-18 10:27:14 | 浏览次数:3586
2024-08-17 14:09:04 | 浏览次数:3950
2024-08-16 10:59:49 | 浏览次数:3656
2024-08-15 10:03:34 | 浏览次数:3729
2024-08-14 11:24:34 | 浏览次数:3672
2024-08-13 10:29:36 | 浏览次数:3636
2024-08-11 10:46:16 | 浏览次数:3632
2024-08-10 10:44:38 | 浏览次数:3963
2024-08-09 13:56:48 | 浏览次数:3940
2024-08-08 15:17:48 | 浏览次数:4092
2024-08-07 09:25:26 | 浏览次数:3913
2024-08-06 10:17:54 | 浏览次数:3845
2024-08-04 10:34:24 | 浏览次数:3975
2024-08-03 10:28:01 | 浏览次数:3972
2024-08-02 11:17:41 | 浏览次数:4001
2024-08-01 10:04:18 | 浏览次数:3904
2024-07-31 10:05:06 | 浏览次数:3754
2024-07-30 09:43:26 | 浏览次数:3779
2024-07-29 10:02:10 | 浏览次数:4108
2024-07-28 09:55:21 | 浏览次数:4032
2024-07-27 09:48:22 | 浏览次数:3824
2024-07-26 11:18:34 | 浏览次数:4036
2024-07-25 10:35:58 | 浏览次数:4200
2024-07-24 11:12:04 | 浏览次数:4022
2024-07-23 11:56:32 | 浏览次数:4049
2024-07-21 10:28:22 | 浏览次数:3980
2024-07-20 10:41:29 | 浏览次数:4126
2024-07-19 11:44:53 | 浏览次数:4166
2024-07-18 10:52:42 | 浏览次数:4127
2024-07-17 09:55:42 | 浏览次数:4016
2024-07-16 09:03:17 | 浏览次数:4075
2024-07-14 10:54:25 | 浏览次数:4226
2024-07-13 11:46:15 | 浏览次数:4168
2024-07-12 11:03:04 | 浏览次数:4255
2024-07-11 11:27:28 | 浏览次数:4059
2024-07-10 10:19:24 | 浏览次数:4194
2024-07-09 10:08:46 | 浏览次数:4217
2024-07-07 10:41:01 | 浏览次数:4292
2024-07-06 10:02:59 | 浏览次数:4336
2024-07-05 10:10:42 | 浏览次数:4279
2024-07-04 10:18:29 | 浏览次数:4136
2024-07-03 09:43:04 | 浏览次数:4251
2024-07-02 10:39:08 | 浏览次数:4259
2024-06-30 10:51:37 | 浏览次数:4241
2024-06-29 11:27:09 | 浏览次数:4212
2024-06-28 11:43:26 | 浏览次数:4162
2024-06-27 11:08:26 | 浏览次数:4214
2024-06-26 09:23:44 | 浏览次数:4308
2024-06-25 10:22:45 | 浏览次数:4263
2024-06-22 13:23:34 | 浏览次数:4296
2024-06-21 09:50:34 | 浏览次数:4354
2024-06-20 09:57:13 | 浏览次数:4208
2024-06-19 09:43:58 | 浏览次数:4006
2024-06-18 10:36:35 | 浏览次数:3944
2024-06-16 09:38:39 | 浏览次数:4064
2024-06-15 11:13:53 | 浏览次数:4201
2024-06-14 10:00:46 | 浏览次数:4108
2024-06-13 11:14:21 | 浏览次数:4132
2024-06-12 13:50:40 | 浏览次数:4190
2024-06-12 10:54:04 | 浏览次数:4125
2024-06-11 10:10:52 | 浏览次数:4209
2024-06-09 10:19:45 | 浏览次数:4314
2024-06-08 11:02:22 | 浏览次数:4353
2024-06-07 09:43:42 | 浏览次数:4414
2024-06-06 11:53:58 | 浏览次数:4336
2024-06-05 09:04:43 | 浏览次数:4407
2024-06-04 10:05:19 | 浏览次数:4372
2024-06-02 09:29:14 | 浏览次数:4406
2024-06-01 11:40:17 | 浏览次数:4283
2024-05-31 11:56:29 | 浏览次数:4511
2024-05-30 10:40:05 | 浏览次数:4336
2024-05-29 11:58:12 | 浏览次数:4540
2024-05-29 11:04:56 | 浏览次数:4329
2024-05-28 10:02:35 | 浏览次数:4251
2024-05-26 09:26:04 | 浏览次数:4241
2024-05-25 10:49:20 | 浏览次数:4533
2024-05-24 10:57:10 | 浏览次数:4331
2024-05-23 11:28:52 | 浏览次数:4386
2024-05-22 11:34:43 | 浏览次数:4219
2024-05-21 10:18:17 | 浏览次数:4340
2024-05-19 09:48:31 | 浏览次数:4381
2024-05-18 10:00:27 | 浏览次数:4442
2024-05-17 11:16:23 | 浏览次数:4173
2024-05-16 09:17:01 | 浏览次数:4365
2024-05-15 09:41:22 | 浏览次数:4136
2024-05-14 09:40:06 | 浏览次数:4264
2024-05-13 10:14:34 | 浏览次数:4335
2024-05-12 09:30:28 | 浏览次数:4229
2024-05-11 09:55:02 | 浏览次数:4303
2024-05-10 10:21:22 | 浏览次数:4524
2024-05-09 11:13:03 | 浏览次数:4408
2024-05-05 10:33:09 | 浏览次数:4439
2024-05-03 09:40:35 | 浏览次数:4506
2024-05-02 09:38:06 | 浏览次数:4553
2024-05-01 09:19:44 | 浏览次数:4385
2024-04-30 10:25:45 | 浏览次数:4490
2024-04-29 09:28:47 | 浏览次数:4347
2024-04-28 09:48:24 | 浏览次数:5194
2024-04-27 10:08:17 | 浏览次数:4459
2024-04-26 10:06:29 | 浏览次数:4460
2024-04-25 11:36:13 | 浏览次数:4327
2024-04-24 09:49:00 | 浏览次数:4436
2024-04-23 10:21:12 | 浏览次数:4286
2024-04-21 11:36:25 | 浏览次数:4325
2024-04-20 11:04:03 | 浏览次数:4260
2024-04-19 09:30:17 | 浏览次数:4289
2024-04-18 09:06:15 | 浏览次数:4244
2024-04-17 09:19:40 | 浏览次数:4346
2024-04-16 09:26:39 | 浏览次数:4266
2024-04-14 10:27:39 | 浏览次数:4482
2024-04-13 09:50:52 | 浏览次数:4587
2024-04-12 09:00:57 | 浏览次数:4701
2024-04-11 09:22:52 | 浏览次数:4657
2024-04-10 08:54:01 | 浏览次数:4705
2024-04-09 13:45:07 | 浏览次数:4606
2024-04-07 10:57:42 | 浏览次数:4563
2024-04-06 11:03:10 | 浏览次数:4789
2024-04-05 11:54:46 | 浏览次数:4611
2024-04-04 14:16:50 | 浏览次数:4561
2024-04-03 11:18:34 | 浏览次数:4923
2024-04-02 10:59:09 | 浏览次数:4550
2024-03-31 13:08:07 | 浏览次数:4795
2024-03-30 16:17:41 | 浏览次数:4756
2024-03-29 11:19:27 | 浏览次数:4663
2024-03-28 11:00:52 | 浏览次数:4569
2024-03-27 10:22:00 | 浏览次数:4678
2024-03-26 10:33:06 | 浏览次数:4724
2024-03-24 09:34:19 | 浏览次数:4576
2024-03-23 10:21:54 | 浏览次数:5204
2024-03-22 09:24:35 | 浏览次数:4667
2024-03-21 09:13:57 | 浏览次数:4974
2024-03-20 09:55:01 | 浏览次数:4777
2024-03-19 10:15:02 | 浏览次数:4659
2024-03-17 10:14:12 | 浏览次数:4563
2024-03-16 09:10:03 | 浏览次数:5031
2024-03-15 09:36:33 | 浏览次数:4852
2024-03-14 09:34:09 | 浏览次数:4861
2024-03-13 14:02:21 | 浏览次数:4781
2024-03-12 11:39:51 | 浏览次数:4961
2024-03-10 09:33:04 | 浏览次数:4815
2024-03-09 10:17:30 | 浏览次数:4948
2024-03-08 11:23:44 | 浏览次数:4919
2024-03-07 09:50:17 | 浏览次数:4726
2024-03-06 14:14:07 | 浏览次数:4814
2024-03-05 11:50:06 | 浏览次数:4885
2024-03-03 10:27:26 | 浏览次数:4970
2024-03-02 09:58:29 | 浏览次数:4748
2024-03-01 10:22:55 | 浏览次数:4706
2024-02-29 12:16:03 | 浏览次数:4895
2024-02-28 09:04:32 | 浏览次数:5040
2024-02-27 10:47:09 | 浏览次数:5011
2024-02-25 10:26:32 | 浏览次数:4992
2024-02-24 11:28:07 | 浏览次数:4983
2024-02-23 09:15:58 | 浏览次数:5190
2024-02-22 09:50:35 | 浏览次数:4968
2024-02-21 09:52:03 | 浏览次数:4959
2024-02-20 09:44:47 | 浏览次数:5022
2024-02-19 10:30:18 | 浏览次数:4929
2024-02-18 13:37:57 | 浏览次数:4979
2024-01-10 09:06:30 | 浏览次数:5461
2024-01-09 11:37:29 | 浏览次数:5323
2024-01-07 10:57:31 | 浏览次数:5620
2024-01-06 11:07:28 | 浏览次数:5579
2024-01-05 14:56:45 | 浏览次数:5603
2024-01-04 14:52:23 | 浏览次数:5687
2024-01-03 09:23:23 | 浏览次数:5749
2024-01-02 09:43:09 | 浏览次数:5541
2023-12-31 09:51:00 | 浏览次数:5699
2023-12-30 11:33:24 | 浏览次数:5466
2023-12-29 09:18:51 | 浏览次数:5595
2023-12-28 09:50:10 | 浏览次数:5711
2023-12-27 11:20:39 | 浏览次数:5841
2023-12-26 08:54:38 | 浏览次数:5892
2023-12-24 11:01:27 | 浏览次数:5538
2023-12-23 11:09:04 | 浏览次数:5625
2023-12-22 08:59:40 | 浏览次数:5478
2023-12-21 09:30:10 | 浏览次数:5429
2023-12-20 10:26:16 | 浏览次数:6156
2023-12-19 10:28:29 | 浏览次数:5833
2023-12-17 09:54:08 | 浏览次数:5731
2023-12-16 10:19:04 | 浏览次数:5561
2023-12-14 09:22:54 | 浏览次数:5683
2023-12-13 11:06:28 | 浏览次数:5749
2023-12-12 09:33:56 | 浏览次数:5749
2023-12-10 09:37:18 | 浏览次数:5822
2023-12-09 10:42:03 | 浏览次数:5908
2023-12-08 09:35:06 | 浏览次数:5705
2023-12-07 09:22:40 | 浏览次数:5894
2023-12-06 09:55:11 | 浏览次数:5740
2023-12-05 10:00:25 | 浏览次数:5644
2023-12-03 10:35:31 | 浏览次数:5727
2023-12-02 10:49:43 | 浏览次数:5793
2023-12-01 10:12:34 | 浏览次数:5902
2023-11-30 10:12:03 | 浏览次数:5615
2023-11-29 10:29:51 | 浏览次数:5875
2023-11-28 09:44:42 | 浏览次数:5796
2023-11-26 09:24:27 | 浏览次数:5837
2023-11-25 10:36:55 | 浏览次数:5951
2023-11-24 09:43:58 | 浏览次数:5914
2023-11-23 09:54:45 | 浏览次数:5885
2023-11-22 10:52:53 | 浏览次数:5789
2023-11-21 10:33:45 | 浏览次数:5865
2023-11-19 10:41:42 | 浏览次数:5929
2023-11-17 09:59:35 | 浏览次数:5897
2023-11-16 09:22:27 | 浏览次数:5879
2023-11-15 09:20:56 | 浏览次数:5999
2023-11-14 09:39:10 | 浏览次数:5943
2023-11-12 09:33:58 | 浏览次数:6063
2023-11-11 10:02:50 | 浏览次数:6062
2023-11-10 10:25:30 | 浏览次数:5989
2023-11-09 14:28:21 | 浏览次数:6583
2023-11-08 10:21:14 | 浏览次数:6044
2023-11-07 09:36:24 | 浏览次数:5956
2023-11-05 10:05:27 | 浏览次数:6020
2023-11-04 10:13:06 | 浏览次数:5874
2023-11-03 09:49:02 | 浏览次数:5629
2023-11-02 10:16:48 | 浏览次数:5768
2023-11-01 09:26:21 | 浏览次数:6143
2023-10-31 09:21:55 | 浏览次数:6004
2023-10-30 10:29:22 | 浏览次数:5860
2023-10-29 09:51:10 | 浏览次数:6001
2023-10-28 10:19:45 | 浏览次数:5998
2023-10-27 10:17:50 | 浏览次数:5768
2023-10-26 10:52:26 | 浏览次数:6121
2023-10-25 09:54:51 | 浏览次数:5782
2023-10-24 09:32:35 | 浏览次数:6111
2023-10-22 10:17:22 | 浏览次数:5853
2023-10-21 11:09:08 | 浏览次数:6207
2023-10-19 10:15:02 | 浏览次数:6281
2023-10-18 11:12:40 | 浏览次数:6010
2023-10-17 16:03:41 | 浏览次数:6089
2023-10-15 09:56:39 | 浏览次数:6188
2023-10-13 10:02:39 | 浏览次数:6132
2023-10-12 09:47:07 | 浏览次数:6313
2023-10-08 10:57:06 | 浏览次数:6292
2023-10-07 11:24:37 | 浏览次数:6745
2023-10-06 09:45:31 | 浏览次数:6395
2023-10-04 09:39:33 | 浏览次数:6842
2023-10-03 09:56:05 | 浏览次数:6374
2023-10-02 10:39:02 | 浏览次数:6123
2023-10-01 10:58:01 | 浏览次数:6239
2023-09-29 09:53:57 | 浏览次数:6219
2023-09-28 10:17:27 | 浏览次数:6438
2023-09-27 10:01:58 | 浏览次数:6187
2023-09-26 09:45:49 | 浏览次数:6187
2023-09-24 10:47:48 | 浏览次数:6369
2023-09-23 10:33:39 | 浏览次数:6243
2023-09-22 09:45:23 | 浏览次数:6280
2023-09-21 10:22:06 | 浏览次数:6512
2023-09-20 09:50:18 | 浏览次数:6412
2023-09-19 10:40:45 | 浏览次数:6277
2023-09-17 10:58:05 | 浏览次数:6285
2023-09-16 10:08:45 | 浏览次数:7563
2023-09-15 09:25:18 | 浏览次数:6799
2023-09-14 09:21:02 | 浏览次数:7111
2023-09-13 09:16:04 | 浏览次数:7171
2023-09-12 09:20:02 | 浏览次数:6724
2023-09-10 09:54:45 | 浏览次数:6610
2023-09-09 09:44:24 | 浏览次数:7726
2023-09-08 10:14:42 | 浏览次数:6735
2023-09-07 10:47:08 | 浏览次数:7858
2023-09-06 14:55:38 | 浏览次数:6653
2023-09-05 09:11:33 | 浏览次数:7148
2023-09-03 09:47:22 | 浏览次数:6529
2023-09-02 09:40:35 | 浏览次数:7805
2023-08-31 09:16:47 | 浏览次数:6728
2023-08-30 09:26:20 | 浏览次数:7757
2023-08-29 09:26:28 | 浏览次数:7646
2023-08-26 10:22:19 | 浏览次数:7400
2023-08-25 11:01:35 | 浏览次数:7899
2023-08-24 09:23:46 | 浏览次数:6966
2023-08-22 09:41:58 | 浏览次数:6534
2023-08-19 09:32:57 | 浏览次数:6644
2023-08-17 10:23:57 | 浏览次数:8078
2023-08-13 10:22:35 | 浏览次数:6418
2023-08-12 10:43:31 | 浏览次数:6483
2023-08-10 09:37:04 | 浏览次数:7518
2023-08-09 16:50:53 | 浏览次数:7031
2023-08-08 09:23:49 | 浏览次数:6974
2023-08-05 09:50:43 | 浏览次数:7396
2023-08-04 09:52:37 | 浏览次数:10925
2023-08-02 09:43:47 | 浏览次数:6718
2023-08-01 09:38:06 | 浏览次数:8142
2023-07-31 10:52:46 | 浏览次数:7163
2023-07-30 09:56:26 | 浏览次数:7951
2023-07-29 10:41:05 | 浏览次数:7328
2023-07-27 09:46:00 | 浏览次数:7960
2023-07-26 10:03:14 | 浏览次数:6685
2023-07-25 09:24:34 | 浏览次数:7234
2023-07-23 09:58:19 | 浏览次数:7356
2023-07-22 10:24:35 | 浏览次数:8049
2023-07-21 09:26:36 | 浏览次数:8017
2023-07-20 09:20:24 | 浏览次数:8184
2023-07-19 09:08:55 | 浏览次数:7970
2023-07-18 09:29:34 | 浏览次数:7931
2023-07-14 09:41:41 | 浏览次数:8086
2023-07-13 10:56:39 | 浏览次数:7466
2023-07-11 10:06:46 | 浏览次数:7438
2023-07-09 10:22:05 | 浏览次数:7592
2023-07-07 09:30:18 | 浏览次数:7500
2023-07-06 09:42:15 | 浏览次数:7113
2023-07-01 10:02:28 | 浏览次数:7539
2023-06-30 09:40:23 | 浏览次数:7983
2023-06-29 10:09:54 | 浏览次数:8839
2023-06-28 10:01:42 | 浏览次数:8389
2023-06-27 09:52:00 | 浏览次数:8198
2023-06-25 11:07:20 | 浏览次数:8145
2023-06-24 10:06:31 | 浏览次数:7867
2023-06-23 09:53:43 | 浏览次数:8533
2023-06-18 11:12:08 | 浏览次数:8672
2023-06-17 10:28:55 | 浏览次数:8803
2023-06-16 09:07:45 | 浏览次数:7909
2023-06-15 09:08:54 | 浏览次数:8414
2023-06-13 11:49:03 | 浏览次数:8269
2023-06-11 10:10:07 | 浏览次数:8525
2023-06-08 09:18:40 | 浏览次数:8527
2023-06-07 16:26:36 | 浏览次数:8407
2023-06-06 10:03:35 | 浏览次数:7801
2023-06-04 09:44:19 | 浏览次数:8462
2023-06-03 10:08:29 | 浏览次数:8212
2023-06-02 09:34:56 | 浏览次数:7721
2023-06-01 09:11:27 | 浏览次数:8023
2023-05-31 09:31:05 | 浏览次数:8449
2023-05-30 10:04:18 | 浏览次数:7222
2023-05-28 10:07:21 | 浏览次数:7515
2023-05-27 10:07:12 | 浏览次数:7294
2023-05-26 11:08:06 | 浏览次数:7951
2023-05-23 09:58:25 | 浏览次数:7987
2023-05-21 09:35:12 | 浏览次数:8326
2023-05-20 10:20:39 | 浏览次数:8017
2023-05-19 09:45:17 | 浏览次数:7339
2023-05-18 13:26:28 | 浏览次数:7596
2023-05-17 09:10:46 | 浏览次数:7636
2023-05-16 08:57:00 | 浏览次数:8016
2023-05-14 09:30:21 | 浏览次数:8839
2023-05-13 09:23:39 | 浏览次数:8059
2023-05-12 09:39:17 | 浏览次数:7353
2023-05-11 08:43:37 | 浏览次数:7299
2023-05-10 15:03:36 | 浏览次数:7886
2023-05-10 09:17:53 | 浏览次数:8468
2023-05-09 09:09:41 | 浏览次数:7958
2023-05-08 15:28:04 | 浏览次数:7365
2023-05-07 09:31:17 | 浏览次数:7924
2023-05-06 09:29:59 | 浏览次数:7584
2021-03-23 14:10:00 | 浏览次数:10499
2021-03-23 13:23:09 | 浏览次数:10239
2021-03-20 14:51:01 | 浏览次数:11192
2021-03-18 15:21:51 | 浏览次数:10187
2021-03-16 11:52:08 | 浏览次数:9807
2021-03-16 10:32:31 | 浏览次数:9865
2021-03-13 16:56:25 | 浏览次数:10035
2021-03-11 16:39:18 | 浏览次数:10018
2021-03-11 14:20:28 | 浏览次数:9757
2021-03-07 14:23:46 | 浏览次数:9933
2021-03-06 14:58:00 | 浏览次数:10015
2020-11-27 10:25:11 | 浏览次数:10769
2020-11-25 16:04:28 | 浏览次数:10455
2020-11-17 15:49:08 | 浏览次数:10423
2020-11-17 15:11:53 | 浏览次数:10435
2020-11-17 14:55:08 | 浏览次数:10710
2020-10-31 00:11:25 | 浏览次数:10747
2020-09-20 14:06:54 | 浏览次数:10624
2019-12-04 10:24:17 | 浏览次数:15989
2019-11-20 16:30:56 | 浏览次数:11573
2019-10-07 17:26:12 | 浏览次数:14780
2019-10-06 13:28:44 | 浏览次数:11584
2019-09-10 15:34:35 | 浏览次数:11487
2019-06-07 14:43:20 | 浏览次数:12086
2019-05-31 15:01:23 | 浏览次数:11809
2019-05-18 15:47:29 | 浏览次数:13337
2019-03-28 11:24:29 | 浏览次数:11883
2018-12-01 11:02:07 | 浏览次数:12728
2018-11-08 13:56:32 | 浏览次数:18859
2018-10-21 08:48:23 | 浏览次数:15992