立即预约
免费定制整装家居
一站置家 全程无忧 一省到底
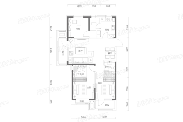
十月金秋沈阳各大楼盘都陆陆续续进入了交房环节,收到新房的业主除了房屋的质量外,最关心的就是如何又快又好的完成装修啦,今天小编就带大家看一下近期交房的富力星月湾115.00㎡户型装修设计及效果图赏析。
首先我们先一起来分析一下这个户型:
本套户型整体户型方正,活动区域开阔,全明通透户型,整个空间采光充足,居室布局合理,通风良好,动静分离,居住起来非常的舒适、方便。本套户型没有过多的问题,不过对于局部空间的利用上可以根据实际情况具体问题具体解决。
(图片源自房天下)
接下来我们分析再一下各个空间如何装修:
本套户型没有玄关区域进门后右手边有一小部分空余空间,可以设置储物柜来解决收纳问题,或者在装修时在们口做一个隔断玄关,然后将餐厅位置移动到临近厨房的家政空间中。
(图为富力星月湾115.00㎡户型玄关装修案例)
本套户型的客厅与阳台相连,在装修时如果觉得客厅空间不足可以选择并入扩容,如果觉得空间足够也可以选择做其他功能空间使用。
(图为富力星月湾115.00㎡户型客厅装修案例)
(图为林凤装饰富力星月湾115.00㎡户型美式风格客厅装修案例)
本套户型的厨房附近有一个家政空间,在装修时如果觉得开门就能看见餐厅比较尴尬,可以在装修时把家政空间与厨房的隔墙拆除并入,做一体化餐厨或者讲其单独作为餐厅皆可。
(图为富力星月湾115.00㎡户型餐厅装修案例)
本套户型有三个居室空间,在装修时主卧的有卫生间存在,如果觉得家中人口不多卫生间够用的情况下,可以选择将其作为衣帽间使用。另外主卧附近的次卧与阳台相连,在装修时可以考虑并入阳台空间将其合理的利用起来。
(图为林凤富力星月湾115.00㎡户型卧室装修案例)
(图为林凤富力星月湾115.00㎡户型主卧室装修案例)
以上就是富力星月湾115.00㎡户型装修设计及效果图赏析,欢迎有需求的业主到店咨询。总体来说富力星月湾115.00㎡的这个户型还是非常宜居的,不过部分空间的使用和选择上要根据业主的自身使用习惯来具体实施。即将下房的业主如果有装修需求,可以到林凤装饰请专业的设计师进行免费验房、免费量房、免费设计三大服务,让您收房、装修都省心,预约电话:400-656-9909
2026-03-07 14:39:29 | 浏览次数:734
2026-02-28 17:10:52 | 浏览次数:701
2026-02-27 16:02:41 | 浏览次数:844
2026-02-26 17:06:34 | 浏览次数:794
2026-02-25 16:35:18 | 浏览次数:807
2026-02-24 17:28:55 | 浏览次数:756
2026-02-08 09:25:29 | 浏览次数:915
2026-02-05 16:57:20 | 浏览次数:952
2026-02-02 16:33:59 | 浏览次数:1032
2026-02-01 10:26:50 | 浏览次数:1054
2026-01-31 17:18:50 | 浏览次数:1088
2026-01-29 16:47:07 | 浏览次数:1067
2026-01-28 10:30:32 | 浏览次数:1064
2026-01-27 16:06:55 | 浏览次数:1055
2026-01-25 14:52:18 | 浏览次数:1193
2026-01-24 15:28:45 | 浏览次数:1090
2026-01-23 09:57:17 | 浏览次数:961
2026-01-22 09:45:51 | 浏览次数:1074
2026-01-21 16:31:49 | 浏览次数:1037
2026-01-20 16:48:01 | 浏览次数:963
2026-01-18 15:07:26 | 浏览次数:1063
2026-01-17 16:49:29 | 浏览次数:982
2026-01-16 16:56:27 | 浏览次数:1022
2026-01-14 15:32:43 | 浏览次数:984
2026-01-13 14:20:41 | 浏览次数:1212
2026-01-11 13:59:36 | 浏览次数:1176
2026-01-10 09:30:19 | 浏览次数:1134
2026-01-09 10:21:59 | 浏览次数:1395
2026-01-08 16:20:41 | 浏览次数:1122
2026-01-07 09:31:25 | 浏览次数:1198
2026-01-06 16:34:08 | 浏览次数:1173
2026-01-04 10:40:41 | 浏览次数:1259
2026-01-03 15:03:20 | 浏览次数:1334
2026-01-02 16:58:37 | 浏览次数:1255
2025-12-31 11:03:08 | 浏览次数:1463
2025-12-30 13:35:19 | 浏览次数:1269
2025-12-29 10:38:58 | 浏览次数:1298
2025-12-28 16:28:29 | 浏览次数:1397
2025-12-27 15:31:11 | 浏览次数:1330
2025-12-26 16:06:04 | 浏览次数:1415
2025-12-25 11:37:22 | 浏览次数:1532
2025-12-24 10:33:54 | 浏览次数:1421
2025-12-23 16:52:26 | 浏览次数:1387
2025-12-21 09:51:53 | 浏览次数:1407
2025-12-20 15:17:47 | 浏览次数:1404
2025-12-19 16:28:25 | 浏览次数:1484
2025-12-18 16:46:55 | 浏览次数:1429
2025-12-17 10:08:28 | 浏览次数:1727
2025-12-16 15:19:16 | 浏览次数:1503
2025-12-14 11:34:12 | 浏览次数:1432
2025-12-13 16:10:23 | 浏览次数:1450
2025-12-11 14:15:40 | 浏览次数:1420
2025-12-10 16:30:57 | 浏览次数:1508
2025-12-09 15:48:50 | 浏览次数:1629
2025-12-07 15:06:17 | 浏览次数:1435
2025-12-06 10:19:53 | 浏览次数:1303
2025-12-05 11:09:51 | 浏览次数:1312
2025-12-04 16:24:49 | 浏览次数:1475
2025-12-03 16:29:06 | 浏览次数:1233
2025-12-02 11:32:59 | 浏览次数:1375
2025-11-30 11:14:22 | 浏览次数:1292
2025-11-29 16:10:33 | 浏览次数:1295
2025-11-28 16:27:35 | 浏览次数:1833
2025-11-27 16:59:59 | 浏览次数:1372
2025-11-26 16:03:41 | 浏览次数:1292
2025-11-25 16:25:40 | 浏览次数:1394
2025-11-23 11:08:56 | 浏览次数:1470
2025-11-22 16:50:53 | 浏览次数:1499
2025-11-21 13:40:40 | 浏览次数:1479
2025-11-20 10:13:24 | 浏览次数:1621
2025-11-19 15:03:18 | 浏览次数:1466
2025-11-18 15:29:16 | 浏览次数:1500
2025-11-16 10:45:00 | 浏览次数:1536
2025-11-15 16:29:08 | 浏览次数:1738
2025-11-14 16:31:13 | 浏览次数:1554
2025-11-13 16:59:57 | 浏览次数:1575
2025-11-12 16:36:18 | 浏览次数:1614
2025-11-09 10:20:31 | 浏览次数:1720
2025-11-08 10:44:56 | 浏览次数:1482
2025-11-07 15:23:52 | 浏览次数:1589
2025-11-06 16:10:25 | 浏览次数:1561
2025-11-05 10:30:03 | 浏览次数:1605
2025-11-04 11:23:07 | 浏览次数:1677
2025-11-02 16:11:15 | 浏览次数:1624
2025-11-01 16:19:20 | 浏览次数:1591
2025-10-31 09:16:58 | 浏览次数:1574
2025-10-30 10:32:28 | 浏览次数:1575
2025-10-29 16:09:09 | 浏览次数:1515
2025-10-28 16:22:48 | 浏览次数:1535
2025-10-26 10:19:39 | 浏览次数:1607
2025-10-25 16:11:14 | 浏览次数:1677
2025-10-24 15:28:42 | 浏览次数:1695
2025-10-23 10:40:33 | 浏览次数:1660
2025-10-22 14:52:12 | 浏览次数:1477
2025-10-21 16:43:25 | 浏览次数:1556
2025-10-19 12:34:45 | 浏览次数:1527
2025-10-17 14:35:23 | 浏览次数:1638
2025-10-16 10:57:27 | 浏览次数:1580
2025-10-15 12:25:26 | 浏览次数:1533
2025-10-12 14:06:26 | 浏览次数:1714
2025-10-11 09:51:02 | 浏览次数:1765
2025-10-10 15:15:08 | 浏览次数:1833
2025-10-09 16:32:40 | 浏览次数:1954
2025-10-08 14:45:02 | 浏览次数:1811
2025-10-07 17:07:28 | 浏览次数:1841
2025-10-06 13:19:04 | 浏览次数:1788
2025-10-05 13:47:19 | 浏览次数:1826
2025-10-02 15:01:32 | 浏览次数:1806
2025-10-01 15:51:24 | 浏览次数:1892
2025-09-30 09:37:29 | 浏览次数:1909
2025-09-29 16:34:57 | 浏览次数:1980
2025-09-27 16:43:36 | 浏览次数:2012
2025-09-26 11:03:39 | 浏览次数:2105
2025-09-25 10:26:55 | 浏览次数:1885
2025-09-24 15:17:39 | 浏览次数:2020
2025-09-23 10:00:33 | 浏览次数:2235
2025-09-21 14:19:19 | 浏览次数:2195
2025-09-20 15:09:15 | 浏览次数:2123
2025-09-19 15:51:53 | 浏览次数:2226
2025-09-18 14:49:34 | 浏览次数:2029
2025-09-17 16:47:52 | 浏览次数:1998
2025-09-16 16:35:07 | 浏览次数:2484
2025-09-14 14:59:51 | 浏览次数:2206
2025-09-13 17:04:32 | 浏览次数:2146
2025-09-12 09:35:24 | 浏览次数:2315
2025-09-11 15:46:23 | 浏览次数:2255
2025-09-10 13:58:02 | 浏览次数:2376
2025-09-09 16:48:23 | 浏览次数:2343
2025-09-07 11:44:11 | 浏览次数:2418
2025-09-06 09:43:11 | 浏览次数:2325
2025-09-05 09:51:41 | 浏览次数:2272
2025-09-04 17:08:16 | 浏览次数:2551
2025-09-03 16:42:34 | 浏览次数:2492
2025-09-02 14:35:40 | 浏览次数:2355
2025-08-31 09:42:38 | 浏览次数:2381
2025-08-30 17:10:52 | 浏览次数:2345
2025-08-29 16:56:07 | 浏览次数:2628
2025-08-28 16:10:50 | 浏览次数:2308
2025-08-27 15:11:21 | 浏览次数:2386
2025-08-26 16:13:37 | 浏览次数:2357
2025-08-24 10:34:05 | 浏览次数:2459
2025-08-23 16:22:41 | 浏览次数:2320
2025-08-22 09:54:07 | 浏览次数:2258
2025-08-21 15:44:53 | 浏览次数:2099
2025-08-20 10:30:48 | 浏览次数:2215
2025-08-19 15:26:24 | 浏览次数:2216
2025-08-17 09:38:31 | 浏览次数:2309
2025-08-16 09:17:41 | 浏览次数:2327
2025-08-15 16:16:38 | 浏览次数:2246
2025-08-14 15:11:15 | 浏览次数:2300
2025-08-13 11:16:39 | 浏览次数:2240
2025-08-12 16:40:13 | 浏览次数:2213
2025-08-10 11:51:34 | 浏览次数:2605
2025-08-09 15:23:47 | 浏览次数:2745
2025-08-08 17:05:56 | 浏览次数:2606
2025-08-07 14:22:25 | 浏览次数:2547
2025-08-06 16:11:50 | 浏览次数:2545
2025-08-05 16:24:45 | 浏览次数:2510
2025-08-03 16:42:11 | 浏览次数:2470
2025-08-02 16:52:53 | 浏览次数:2514
2025-08-01 12:33:16 | 浏览次数:2460
2025-07-31 13:52:41 | 浏览次数:2521
2025-07-30 14:25:27 | 浏览次数:2675
2025-07-29 14:53:02 | 浏览次数:2584
2025-07-27 10:22:56 | 浏览次数:2365
2025-07-26 10:32:01 | 浏览次数:2426
2025-07-25 11:25:50 | 浏览次数:2674
2025-07-24 14:06:45 | 浏览次数:2517
2025-07-23 10:12:49 | 浏览次数:2369
2025-07-22 15:40:09 | 浏览次数:2302
2025-07-20 10:09:20 | 浏览次数:2305
2025-07-19 12:38:59 | 浏览次数:2251
2025-07-18 16:29:46 | 浏览次数:2251
2025-07-17 10:16:42 | 浏览次数:2474
2025-07-16 10:45:54 | 浏览次数:2732
2025-07-15 15:35:01 | 浏览次数:2427
2025-07-13 10:07:41 | 浏览次数:2209
2025-07-12 16:51:37 | 浏览次数:2539
2025-07-11 16:37:32 | 浏览次数:2476
2025-07-10 16:47:48 | 浏览次数:2502
2025-07-09 15:34:09 | 浏览次数:2404
2025-07-08 15:52:37 | 浏览次数:2569
2025-07-05 17:15:15 | 浏览次数:2555
2025-07-04 09:49:17 | 浏览次数:2438
2025-07-03 16:41:12 | 浏览次数:2629
2025-07-02 15:50:42 | 浏览次数:2489
2025-07-01 12:31:53 | 浏览次数:2330
2025-06-30 16:27:08 | 浏览次数:2387
2025-06-29 09:55:37 | 浏览次数:2545
2025-06-28 16:36:33 | 浏览次数:2598
2025-06-27 14:03:37 | 浏览次数:2685
2025-06-26 16:06:22 | 浏览次数:2424
2025-06-24 15:26:00 | 浏览次数:2695
2025-06-22 10:00:14 | 浏览次数:3290
2025-06-21 10:08:40 | 浏览次数:2862
2025-06-20 14:52:47 | 浏览次数:2717
2025-06-19 16:36:24 | 浏览次数:2922
2025-06-18 15:44:05 | 浏览次数:2707
2025-06-13 11:33:04 | 浏览次数:2666
2025-06-12 16:01:19 | 浏览次数:2814
2025-06-11 15:19:21 | 浏览次数:2704
2025-06-10 16:40:08 | 浏览次数:2804
2025-06-08 14:39:12 | 浏览次数:2683
2025-06-07 15:14:59 | 浏览次数:2852
2025-06-06 16:03:43 | 浏览次数:2603
2025-06-05 16:03:53 | 浏览次数:2652
2025-06-04 16:33:15 | 浏览次数:2844
2025-06-02 14:16:04 | 浏览次数:2597
2025-06-01 09:05:36 | 浏览次数:2853
2025-05-31 14:26:35 | 浏览次数:2867
2025-05-30 16:37:51 | 浏览次数:2449
2025-05-29 16:24:51 | 浏览次数:2691
2025-05-28 14:38:54 | 浏览次数:2564
2025-05-27 16:09:59 | 浏览次数:2668
2025-05-25 11:41:11 | 浏览次数:2761
2025-05-24 15:50:28 | 浏览次数:2594
2025-05-23 16:50:58 | 浏览次数:2577
2025-05-22 11:28:42 | 浏览次数:2721
2025-05-21 16:25:34 | 浏览次数:2557
2025-05-20 16:07:22 | 浏览次数:2544
2025-05-18 11:08:06 | 浏览次数:2637
2025-05-17 16:44:37 | 浏览次数:2732
2025-05-16 16:18:03 | 浏览次数:2813
2025-05-15 15:18:00 | 浏览次数:3337
2025-05-14 15:38:10 | 浏览次数:2655
2025-05-13 14:27:50 | 浏览次数:2476
2025-05-11 10:14:30 | 浏览次数:2790
2025-05-10 16:59:04 | 浏览次数:2710
2025-05-09 15:20:33 | 浏览次数:2697
2025-05-08 15:18:03 | 浏览次数:3136
2025-05-05 15:44:43 | 浏览次数:2905
2025-05-04 15:22:31 | 浏览次数:3161
2025-05-03 16:12:37 | 浏览次数:2694
2025-05-02 15:32:47 | 浏览次数:3037
2025-05-01 16:09:56 | 浏览次数:2890
2025-04-30 13:29:34 | 浏览次数:2848
2025-04-25 11:56:45 | 浏览次数:2908
2025-04-24 15:18:22 | 浏览次数:2850
2025-04-23 15:24:21 | 浏览次数:2911
2025-04-22 16:36:31 | 浏览次数:2723
2025-04-20 10:16:19 | 浏览次数:3085
2025-04-19 14:10:59 | 浏览次数:2752
2025-04-18 15:37:43 | 浏览次数:3145
2025-04-17 14:54:29 | 浏览次数:2823
2025-04-16 15:36:16 | 浏览次数:2858
2025-04-15 11:33:47 | 浏览次数:2768
2025-04-13 10:17:57 | 浏览次数:2827
2025-04-12 09:46:39 | 浏览次数:3335
2025-04-11 15:15:06 | 浏览次数:2876
2025-04-10 15:23:21 | 浏览次数:3058
2025-04-09 15:36:16 | 浏览次数:2786
2025-04-08 14:07:17 | 浏览次数:2825
2025-04-06 10:00:17 | 浏览次数:3258
2025-04-05 16:11:40 | 浏览次数:3044
2025-04-04 16:27:40 | 浏览次数:3071
2025-04-03 15:32:16 | 浏览次数:2820
2025-04-02 14:47:40 | 浏览次数:3592
2025-04-01 11:02:10 | 浏览次数:3072
2025-03-31 14:45:43 | 浏览次数:3245
2025-03-30 11:40:27 | 浏览次数:3249
2025-03-29 16:01:08 | 浏览次数:3332
2025-03-28 16:46:53 | 浏览次数:3161
2025-03-27 16:24:49 | 浏览次数:3112
2025-03-26 15:11:15 | 浏览次数:3261
2025-03-25 14:20:18 | 浏览次数:3115
2025-03-23 10:27:52 | 浏览次数:3467
2025-03-22 14:30:31 | 浏览次数:3199
2025-03-21 15:03:22 | 浏览次数:2976
2025-03-20 10:31:21 | 浏览次数:3184
2025-03-19 16:20:32 | 浏览次数:3302
2025-03-18 15:31:40 | 浏览次数:3306
2025-03-16 09:38:53 | 浏览次数:3282
2025-03-15 10:47:41 | 浏览次数:3158
2025-03-14 16:17:20 | 浏览次数:3266
2025-03-13 14:54:41 | 浏览次数:3240
2025-03-12 15:55:07 | 浏览次数:3043
2025-03-11 16:33:55 | 浏览次数:3256
2025-03-09 10:40:41 | 浏览次数:3186
2025-03-08 16:30:36 | 浏览次数:3303
2025-03-07 16:18:36 | 浏览次数:3155
2025-03-06 16:13:33 | 浏览次数:3152
2025-03-05 15:40:13 | 浏览次数:3431
2025-03-03 15:08:44 | 浏览次数:3279
2025-03-02 10:13:25 | 浏览次数:3481
2025-03-01 09:59:10 | 浏览次数:3354
2025-02-28 10:23:39 | 浏览次数:3378
2025-02-27 16:01:34 | 浏览次数:3211
2025-02-26 14:18:40 | 浏览次数:3392
2025-02-25 15:25:22 | 浏览次数:3377
2025-02-23 10:08:49 | 浏览次数:3294
2025-02-22 15:47:47 | 浏览次数:3190
2025-02-21 15:32:49 | 浏览次数:3168
2025-02-20 14:55:50 | 浏览次数:3181
2025-02-19 14:13:22 | 浏览次数:3276
2025-02-18 11:25:27 | 浏览次数:3395
2025-02-16 09:30:24 | 浏览次数:3264
2025-02-15 16:06:27 | 浏览次数:3298
2025-02-14 15:02:39 | 浏览次数:3429
2025-02-12 14:01:16 | 浏览次数:3411
2025-02-11 10:34:08 | 浏览次数:3666
2025-02-09 10:15:04 | 浏览次数:3299
2025-02-08 09:55:57 | 浏览次数:3518
2025-02-07 14:29:39 | 浏览次数:3454
2025-01-21 11:47:41 | 浏览次数:3603
2025-01-19 15:29:54 | 浏览次数:3469
2025-01-18 17:01:49 | 浏览次数:3658
2025-01-17 14:07:21 | 浏览次数:3628
2025-01-16 09:22:42 | 浏览次数:3402
2025-01-15 16:45:18 | 浏览次数:3524
2025-01-14 10:18:46 | 浏览次数:3548
2025-01-12 16:35:25 | 浏览次数:3713
2025-01-11 09:56:40 | 浏览次数:3409
2025-01-10 15:42:17 | 浏览次数:3849
2025-01-09 16:20:28 | 浏览次数:3305
2025-01-08 15:25:38 | 浏览次数:3213
2025-01-07 10:51:29 | 浏览次数:3257
2025-01-05 11:24:58 | 浏览次数:3159
2025-01-04 09:04:40 | 浏览次数:3314
2025-01-03 09:32:19 | 浏览次数:3536
2025-01-02 11:12:47 | 浏览次数:3290
2024-12-31 10:28:01 | 浏览次数:3260
2024-12-30 16:25:14 | 浏览次数:4083
2024-12-29 10:02:50 | 浏览次数:3477
2024-12-28 16:20:53 | 浏览次数:3386
2024-12-27 16:04:59 | 浏览次数:3300
2024-12-26 16:46:17 | 浏览次数:3751
2024-12-25 16:07:44 | 浏览次数:3376
2024-12-24 15:00:08 | 浏览次数:3446
2024-12-22 11:01:23 | 浏览次数:3512
2024-12-21 16:54:54 | 浏览次数:3341
2024-12-20 16:53:46 | 浏览次数:3665
2024-12-19 16:54:27 | 浏览次数:3551
2024-12-18 16:48:02 | 浏览次数:3778
2024-12-17 16:27:57 | 浏览次数:3819
2024-12-15 11:08:44 | 浏览次数:3758
2024-12-14 15:58:28 | 浏览次数:3376
2024-12-13 16:45:50 | 浏览次数:3459
2024-12-12 16:44:03 | 浏览次数:3485
2024-12-11 16:29:10 | 浏览次数:3598
2024-12-10 16:05:56 | 浏览次数:3800
2024-12-08 11:41:01 | 浏览次数:3664
2024-12-07 16:32:22 | 浏览次数:3775
2024-12-06 16:39:11 | 浏览次数:3559
2024-12-05 16:40:23 | 浏览次数:3559
2024-12-04 16:17:22 | 浏览次数:3485
2024-12-03 15:59:15 | 浏览次数:3473
2024-12-01 10:34:03 | 浏览次数:3781
2024-11-30 16:39:14 | 浏览次数:3694
2024-11-29 16:20:50 | 浏览次数:3709
2024-11-28 15:47:34 | 浏览次数:3446
2024-11-27 16:13:42 | 浏览次数:3472
2024-11-26 11:08:10 | 浏览次数:3592
2024-11-24 10:46:13 | 浏览次数:3455
2024-11-23 16:29:10 | 浏览次数:3420
2024-11-22 14:50:50 | 浏览次数:3531
2024-11-21 16:31:39 | 浏览次数:3534
2024-11-20 16:25:10 | 浏览次数:3283
2024-11-19 16:17:53 | 浏览次数:3406
2024-11-17 09:46:50 | 浏览次数:3386
2024-11-16 15:54:53 | 浏览次数:3421
2024-11-14 15:26:32 | 浏览次数:3253
2024-11-13 15:59:01 | 浏览次数:3289
2024-11-12 16:16:04 | 浏览次数:3495
2024-11-10 13:45:46 | 浏览次数:3367
2024-11-09 16:09:59 | 浏览次数:3207
2024-11-08 16:03:19 | 浏览次数:3237
2024-11-07 15:58:33 | 浏览次数:3230
2024-11-06 15:55:55 | 浏览次数:3347
2024-11-05 15:45:01 | 浏览次数:3195
2024-11-03 10:35:04 | 浏览次数:3434
2024-11-02 16:21:08 | 浏览次数:3258
2024-11-01 16:03:25 | 浏览次数:3838
2024-10-31 16:00:32 | 浏览次数:3595
2024-10-30 16:06:32 | 浏览次数:3671
2024-10-29 16:20:52 | 浏览次数:3791
2024-10-27 10:19:02 | 浏览次数:3916
2024-10-26 16:28:37 | 浏览次数:3648
2024-10-25 15:56:29 | 浏览次数:3790
2024-10-24 15:27:07 | 浏览次数:3673
2024-10-23 15:38:36 | 浏览次数:3625
2024-10-22 15:41:18 | 浏览次数:3597
2024-10-20 11:36:53 | 浏览次数:3636
2024-10-19 14:11:53 | 浏览次数:3628
2024-10-18 15:58:42 | 浏览次数:3685
2024-10-17 14:03:26 | 浏览次数:3650
2024-10-16 14:19:47 | 浏览次数:3384
2024-10-15 11:32:12 | 浏览次数:3377
2024-10-14 13:45:51 | 浏览次数:3525
2024-10-13 10:24:16 | 浏览次数:3512
2024-10-12 11:21:59 | 浏览次数:3479
2024-10-11 11:42:27 | 浏览次数:3630
2024-10-07 10:57:09 | 浏览次数:3507
2024-10-06 10:34:06 | 浏览次数:3548
2024-10-05 14:10:09 | 浏览次数:3768
2024-10-04 11:39:16 | 浏览次数:3952
2024-10-03 11:45:38 | 浏览次数:3534
2024-10-02 15:12:40 | 浏览次数:3889
2024-10-01 11:30:59 | 浏览次数:4807
2024-09-30 15:07:17 | 浏览次数:3616
2024-09-29 10:36:06 | 浏览次数:3767
2024-09-28 11:55:35 | 浏览次数:3612
2024-09-27 15:28:01 | 浏览次数:3684
2024-09-26 10:58:03 | 浏览次数:3917
2024-09-25 10:45:40 | 浏览次数:3763
2024-09-24 11:35:09 | 浏览次数:3777
2024-09-22 10:12:55 | 浏览次数:3645
2024-09-21 14:21:39 | 浏览次数:3953
2024-09-20 11:29:15 | 浏览次数:3856
2024-09-19 11:36:30 | 浏览次数:3778
2024-09-17 09:56:25 | 浏览次数:4160
2024-09-16 14:52:59 | 浏览次数:4157
2024-09-15 12:33:17 | 浏览次数:4090
2024-09-14 09:55:50 | 浏览次数:4135
2024-08-30 09:05:32 | 浏览次数:4072
2024-08-29 11:32:37 | 浏览次数:3944
2024-08-28 09:37:14 | 浏览次数:3893
2024-08-27 09:47:42 | 浏览次数:3860
2024-08-25 09:56:04 | 浏览次数:3890
2024-08-24 10:42:02 | 浏览次数:3967
2024-08-23 10:02:59 | 浏览次数:3682
2024-08-22 09:12:26 | 浏览次数:3732
2024-08-21 11:44:08 | 浏览次数:3646
2024-08-20 11:47:37 | 浏览次数:3743
2024-08-18 10:27:14 | 浏览次数:3588
2024-08-17 14:09:04 | 浏览次数:3951
2024-08-16 10:59:49 | 浏览次数:3656
2024-08-15 10:03:34 | 浏览次数:3730
2024-08-14 11:24:34 | 浏览次数:3673
2024-08-13 10:29:36 | 浏览次数:3636
2024-08-11 10:46:16 | 浏览次数:3633
2024-08-10 10:44:38 | 浏览次数:3964
2024-08-09 13:56:48 | 浏览次数:3943
2024-08-08 15:17:48 | 浏览次数:4094
2024-08-07 09:25:26 | 浏览次数:3916
2024-08-06 10:17:54 | 浏览次数:3845
2024-08-04 10:34:24 | 浏览次数:3977
2024-08-03 10:28:01 | 浏览次数:3979
2024-08-02 11:17:41 | 浏览次数:4005
2024-08-01 10:04:18 | 浏览次数:3905
2024-07-31 10:05:06 | 浏览次数:3757
2024-07-30 09:43:26 | 浏览次数:3779
2024-07-29 10:02:10 | 浏览次数:4108
2024-07-28 09:55:21 | 浏览次数:4033
2024-07-27 09:48:22 | 浏览次数:3824
2024-07-26 11:18:34 | 浏览次数:4037
2024-07-25 10:35:58 | 浏览次数:4201
2024-07-24 11:12:04 | 浏览次数:4023
2024-07-23 11:56:32 | 浏览次数:4051
2024-07-21 10:28:22 | 浏览次数:3980
2024-07-20 10:41:29 | 浏览次数:4126
2024-07-19 11:44:53 | 浏览次数:4167
2024-07-18 10:52:42 | 浏览次数:4127
2024-07-17 09:55:42 | 浏览次数:4017
2024-07-16 09:03:17 | 浏览次数:4075
2024-07-14 10:54:25 | 浏览次数:4227
2024-07-13 11:46:15 | 浏览次数:4169
2024-07-12 11:03:04 | 浏览次数:4257
2024-07-11 11:27:28 | 浏览次数:4060
2024-07-10 10:19:24 | 浏览次数:4197
2024-07-09 10:08:46 | 浏览次数:4217
2024-07-07 10:41:01 | 浏览次数:4292
2024-07-06 10:02:59 | 浏览次数:4337
2024-07-05 10:10:42 | 浏览次数:4279
2024-07-04 10:18:29 | 浏览次数:4137
2024-07-03 09:43:04 | 浏览次数:4251
2024-07-02 10:39:08 | 浏览次数:4259
2024-06-30 10:51:37 | 浏览次数:4242
2024-06-29 11:27:09 | 浏览次数:4214
2024-06-28 11:43:26 | 浏览次数:4162
2024-06-27 11:08:26 | 浏览次数:4216
2024-06-26 09:23:44 | 浏览次数:4309
2024-06-25 10:22:45 | 浏览次数:4266
2024-06-22 13:23:34 | 浏览次数:4298
2024-06-21 09:50:34 | 浏览次数:4355
2024-06-20 09:57:13 | 浏览次数:4210
2024-06-19 09:43:58 | 浏览次数:4008
2024-06-18 10:36:35 | 浏览次数:3944
2024-06-16 09:38:39 | 浏览次数:4065
2024-06-15 11:13:53 | 浏览次数:4203
2024-06-14 10:00:46 | 浏览次数:4108
2024-06-13 11:14:21 | 浏览次数:4132
2024-06-12 13:50:40 | 浏览次数:4190
2024-06-12 10:54:04 | 浏览次数:4127
2024-06-11 10:10:52 | 浏览次数:4209
2024-06-09 10:19:45 | 浏览次数:4314
2024-06-08 11:02:22 | 浏览次数:4353
2024-06-07 09:43:42 | 浏览次数:4414
2024-06-06 11:53:58 | 浏览次数:4337
2024-06-05 09:04:43 | 浏览次数:4407
2024-06-04 10:05:19 | 浏览次数:4372
2024-06-02 09:29:14 | 浏览次数:4406
2024-06-01 11:40:17 | 浏览次数:4283
2024-05-31 11:56:29 | 浏览次数:4513
2024-05-30 10:40:05 | 浏览次数:4336
2024-05-29 11:58:12 | 浏览次数:4540
2024-05-29 11:04:56 | 浏览次数:4330
2024-05-28 10:02:35 | 浏览次数:4252
2024-05-26 09:26:04 | 浏览次数:4242
2024-05-25 10:49:20 | 浏览次数:4533
2024-05-24 10:57:10 | 浏览次数:4331
2024-05-23 11:28:52 | 浏览次数:4387
2024-05-22 11:34:43 | 浏览次数:4222
2024-05-21 10:18:17 | 浏览次数:4340
2024-05-19 09:48:31 | 浏览次数:4381
2024-05-18 10:00:27 | 浏览次数:4444
2024-05-17 11:16:23 | 浏览次数:4173
2024-05-16 09:17:01 | 浏览次数:4365
2024-05-15 09:41:22 | 浏览次数:4136
2024-05-14 09:40:06 | 浏览次数:4266
2024-05-13 10:14:34 | 浏览次数:4335
2024-05-12 09:30:28 | 浏览次数:4230
2024-05-11 09:55:02 | 浏览次数:4304
2024-05-10 10:21:22 | 浏览次数:4525
2024-05-09 11:13:03 | 浏览次数:4410
2024-05-05 10:33:09 | 浏览次数:4439
2024-05-03 09:40:35 | 浏览次数:4506
2024-05-02 09:38:06 | 浏览次数:4555
2024-05-01 09:19:44 | 浏览次数:4387
2024-04-30 10:25:45 | 浏览次数:4491
2024-04-29 09:28:47 | 浏览次数:4347
2024-04-28 09:48:24 | 浏览次数:5197
2024-04-27 10:08:17 | 浏览次数:4460
2024-04-26 10:06:29 | 浏览次数:4461
2024-04-25 11:36:13 | 浏览次数:4328
2024-04-24 09:49:00 | 浏览次数:4437
2024-04-23 10:21:12 | 浏览次数:4288
2024-04-21 11:36:25 | 浏览次数:4325
2024-04-20 11:04:03 | 浏览次数:4260
2024-04-19 09:30:17 | 浏览次数:4290
2024-04-18 09:06:15 | 浏览次数:4246
2024-04-17 09:19:40 | 浏览次数:4346
2024-04-16 09:26:39 | 浏览次数:4266
2024-04-14 10:27:39 | 浏览次数:4483
2024-04-13 09:50:52 | 浏览次数:4588
2024-04-12 09:00:57 | 浏览次数:4701
2024-04-11 09:22:52 | 浏览次数:4657
2024-04-10 08:54:01 | 浏览次数:4706
2024-04-09 13:45:07 | 浏览次数:4609
2024-04-07 10:57:42 | 浏览次数:4564
2024-04-06 11:03:10 | 浏览次数:4791
2024-04-05 11:54:46 | 浏览次数:4613
2024-04-04 14:16:50 | 浏览次数:4563
2024-04-03 11:18:34 | 浏览次数:4924
2024-04-02 10:59:09 | 浏览次数:4551
2024-03-31 13:08:07 | 浏览次数:4795
2024-03-30 16:17:41 | 浏览次数:4759
2024-03-29 11:19:27 | 浏览次数:4663
2024-03-28 11:00:52 | 浏览次数:4569
2024-03-27 10:22:00 | 浏览次数:4678
2024-03-26 10:33:06 | 浏览次数:4725
2024-03-24 09:34:19 | 浏览次数:4577
2024-03-23 10:21:54 | 浏览次数:5205
2024-03-22 09:24:35 | 浏览次数:4669
2024-03-21 09:13:57 | 浏览次数:4978
2024-03-20 09:55:01 | 浏览次数:4777
2024-03-19 10:15:02 | 浏览次数:4659
2024-03-17 10:14:12 | 浏览次数:4564
2024-03-16 09:10:03 | 浏览次数:5031
2024-03-15 09:36:33 | 浏览次数:4853
2024-03-14 09:34:09 | 浏览次数:4863
2024-03-13 14:02:21 | 浏览次数:4781
2024-03-12 11:39:51 | 浏览次数:4961
2024-03-10 09:33:04 | 浏览次数:4815
2024-03-09 10:17:30 | 浏览次数:4948
2024-03-08 11:23:44 | 浏览次数:4921
2024-03-07 09:50:17 | 浏览次数:4728
2024-03-06 14:14:07 | 浏览次数:4816
2024-03-05 11:50:06 | 浏览次数:4885
2024-03-03 10:27:26 | 浏览次数:4970
2024-03-02 09:58:29 | 浏览次数:4748
2024-03-01 10:22:55 | 浏览次数:4708
2024-02-29 12:16:03 | 浏览次数:4898
2024-02-28 09:04:32 | 浏览次数:5041
2024-02-27 10:47:09 | 浏览次数:5011
2024-02-25 10:26:32 | 浏览次数:4997
2024-02-24 11:28:07 | 浏览次数:4983
2024-02-23 09:15:58 | 浏览次数:5192
2024-02-22 09:50:35 | 浏览次数:4968
2024-02-21 09:52:03 | 浏览次数:4959
2024-02-20 09:44:47 | 浏览次数:5022
2024-02-19 10:30:18 | 浏览次数:4932
2024-02-18 13:37:57 | 浏览次数:4979
2024-01-10 09:06:30 | 浏览次数:5462
2024-01-09 11:37:29 | 浏览次数:5323
2024-01-07 10:57:31 | 浏览次数:5622
2024-01-06 11:07:28 | 浏览次数:5579
2024-01-05 14:56:45 | 浏览次数:5606
2024-01-04 14:52:23 | 浏览次数:5687
2024-01-03 09:23:23 | 浏览次数:5749
2024-01-02 09:43:09 | 浏览次数:5541
2023-12-31 09:51:00 | 浏览次数:5700
2023-12-30 11:33:24 | 浏览次数:5467
2023-12-29 09:18:51 | 浏览次数:5597
2023-12-28 09:50:10 | 浏览次数:5712
2023-12-27 11:20:39 | 浏览次数:5841
2023-12-26 08:54:38 | 浏览次数:5892
2023-12-24 11:01:27 | 浏览次数:5539
2023-12-23 11:09:04 | 浏览次数:5628
2023-12-22 08:59:40 | 浏览次数:5481
2023-12-21 09:30:10 | 浏览次数:5431
2023-12-20 10:26:16 | 浏览次数:6157
2023-12-19 10:28:29 | 浏览次数:5833
2023-12-17 09:54:08 | 浏览次数:5733
2023-12-16 10:19:04 | 浏览次数:5561
2023-12-14 09:22:54 | 浏览次数:5683
2023-12-13 11:06:28 | 浏览次数:5750
2023-12-12 09:33:56 | 浏览次数:5749
2023-12-10 09:37:18 | 浏览次数:5823
2023-12-09 10:42:03 | 浏览次数:5909
2023-12-08 09:35:06 | 浏览次数:5705
2023-12-07 09:22:40 | 浏览次数:5895
2023-12-06 09:55:11 | 浏览次数:5742
2023-12-05 10:00:25 | 浏览次数:5645
2023-12-03 10:35:31 | 浏览次数:5730
2023-12-02 10:49:43 | 浏览次数:5793
2023-12-01 10:12:34 | 浏览次数:5903
2023-11-30 10:12:03 | 浏览次数:5616
2023-11-29 10:29:51 | 浏览次数:5877
2023-11-28 09:44:42 | 浏览次数:5797
2023-11-26 09:24:27 | 浏览次数:5837
2023-11-25 10:36:55 | 浏览次数:5952
2023-11-24 09:43:58 | 浏览次数:5920
2023-11-23 09:54:45 | 浏览次数:5887
2023-11-22 10:52:53 | 浏览次数:5791
2023-11-21 10:33:45 | 浏览次数:5866
2023-11-19 10:41:42 | 浏览次数:5931
2023-11-17 09:59:35 | 浏览次数:5900
2023-11-16 09:22:27 | 浏览次数:5879
2023-11-15 09:20:56 | 浏览次数:5999
2023-11-14 09:39:10 | 浏览次数:5945
2023-11-12 09:33:58 | 浏览次数:6066
2023-11-11 10:02:50 | 浏览次数:6063
2023-11-10 10:25:30 | 浏览次数:5989
2023-11-09 14:28:21 | 浏览次数:6583
2023-11-08 10:21:14 | 浏览次数:6044
2023-11-07 09:36:24 | 浏览次数:5956
2023-11-05 10:05:27 | 浏览次数:6021
2023-11-04 10:13:06 | 浏览次数:5874
2023-11-03 09:49:02 | 浏览次数:5632
2023-11-02 10:16:48 | 浏览次数:5769
2023-11-01 09:26:21 | 浏览次数:6143
2023-10-31 09:21:55 | 浏览次数:6004
2023-10-30 10:29:22 | 浏览次数:5861
2023-10-29 09:51:10 | 浏览次数:6003
2023-10-28 10:19:45 | 浏览次数:5999
2023-10-27 10:17:50 | 浏览次数:5771
2023-10-26 10:52:26 | 浏览次数:6121
2023-10-25 09:54:51 | 浏览次数:5782
2023-10-24 09:32:35 | 浏览次数:6111
2023-10-22 10:17:22 | 浏览次数:5853
2023-10-21 11:09:08 | 浏览次数:6208
2023-10-19 10:15:02 | 浏览次数:6283
2023-10-18 11:12:40 | 浏览次数:6012
2023-10-17 16:03:41 | 浏览次数:6089
2023-10-15 09:56:39 | 浏览次数:6188
2023-10-13 10:02:39 | 浏览次数:6132
2023-10-12 09:47:07 | 浏览次数:6313
2023-10-08 10:57:06 | 浏览次数:6293
2023-10-07 11:24:37 | 浏览次数:6746
2023-10-06 09:45:31 | 浏览次数:6395
2023-10-04 09:39:33 | 浏览次数:6843
2023-10-03 09:56:05 | 浏览次数:6375
2023-10-02 10:39:02 | 浏览次数:6123
2023-10-01 10:58:01 | 浏览次数:6240
2023-09-29 09:53:57 | 浏览次数:6219
2023-09-28 10:17:27 | 浏览次数:6439
2023-09-27 10:01:58 | 浏览次数:6187
2023-09-26 09:45:49 | 浏览次数:6187
2023-09-24 10:47:48 | 浏览次数:6369
2023-09-23 10:33:39 | 浏览次数:6243
2023-09-22 09:45:23 | 浏览次数:6280
2023-09-21 10:22:06 | 浏览次数:6512
2023-09-20 09:50:18 | 浏览次数:6413
2023-09-19 10:40:45 | 浏览次数:6277
2023-09-17 10:58:05 | 浏览次数:6286
2023-09-16 10:08:45 | 浏览次数:7567
2023-09-15 09:25:18 | 浏览次数:6799
2023-09-14 09:21:02 | 浏览次数:7112
2023-09-13 09:16:04 | 浏览次数:7171
2023-09-12 09:20:02 | 浏览次数:6726
2023-09-10 09:54:45 | 浏览次数:6611
2023-09-09 09:44:24 | 浏览次数:7728
2023-09-08 10:14:42 | 浏览次数:6737
2023-09-07 10:47:08 | 浏览次数:7858
2023-09-06 14:55:38 | 浏览次数:6655
2023-09-05 09:11:33 | 浏览次数:7148
2023-09-03 09:47:22 | 浏览次数:6530
2023-09-02 09:40:35 | 浏览次数:7805
2023-08-31 09:16:47 | 浏览次数:6730
2023-08-30 09:26:20 | 浏览次数:7759
2023-08-29 09:26:28 | 浏览次数:7647
2023-08-26 10:22:19 | 浏览次数:7400
2023-08-25 11:01:35 | 浏览次数:7899
2023-08-24 09:23:46 | 浏览次数:6966
2023-08-22 09:41:58 | 浏览次数:6534
2023-08-19 09:32:57 | 浏览次数:6645
2023-08-17 10:23:57 | 浏览次数:8079
2023-08-13 10:22:35 | 浏览次数:6419
2023-08-12 10:43:31 | 浏览次数:6485
2023-08-10 09:37:04 | 浏览次数:7518
2023-08-09 16:50:53 | 浏览次数:7032
2023-08-08 09:23:49 | 浏览次数:6974
2023-08-05 09:50:43 | 浏览次数:7396
2023-08-04 09:52:37 | 浏览次数:10925
2023-08-02 09:43:47 | 浏览次数:6720
2023-08-01 09:38:06 | 浏览次数:8142
2023-07-31 10:52:46 | 浏览次数:7164
2023-07-30 09:56:26 | 浏览次数:7951
2023-07-29 10:41:05 | 浏览次数:7328
2023-07-27 09:46:00 | 浏览次数:7960
2023-07-26 10:03:14 | 浏览次数:6688
2023-07-25 09:24:34 | 浏览次数:7235
2023-07-23 09:58:19 | 浏览次数:7356
2023-07-22 10:24:35 | 浏览次数:8049
2023-07-21 09:26:36 | 浏览次数:8020
2023-07-20 09:20:24 | 浏览次数:8184
2023-07-19 09:08:55 | 浏览次数:7973
2023-07-18 09:29:34 | 浏览次数:7931
2023-07-14 09:41:41 | 浏览次数:8086
2023-07-13 10:56:39 | 浏览次数:7466
2023-07-11 10:06:46 | 浏览次数:7439
2023-07-09 10:22:05 | 浏览次数:7594
2023-07-07 09:30:18 | 浏览次数:7500
2023-07-06 09:42:15 | 浏览次数:7113
2023-07-01 10:02:28 | 浏览次数:7539
2023-06-30 09:40:23 | 浏览次数:7983
2023-06-29 10:09:54 | 浏览次数:8841
2023-06-28 10:01:42 | 浏览次数:8390
2023-06-27 09:52:00 | 浏览次数:8199
2023-06-25 11:07:20 | 浏览次数:8145
2023-06-24 10:06:31 | 浏览次数:7867
2023-06-23 09:53:43 | 浏览次数:8533
2023-06-18 11:12:08 | 浏览次数:8672
2023-06-17 10:28:55 | 浏览次数:8804
2023-06-16 09:07:45 | 浏览次数:7910
2023-06-15 09:08:54 | 浏览次数:8414
2023-06-13 11:49:03 | 浏览次数:8269
2023-06-11 10:10:07 | 浏览次数:8525
2023-06-08 09:18:40 | 浏览次数:8528
2023-06-07 16:26:36 | 浏览次数:8408
2023-06-06 10:03:35 | 浏览次数:7802
2023-06-04 09:44:19 | 浏览次数:8463
2023-06-03 10:08:29 | 浏览次数:8212
2023-06-02 09:34:56 | 浏览次数:7722
2023-06-01 09:11:27 | 浏览次数:8028
2023-05-31 09:31:05 | 浏览次数:8449
2023-05-30 10:04:18 | 浏览次数:7222
2023-05-28 10:07:21 | 浏览次数:7517
2023-05-27 10:07:12 | 浏览次数:7295
2023-05-26 11:08:06 | 浏览次数:7951
2023-05-23 09:58:25 | 浏览次数:7988
2023-05-21 09:35:12 | 浏览次数:8327
2023-05-20 10:20:39 | 浏览次数:8017
2023-05-19 09:45:17 | 浏览次数:7339
2023-05-18 13:26:28 | 浏览次数:7596
2023-05-17 09:10:46 | 浏览次数:7637
2023-05-16 08:57:00 | 浏览次数:8016
2023-05-14 09:30:21 | 浏览次数:8839
2023-05-13 09:23:39 | 浏览次数:8060
2023-05-12 09:39:17 | 浏览次数:7353
2023-05-11 08:43:37 | 浏览次数:7299
2023-05-10 15:03:36 | 浏览次数:7886
2023-05-10 09:17:53 | 浏览次数:8469
2023-05-09 09:09:41 | 浏览次数:7959
2023-05-08 15:28:04 | 浏览次数:7365
2023-05-07 09:31:17 | 浏览次数:7926
2023-05-06 09:29:59 | 浏览次数:7584
2021-03-23 14:10:00 | 浏览次数:10500
2021-03-23 13:23:09 | 浏览次数:10242
2021-03-20 14:51:01 | 浏览次数:11192
2021-03-18 15:21:51 | 浏览次数:10188
2021-03-16 11:52:08 | 浏览次数:9807
2021-03-16 10:32:31 | 浏览次数:9865
2021-03-13 16:56:25 | 浏览次数:10035
2021-03-11 16:39:18 | 浏览次数:10018
2021-03-11 14:20:28 | 浏览次数:9757
2021-03-07 14:23:46 | 浏览次数:9935
2021-03-06 14:58:00 | 浏览次数:10015
2020-11-27 10:25:11 | 浏览次数:10770
2020-11-25 16:04:28 | 浏览次数:10456
2020-11-17 15:49:08 | 浏览次数:10425
2020-11-17 15:11:53 | 浏览次数:10436
2020-11-17 14:55:08 | 浏览次数:10712
2020-10-31 00:11:25 | 浏览次数:10749
2020-09-20 14:06:54 | 浏览次数:10624
2019-12-04 10:24:17 | 浏览次数:15991
2019-11-20 16:30:56 | 浏览次数:11575
2019-10-07 17:26:12 | 浏览次数:14781
2019-10-06 13:28:44 | 浏览次数:11586
2019-09-10 15:34:35 | 浏览次数:11488
2019-06-07 14:43:20 | 浏览次数:12086
2019-05-31 15:01:23 | 浏览次数:11810
2019-05-18 15:47:29 | 浏览次数:13337
2019-03-28 11:24:29 | 浏览次数:11883
2018-12-01 11:02:07 | 浏览次数:12728
2018-11-08 13:56:32 | 浏览次数:18861
2018-10-21 08:48:23 | 浏览次数:15995