立即预约
免费定制整装家居
一站置家 全程无忧 一省到底
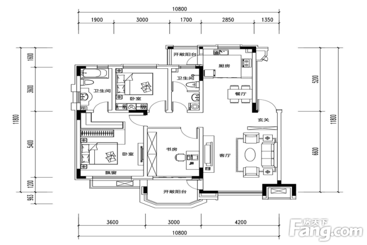
每年的10月左右都是新下房业主最发愁的时候,新下房不知道如何下手,拖久了第二年装修很快就会涨价,尤其是第一次装修的业主,对于不知道该如何装修,确实非常苦恼的。今天小编就对即将下房的东方银座•莱茵城118㎡户型给大家分析以下该如何装修设计才好。
东方银座•莱茵城118㎡户型的各个空间户型方正,全明户型,可保证整体空间采光和通风,各个功能区的尺寸比例规范,布局合理,能很好地满足日常功能需求,整体空间开阔,采光充足,居住舒适度好。从整体来看,在沈阳装修时本案只需要根据需求进做一些个性化的设计即可。
(图片源自房天下)
下面就对本案的各个空间给大家做一下详细的分析。首先先来看看玄关,玄关开门就会面对客厅如果装修时比较注重隐私可以做隔断来进行分隔,常见的玄关隔断可以采用半墙和镂空隔断两种选择。
(图为沈阳东方银座•莱茵城118㎡户型玄关装修案例)
本案的客厅空间宽敞采光好,在装修时根据自身需求进行设计即可,对于与客厅相邻的阳台,如果允许封上合并的话,可以考虑在客厅处封死把阳台并入其他空间。
(图为沈阳东方银座•莱茵城118㎡户型客厅装修案例)
本案的餐厅与厨房相邻,在装修时独立存在或者打通做开放式设计都是很好的选择。另外本案的厨房相邻处有一个北阳台可以作为洗衣空间,或者在允许的情况下并入厨房做扩展都是可以的。
(图为沈阳东方银座•莱茵城118㎡户型厨房装修案例)
本案除了主卫生间外主卧中也有一个卫生间,在家庭常住人口不多的情况下,可以考虑将主卧的卫生间改为衣帽间。另外本案的主卫生间由于距离各个空间都非常的近,作为公用卫生间是非常好的。另外卫生间在设计之初已经将洗手台剥离,我们可以考虑将其保留充分的进行干湿分离。
(图为沈阳东方银座•莱茵城118㎡户型衣帽间装修案例)
本案共有三个居室,我们在装修时如果物业允许,可以考虑将南侧的阳台并入扩展室内空间。另外一个北侧的卧室做成榻榻米加书柜的形式,可以保证客卧和办公区域共同实现。
(图为沈阳东方银座•莱茵城118㎡户型衣帽间装修案例)
以上就是东方银座•莱茵城118㎡户型,如何装修设计的分析和讲解,希望能帮到大家。如果在交房时,有些没有经验的业主对于验房没有经验的话,可以预约林凤装饰设计师进行免费量房服务哦,预约电话:400-656-9909,点击这里查看更多沈阳楼盘装修案例。
2026-03-07 14:39:29 | 浏览次数:733
2026-02-28 17:10:52 | 浏览次数:701
2026-02-27 16:02:41 | 浏览次数:843
2026-02-26 17:06:34 | 浏览次数:793
2026-02-25 16:35:18 | 浏览次数:804
2026-02-24 17:28:55 | 浏览次数:756
2026-02-08 09:25:29 | 浏览次数:915
2026-02-05 16:57:20 | 浏览次数:950
2026-02-02 16:33:59 | 浏览次数:1030
2026-02-01 10:26:50 | 浏览次数:1054
2026-01-31 17:18:50 | 浏览次数:1086
2026-01-29 16:47:07 | 浏览次数:1067
2026-01-28 10:30:32 | 浏览次数:1062
2026-01-27 16:06:55 | 浏览次数:1054
2026-01-25 14:52:18 | 浏览次数:1193
2026-01-24 15:28:45 | 浏览次数:1089
2026-01-23 09:57:17 | 浏览次数:960
2026-01-22 09:45:51 | 浏览次数:1074
2026-01-21 16:31:49 | 浏览次数:1036
2026-01-20 16:48:01 | 浏览次数:963
2026-01-18 15:07:26 | 浏览次数:1063
2026-01-17 16:49:29 | 浏览次数:981
2026-01-16 16:56:27 | 浏览次数:1020
2026-01-14 15:32:43 | 浏览次数:982
2026-01-13 14:20:41 | 浏览次数:1212
2026-01-11 13:59:36 | 浏览次数:1175
2026-01-10 09:30:19 | 浏览次数:1132
2026-01-09 10:21:59 | 浏览次数:1394
2026-01-08 16:20:41 | 浏览次数:1121
2026-01-07 09:31:25 | 浏览次数:1196
2026-01-06 16:34:08 | 浏览次数:1167
2026-01-04 10:40:41 | 浏览次数:1256
2026-01-03 15:03:20 | 浏览次数:1334
2026-01-02 16:58:37 | 浏览次数:1253
2025-12-31 11:03:08 | 浏览次数:1463
2025-12-30 13:35:19 | 浏览次数:1266
2025-12-29 10:38:58 | 浏览次数:1297
2025-12-28 16:28:29 | 浏览次数:1397
2025-12-27 15:31:11 | 浏览次数:1330
2025-12-26 16:06:04 | 浏览次数:1413
2025-12-25 11:37:22 | 浏览次数:1531
2025-12-24 10:33:54 | 浏览次数:1420
2025-12-23 16:52:26 | 浏览次数:1386
2025-12-21 09:51:53 | 浏览次数:1406
2025-12-20 15:17:47 | 浏览次数:1403
2025-12-19 16:28:25 | 浏览次数:1484
2025-12-18 16:46:55 | 浏览次数:1428
2025-12-17 10:08:28 | 浏览次数:1725
2025-12-16 15:19:16 | 浏览次数:1503
2025-12-14 11:34:12 | 浏览次数:1432
2025-12-13 16:10:23 | 浏览次数:1450
2025-12-11 14:15:40 | 浏览次数:1420
2025-12-10 16:30:57 | 浏览次数:1508
2025-12-09 15:48:50 | 浏览次数:1629
2025-12-07 15:06:17 | 浏览次数:1435
2025-12-06 10:19:53 | 浏览次数:1303
2025-12-05 11:09:51 | 浏览次数:1310
2025-12-04 16:24:49 | 浏览次数:1475
2025-12-03 16:29:06 | 浏览次数:1233
2025-12-02 11:32:59 | 浏览次数:1375
2025-11-30 11:14:22 | 浏览次数:1292
2025-11-29 16:10:33 | 浏览次数:1295
2025-11-28 16:27:35 | 浏览次数:1832
2025-11-27 16:59:59 | 浏览次数:1372
2025-11-26 16:03:41 | 浏览次数:1292
2025-11-25 16:25:40 | 浏览次数:1394
2025-11-23 11:08:56 | 浏览次数:1470
2025-11-22 16:50:53 | 浏览次数:1498
2025-11-21 13:40:40 | 浏览次数:1477
2025-11-20 10:13:24 | 浏览次数:1619
2025-11-19 15:03:18 | 浏览次数:1466
2025-11-18 15:29:16 | 浏览次数:1500
2025-11-16 10:45:00 | 浏览次数:1536
2025-11-15 16:29:08 | 浏览次数:1737
2025-11-14 16:31:13 | 浏览次数:1554
2025-11-13 16:59:57 | 浏览次数:1575
2025-11-12 16:36:18 | 浏览次数:1614
2025-11-09 10:20:31 | 浏览次数:1720
2025-11-08 10:44:56 | 浏览次数:1481
2025-11-07 15:23:52 | 浏览次数:1585
2025-11-06 16:10:25 | 浏览次数:1560
2025-11-05 10:30:03 | 浏览次数:1605
2025-11-04 11:23:07 | 浏览次数:1677
2025-11-02 16:11:15 | 浏览次数:1622
2025-11-01 16:19:20 | 浏览次数:1591
2025-10-31 09:16:58 | 浏览次数:1574
2025-10-30 10:32:28 | 浏览次数:1573
2025-10-29 16:09:09 | 浏览次数:1515
2025-10-28 16:22:48 | 浏览次数:1535
2025-10-26 10:19:39 | 浏览次数:1607
2025-10-25 16:11:14 | 浏览次数:1675
2025-10-24 15:28:42 | 浏览次数:1695
2025-10-23 10:40:33 | 浏览次数:1660
2025-10-22 14:52:12 | 浏览次数:1476
2025-10-21 16:43:25 | 浏览次数:1553
2025-10-19 12:34:45 | 浏览次数:1526
2025-10-17 14:35:23 | 浏览次数:1638
2025-10-16 10:57:27 | 浏览次数:1580
2025-10-15 12:25:26 | 浏览次数:1533
2025-10-12 14:06:26 | 浏览次数:1713
2025-10-11 09:51:02 | 浏览次数:1763
2025-10-10 15:15:08 | 浏览次数:1833
2025-10-09 16:32:40 | 浏览次数:1951
2025-10-08 14:45:02 | 浏览次数:1810
2025-10-07 17:07:28 | 浏览次数:1841
2025-10-06 13:19:04 | 浏览次数:1787
2025-10-05 13:47:19 | 浏览次数:1826
2025-10-02 15:01:32 | 浏览次数:1805
2025-10-01 15:51:24 | 浏览次数:1891
2025-09-30 09:37:29 | 浏览次数:1908
2025-09-29 16:34:57 | 浏览次数:1979
2025-09-27 16:43:36 | 浏览次数:2011
2025-09-26 11:03:39 | 浏览次数:2105
2025-09-25 10:26:55 | 浏览次数:1885
2025-09-24 15:17:39 | 浏览次数:2019
2025-09-23 10:00:33 | 浏览次数:2234
2025-09-21 14:19:19 | 浏览次数:2195
2025-09-20 15:09:15 | 浏览次数:2122
2025-09-19 15:51:53 | 浏览次数:2225
2025-09-18 14:49:34 | 浏览次数:2025
2025-09-17 16:47:52 | 浏览次数:1998
2025-09-16 16:35:07 | 浏览次数:2484
2025-09-14 14:59:51 | 浏览次数:2205
2025-09-13 17:04:32 | 浏览次数:2146
2025-09-12 09:35:24 | 浏览次数:2313
2025-09-11 15:46:23 | 浏览次数:2255
2025-09-10 13:58:02 | 浏览次数:2375
2025-09-09 16:48:23 | 浏览次数:2343
2025-09-07 11:44:11 | 浏览次数:2417
2025-09-06 09:43:11 | 浏览次数:2325
2025-09-05 09:51:41 | 浏览次数:2272
2025-09-04 17:08:16 | 浏览次数:2551
2025-09-03 16:42:34 | 浏览次数:2490
2025-09-02 14:35:40 | 浏览次数:2355
2025-08-31 09:42:38 | 浏览次数:2378
2025-08-30 17:10:52 | 浏览次数:2343
2025-08-29 16:56:07 | 浏览次数:2627
2025-08-28 16:10:50 | 浏览次数:2308
2025-08-27 15:11:21 | 浏览次数:2386
2025-08-26 16:13:37 | 浏览次数:2357
2025-08-24 10:34:05 | 浏览次数:2459
2025-08-23 16:22:41 | 浏览次数:2320
2025-08-22 09:54:07 | 浏览次数:2258
2025-08-21 15:44:53 | 浏览次数:2098
2025-08-20 10:30:48 | 浏览次数:2215
2025-08-19 15:26:24 | 浏览次数:2216
2025-08-17 09:38:31 | 浏览次数:2307
2025-08-16 09:17:41 | 浏览次数:2326
2025-08-15 16:16:38 | 浏览次数:2245
2025-08-14 15:11:15 | 浏览次数:2299
2025-08-13 11:16:39 | 浏览次数:2240
2025-08-12 16:40:13 | 浏览次数:2213
2025-08-10 11:51:34 | 浏览次数:2602
2025-08-09 15:23:47 | 浏览次数:2744
2025-08-08 17:05:56 | 浏览次数:2606
2025-08-07 14:22:25 | 浏览次数:2546
2025-08-06 16:11:50 | 浏览次数:2545
2025-08-05 16:24:45 | 浏览次数:2509
2025-08-03 16:42:11 | 浏览次数:2470
2025-08-02 16:52:53 | 浏览次数:2514
2025-08-01 12:33:16 | 浏览次数:2460
2025-07-31 13:52:41 | 浏览次数:2521
2025-07-30 14:25:27 | 浏览次数:2675
2025-07-29 14:53:02 | 浏览次数:2584
2025-07-27 10:22:56 | 浏览次数:2365
2025-07-26 10:32:01 | 浏览次数:2425
2025-07-25 11:25:50 | 浏览次数:2673
2025-07-24 14:06:45 | 浏览次数:2517
2025-07-23 10:12:49 | 浏览次数:2368
2025-07-22 15:40:09 | 浏览次数:2302
2025-07-20 10:09:20 | 浏览次数:2305
2025-07-19 12:38:59 | 浏览次数:2250
2025-07-18 16:29:46 | 浏览次数:2251
2025-07-17 10:16:42 | 浏览次数:2474
2025-07-16 10:45:54 | 浏览次数:2732
2025-07-15 15:35:01 | 浏览次数:2427
2025-07-13 10:07:41 | 浏览次数:2209
2025-07-12 16:51:37 | 浏览次数:2538
2025-07-11 16:37:32 | 浏览次数:2476
2025-07-10 16:47:48 | 浏览次数:2502
2025-07-09 15:34:09 | 浏览次数:2404
2025-07-08 15:52:37 | 浏览次数:2569
2025-07-05 17:15:15 | 浏览次数:2555
2025-07-04 09:49:17 | 浏览次数:2438
2025-07-03 16:41:12 | 浏览次数:2629
2025-07-02 15:50:42 | 浏览次数:2489
2025-07-01 12:31:53 | 浏览次数:2330
2025-06-30 16:27:08 | 浏览次数:2387
2025-06-29 09:55:37 | 浏览次数:2542
2025-06-28 16:36:33 | 浏览次数:2596
2025-06-27 14:03:37 | 浏览次数:2685
2025-06-26 16:06:22 | 浏览次数:2424
2025-06-24 15:26:00 | 浏览次数:2695
2025-06-22 10:00:14 | 浏览次数:3289
2025-06-21 10:08:40 | 浏览次数:2862
2025-06-20 14:52:47 | 浏览次数:2717
2025-06-19 16:36:24 | 浏览次数:2921
2025-06-18 15:44:05 | 浏览次数:2706
2025-06-13 11:33:04 | 浏览次数:2666
2025-06-12 16:01:19 | 浏览次数:2813
2025-06-11 15:19:21 | 浏览次数:2702
2025-06-10 16:40:08 | 浏览次数:2803
2025-06-08 14:39:12 | 浏览次数:2682
2025-06-07 15:14:59 | 浏览次数:2851
2025-06-06 16:03:43 | 浏览次数:2602
2025-06-05 16:03:53 | 浏览次数:2651
2025-06-04 16:33:15 | 浏览次数:2843
2025-06-02 14:16:04 | 浏览次数:2596
2025-06-01 09:05:36 | 浏览次数:2853
2025-05-31 14:26:35 | 浏览次数:2863
2025-05-30 16:37:51 | 浏览次数:2447
2025-05-29 16:24:51 | 浏览次数:2691
2025-05-28 14:38:54 | 浏览次数:2564
2025-05-27 16:09:59 | 浏览次数:2668
2025-05-25 11:41:11 | 浏览次数:2761
2025-05-24 15:50:28 | 浏览次数:2594
2025-05-23 16:50:58 | 浏览次数:2576
2025-05-22 11:28:42 | 浏览次数:2721
2025-05-21 16:25:34 | 浏览次数:2557
2025-05-20 16:07:22 | 浏览次数:2543
2025-05-18 11:08:06 | 浏览次数:2636
2025-05-17 16:44:37 | 浏览次数:2731
2025-05-16 16:18:03 | 浏览次数:2812
2025-05-15 15:18:00 | 浏览次数:3336
2025-05-14 15:38:10 | 浏览次数:2655
2025-05-13 14:27:50 | 浏览次数:2475
2025-05-11 10:14:30 | 浏览次数:2789
2025-05-10 16:59:04 | 浏览次数:2710
2025-05-09 15:20:33 | 浏览次数:2697
2025-05-08 15:18:03 | 浏览次数:3136
2025-05-05 15:44:43 | 浏览次数:2905
2025-05-04 15:22:31 | 浏览次数:3161
2025-05-03 16:12:37 | 浏览次数:2694
2025-05-02 15:32:47 | 浏览次数:3035
2025-05-01 16:09:56 | 浏览次数:2888
2025-04-30 13:29:34 | 浏览次数:2848
2025-04-25 11:56:45 | 浏览次数:2908
2025-04-24 15:18:22 | 浏览次数:2849
2025-04-23 15:24:21 | 浏览次数:2910
2025-04-22 16:36:31 | 浏览次数:2722
2025-04-20 10:16:19 | 浏览次数:3084
2025-04-19 14:10:59 | 浏览次数:2752
2025-04-18 15:37:43 | 浏览次数:3144
2025-04-17 14:54:29 | 浏览次数:2821
2025-04-16 15:36:16 | 浏览次数:2858
2025-04-15 11:33:47 | 浏览次数:2768
2025-04-13 10:17:57 | 浏览次数:2826
2025-04-12 09:46:39 | 浏览次数:3334
2025-04-11 15:15:06 | 浏览次数:2876
2025-04-10 15:23:21 | 浏览次数:3055
2025-04-09 15:36:16 | 浏览次数:2785
2025-04-08 14:07:17 | 浏览次数:2821
2025-04-06 10:00:17 | 浏览次数:3258
2025-04-05 16:11:40 | 浏览次数:3044
2025-04-04 16:27:40 | 浏览次数:3070
2025-04-03 15:32:16 | 浏览次数:2820
2025-04-02 14:47:40 | 浏览次数:3591
2025-04-01 11:02:10 | 浏览次数:3072
2025-03-31 14:45:43 | 浏览次数:3245
2025-03-30 11:40:27 | 浏览次数:3249
2025-03-29 16:01:08 | 浏览次数:3332
2025-03-28 16:46:53 | 浏览次数:3161
2025-03-27 16:24:49 | 浏览次数:3112
2025-03-26 15:11:15 | 浏览次数:3259
2025-03-25 14:20:18 | 浏览次数:3115
2025-03-23 10:27:52 | 浏览次数:3467
2025-03-22 14:30:31 | 浏览次数:3197
2025-03-21 15:03:22 | 浏览次数:2976
2025-03-20 10:31:21 | 浏览次数:3183
2025-03-19 16:20:32 | 浏览次数:3301
2025-03-18 15:31:40 | 浏览次数:3304
2025-03-16 09:38:53 | 浏览次数:3282
2025-03-15 10:47:41 | 浏览次数:3157
2025-03-14 16:17:20 | 浏览次数:3264
2025-03-13 14:54:41 | 浏览次数:3240
2025-03-12 15:55:07 | 浏览次数:3043
2025-03-11 16:33:55 | 浏览次数:3256
2025-03-09 10:40:41 | 浏览次数:3185
2025-03-08 16:30:36 | 浏览次数:3302
2025-03-07 16:18:36 | 浏览次数:3155
2025-03-06 16:13:33 | 浏览次数:3151
2025-03-05 15:40:13 | 浏览次数:3430
2025-03-03 15:08:44 | 浏览次数:3277
2025-03-02 10:13:25 | 浏览次数:3481
2025-03-01 09:59:10 | 浏览次数:3354
2025-02-28 10:23:39 | 浏览次数:3378
2025-02-27 16:01:34 | 浏览次数:3210
2025-02-26 14:18:40 | 浏览次数:3391
2025-02-25 15:25:22 | 浏览次数:3376
2025-02-23 10:08:49 | 浏览次数:3294
2025-02-22 15:47:47 | 浏览次数:3187
2025-02-21 15:32:49 | 浏览次数:3166
2025-02-20 14:55:50 | 浏览次数:3181
2025-02-19 14:13:22 | 浏览次数:3274
2025-02-18 11:25:27 | 浏览次数:3393
2025-02-16 09:30:24 | 浏览次数:3262
2025-02-15 16:06:27 | 浏览次数:3297
2025-02-14 15:02:39 | 浏览次数:3428
2025-02-12 14:01:16 | 浏览次数:3411
2025-02-11 10:34:08 | 浏览次数:3666
2025-02-09 10:15:04 | 浏览次数:3299
2025-02-08 09:55:57 | 浏览次数:3518
2025-02-07 14:29:39 | 浏览次数:3454
2025-01-21 11:47:41 | 浏览次数:3601
2025-01-19 15:29:54 | 浏览次数:3469
2025-01-18 17:01:49 | 浏览次数:3658
2025-01-17 14:07:21 | 浏览次数:3628
2025-01-16 09:22:42 | 浏览次数:3402
2025-01-15 16:45:18 | 浏览次数:3524
2025-01-14 10:18:46 | 浏览次数:3545
2025-01-12 16:35:25 | 浏览次数:3709
2025-01-11 09:56:40 | 浏览次数:3409
2025-01-10 15:42:17 | 浏览次数:3849
2025-01-09 16:20:28 | 浏览次数:3304
2025-01-08 15:25:38 | 浏览次数:3213
2025-01-07 10:51:29 | 浏览次数:3257
2025-01-05 11:24:58 | 浏览次数:3158
2025-01-04 09:04:40 | 浏览次数:3312
2025-01-03 09:32:19 | 浏览次数:3536
2025-01-02 11:12:47 | 浏览次数:3290
2024-12-31 10:28:01 | 浏览次数:3260
2024-12-30 16:25:14 | 浏览次数:4083
2024-12-29 10:02:50 | 浏览次数:3477
2024-12-28 16:20:53 | 浏览次数:3386
2024-12-27 16:04:59 | 浏览次数:3300
2024-12-26 16:46:17 | 浏览次数:3751
2024-12-25 16:07:44 | 浏览次数:3376
2024-12-24 15:00:08 | 浏览次数:3446
2024-12-22 11:01:23 | 浏览次数:3511
2024-12-21 16:54:54 | 浏览次数:3339
2024-12-20 16:53:46 | 浏览次数:3664
2024-12-19 16:54:27 | 浏览次数:3550
2024-12-18 16:48:02 | 浏览次数:3778
2024-12-17 16:27:57 | 浏览次数:3819
2024-12-15 11:08:44 | 浏览次数:3758
2024-12-14 15:58:28 | 浏览次数:3376
2024-12-13 16:45:50 | 浏览次数:3459
2024-12-12 16:44:03 | 浏览次数:3483
2024-12-11 16:29:10 | 浏览次数:3597
2024-12-10 16:05:56 | 浏览次数:3800
2024-12-08 11:41:01 | 浏览次数:3664
2024-12-07 16:32:22 | 浏览次数:3775
2024-12-06 16:39:11 | 浏览次数:3558
2024-12-05 16:40:23 | 浏览次数:3557
2024-12-04 16:17:22 | 浏览次数:3485
2024-12-03 15:59:15 | 浏览次数:3473
2024-12-01 10:34:03 | 浏览次数:3779
2024-11-30 16:39:14 | 浏览次数:3694
2024-11-29 16:20:50 | 浏览次数:3709
2024-11-28 15:47:34 | 浏览次数:3446
2024-11-27 16:13:42 | 浏览次数:3470
2024-11-26 11:08:10 | 浏览次数:3592
2024-11-24 10:46:13 | 浏览次数:3455
2024-11-23 16:29:10 | 浏览次数:3420
2024-11-22 14:50:50 | 浏览次数:3530
2024-11-21 16:31:39 | 浏览次数:3534
2024-11-20 16:25:10 | 浏览次数:3283
2024-11-19 16:17:53 | 浏览次数:3404
2024-11-17 09:46:50 | 浏览次数:3385
2024-11-16 15:54:53 | 浏览次数:3420
2024-11-14 15:26:32 | 浏览次数:3252
2024-11-13 15:59:01 | 浏览次数:3288
2024-11-12 16:16:04 | 浏览次数:3495
2024-11-10 13:45:46 | 浏览次数:3367
2024-11-09 16:09:59 | 浏览次数:3207
2024-11-08 16:03:19 | 浏览次数:3237
2024-11-07 15:58:33 | 浏览次数:3230
2024-11-06 15:55:55 | 浏览次数:3347
2024-11-05 15:45:01 | 浏览次数:3194
2024-11-03 10:35:04 | 浏览次数:3433
2024-11-02 16:21:08 | 浏览次数:3258
2024-11-01 16:03:25 | 浏览次数:3837
2024-10-31 16:00:32 | 浏览次数:3594
2024-10-30 16:06:32 | 浏览次数:3669
2024-10-29 16:20:52 | 浏览次数:3789
2024-10-27 10:19:02 | 浏览次数:3916
2024-10-26 16:28:37 | 浏览次数:3648
2024-10-25 15:56:29 | 浏览次数:3790
2024-10-24 15:27:07 | 浏览次数:3671
2024-10-23 15:38:36 | 浏览次数:3623
2024-10-22 15:41:18 | 浏览次数:3595
2024-10-20 11:36:53 | 浏览次数:3636
2024-10-19 14:11:53 | 浏览次数:3627
2024-10-18 15:58:42 | 浏览次数:3684
2024-10-17 14:03:26 | 浏览次数:3647
2024-10-16 14:19:47 | 浏览次数:3384
2024-10-15 11:32:12 | 浏览次数:3375
2024-10-14 13:45:51 | 浏览次数:3524
2024-10-13 10:24:16 | 浏览次数:3512
2024-10-12 11:21:59 | 浏览次数:3479
2024-10-11 11:42:27 | 浏览次数:3629
2024-10-07 10:57:09 | 浏览次数:3506
2024-10-06 10:34:06 | 浏览次数:3546
2024-10-05 14:10:09 | 浏览次数:3767
2024-10-04 11:39:16 | 浏览次数:3952
2024-10-03 11:45:38 | 浏览次数:3533
2024-10-02 15:12:40 | 浏览次数:3889
2024-10-01 11:30:59 | 浏览次数:4807
2024-09-30 15:07:17 | 浏览次数:3615
2024-09-29 10:36:06 | 浏览次数:3767
2024-09-28 11:55:35 | 浏览次数:3612
2024-09-27 15:28:01 | 浏览次数:3683
2024-09-26 10:58:03 | 浏览次数:3917
2024-09-25 10:45:40 | 浏览次数:3762
2024-09-24 11:35:09 | 浏览次数:3776
2024-09-22 10:12:55 | 浏览次数:3645
2024-09-21 14:21:39 | 浏览次数:3953
2024-09-20 11:29:15 | 浏览次数:3856
2024-09-19 11:36:30 | 浏览次数:3778
2024-09-17 09:56:25 | 浏览次数:4160
2024-09-16 14:52:59 | 浏览次数:4156
2024-09-15 12:33:17 | 浏览次数:4089
2024-09-14 09:55:50 | 浏览次数:4134
2024-08-30 09:05:32 | 浏览次数:4072
2024-08-29 11:32:37 | 浏览次数:3944
2024-08-28 09:37:14 | 浏览次数:3891
2024-08-27 09:47:42 | 浏览次数:3860
2024-08-25 09:56:04 | 浏览次数:3889
2024-08-24 10:42:02 | 浏览次数:3966
2024-08-23 10:02:59 | 浏览次数:3681
2024-08-22 09:12:26 | 浏览次数:3732
2024-08-21 11:44:08 | 浏览次数:3646
2024-08-20 11:47:37 | 浏览次数:3743
2024-08-18 10:27:14 | 浏览次数:3587
2024-08-17 14:09:04 | 浏览次数:3950
2024-08-16 10:59:49 | 浏览次数:3656
2024-08-15 10:03:34 | 浏览次数:3730
2024-08-14 11:24:34 | 浏览次数:3672
2024-08-13 10:29:36 | 浏览次数:3636
2024-08-11 10:46:16 | 浏览次数:3633
2024-08-10 10:44:38 | 浏览次数:3963
2024-08-09 13:56:48 | 浏览次数:3942
2024-08-08 15:17:48 | 浏览次数:4093
2024-08-07 09:25:26 | 浏览次数:3914
2024-08-06 10:17:54 | 浏览次数:3845
2024-08-04 10:34:24 | 浏览次数:3976
2024-08-03 10:28:01 | 浏览次数:3975
2024-08-02 11:17:41 | 浏览次数:4002
2024-08-01 10:04:18 | 浏览次数:3904
2024-07-31 10:05:06 | 浏览次数:3756
2024-07-30 09:43:26 | 浏览次数:3779
2024-07-29 10:02:10 | 浏览次数:4108
2024-07-28 09:55:21 | 浏览次数:4033
2024-07-27 09:48:22 | 浏览次数:3824
2024-07-26 11:18:34 | 浏览次数:4036
2024-07-25 10:35:58 | 浏览次数:4200
2024-07-24 11:12:04 | 浏览次数:4022
2024-07-23 11:56:32 | 浏览次数:4049
2024-07-21 10:28:22 | 浏览次数:3980
2024-07-20 10:41:29 | 浏览次数:4126
2024-07-19 11:44:53 | 浏览次数:4167
2024-07-18 10:52:42 | 浏览次数:4127
2024-07-17 09:55:42 | 浏览次数:4016
2024-07-16 09:03:17 | 浏览次数:4075
2024-07-14 10:54:25 | 浏览次数:4226
2024-07-13 11:46:15 | 浏览次数:4169
2024-07-12 11:03:04 | 浏览次数:4255
2024-07-11 11:27:28 | 浏览次数:4060
2024-07-10 10:19:24 | 浏览次数:4195
2024-07-09 10:08:46 | 浏览次数:4217
2024-07-07 10:41:01 | 浏览次数:4292
2024-07-06 10:02:59 | 浏览次数:4337
2024-07-05 10:10:42 | 浏览次数:4279
2024-07-04 10:18:29 | 浏览次数:4136
2024-07-03 09:43:04 | 浏览次数:4251
2024-07-02 10:39:08 | 浏览次数:4259
2024-06-30 10:51:37 | 浏览次数:4241
2024-06-29 11:27:09 | 浏览次数:4213
2024-06-28 11:43:26 | 浏览次数:4162
2024-06-27 11:08:26 | 浏览次数:4214
2024-06-26 09:23:44 | 浏览次数:4308
2024-06-25 10:22:45 | 浏览次数:4266
2024-06-22 13:23:34 | 浏览次数:4297
2024-06-21 09:50:34 | 浏览次数:4355
2024-06-20 09:57:13 | 浏览次数:4208
2024-06-19 09:43:58 | 浏览次数:4008
2024-06-18 10:36:35 | 浏览次数:3944
2024-06-16 09:38:39 | 浏览次数:4065
2024-06-15 11:13:53 | 浏览次数:4202
2024-06-14 10:00:46 | 浏览次数:4108
2024-06-13 11:14:21 | 浏览次数:4132
2024-06-12 13:50:40 | 浏览次数:4190
2024-06-12 10:54:04 | 浏览次数:4125
2024-06-11 10:10:52 | 浏览次数:4209
2024-06-09 10:19:45 | 浏览次数:4314
2024-06-08 11:02:22 | 浏览次数:4353
2024-06-07 09:43:42 | 浏览次数:4414
2024-06-06 11:53:58 | 浏览次数:4336
2024-06-05 09:04:43 | 浏览次数:4407
2024-06-04 10:05:19 | 浏览次数:4372
2024-06-02 09:29:14 | 浏览次数:4406
2024-06-01 11:40:17 | 浏览次数:4283
2024-05-31 11:56:29 | 浏览次数:4511
2024-05-30 10:40:05 | 浏览次数:4336
2024-05-29 11:58:12 | 浏览次数:4540
2024-05-29 11:04:56 | 浏览次数:4330
2024-05-28 10:02:35 | 浏览次数:4251
2024-05-26 09:26:04 | 浏览次数:4241
2024-05-25 10:49:20 | 浏览次数:4533
2024-05-24 10:57:10 | 浏览次数:4331
2024-05-23 11:28:52 | 浏览次数:4387
2024-05-22 11:34:43 | 浏览次数:4220
2024-05-21 10:18:17 | 浏览次数:4340
2024-05-19 09:48:31 | 浏览次数:4381
2024-05-18 10:00:27 | 浏览次数:4443
2024-05-17 11:16:23 | 浏览次数:4173
2024-05-16 09:17:01 | 浏览次数:4365
2024-05-15 09:41:22 | 浏览次数:4136
2024-05-14 09:40:06 | 浏览次数:4266
2024-05-13 10:14:34 | 浏览次数:4335
2024-05-12 09:30:28 | 浏览次数:4230
2024-05-11 09:55:02 | 浏览次数:4304
2024-05-10 10:21:22 | 浏览次数:4525
2024-05-09 11:13:03 | 浏览次数:4409
2024-05-05 10:33:09 | 浏览次数:4439
2024-05-03 09:40:35 | 浏览次数:4506
2024-05-02 09:38:06 | 浏览次数:4553
2024-05-01 09:19:44 | 浏览次数:4386
2024-04-30 10:25:45 | 浏览次数:4491
2024-04-29 09:28:47 | 浏览次数:4347
2024-04-28 09:48:24 | 浏览次数:5195
2024-04-27 10:08:17 | 浏览次数:4459
2024-04-26 10:06:29 | 浏览次数:4461
2024-04-25 11:36:13 | 浏览次数:4328
2024-04-24 09:49:00 | 浏览次数:4437
2024-04-23 10:21:12 | 浏览次数:4286
2024-04-21 11:36:25 | 浏览次数:4325
2024-04-20 11:04:03 | 浏览次数:4260
2024-04-19 09:30:17 | 浏览次数:4289
2024-04-18 09:06:15 | 浏览次数:4244
2024-04-17 09:19:40 | 浏览次数:4346
2024-04-16 09:26:39 | 浏览次数:4266
2024-04-14 10:27:39 | 浏览次数:4482
2024-04-13 09:50:52 | 浏览次数:4587
2024-04-12 09:00:57 | 浏览次数:4701
2024-04-11 09:22:52 | 浏览次数:4657
2024-04-10 08:54:01 | 浏览次数:4706
2024-04-09 13:45:07 | 浏览次数:4607
2024-04-07 10:57:42 | 浏览次数:4563
2024-04-06 11:03:10 | 浏览次数:4789
2024-04-05 11:54:46 | 浏览次数:4611
2024-04-04 14:16:50 | 浏览次数:4561
2024-04-03 11:18:34 | 浏览次数:4923
2024-04-02 10:59:09 | 浏览次数:4550
2024-03-31 13:08:07 | 浏览次数:4795
2024-03-30 16:17:41 | 浏览次数:4756
2024-03-29 11:19:27 | 浏览次数:4663
2024-03-28 11:00:52 | 浏览次数:4569
2024-03-27 10:22:00 | 浏览次数:4678
2024-03-26 10:33:06 | 浏览次数:4724
2024-03-24 09:34:19 | 浏览次数:4576
2024-03-23 10:21:54 | 浏览次数:5205
2024-03-22 09:24:35 | 浏览次数:4667
2024-03-21 09:13:57 | 浏览次数:4977
2024-03-20 09:55:01 | 浏览次数:4777
2024-03-19 10:15:02 | 浏览次数:4659
2024-03-17 10:14:12 | 浏览次数:4563
2024-03-16 09:10:03 | 浏览次数:5031
2024-03-15 09:36:33 | 浏览次数:4852
2024-03-14 09:34:09 | 浏览次数:4863
2024-03-13 14:02:21 | 浏览次数:4781
2024-03-12 11:39:51 | 浏览次数:4961
2024-03-10 09:33:04 | 浏览次数:4815
2024-03-09 10:17:30 | 浏览次数:4948
2024-03-08 11:23:44 | 浏览次数:4920
2024-03-07 09:50:17 | 浏览次数:4727
2024-03-06 14:14:07 | 浏览次数:4814
2024-03-05 11:50:06 | 浏览次数:4885
2024-03-03 10:27:26 | 浏览次数:4970
2024-03-02 09:58:29 | 浏览次数:4748
2024-03-01 10:22:55 | 浏览次数:4708
2024-02-29 12:16:03 | 浏览次数:4897
2024-02-28 09:04:32 | 浏览次数:5041
2024-02-27 10:47:09 | 浏览次数:5011
2024-02-25 10:26:32 | 浏览次数:4994
2024-02-24 11:28:07 | 浏览次数:4983
2024-02-23 09:15:58 | 浏览次数:5192
2024-02-22 09:50:35 | 浏览次数:4968
2024-02-21 09:52:03 | 浏览次数:4959
2024-02-20 09:44:47 | 浏览次数:5022
2024-02-19 10:30:18 | 浏览次数:4930
2024-02-18 13:37:57 | 浏览次数:4979
2024-01-10 09:06:30 | 浏览次数:5462
2024-01-09 11:37:29 | 浏览次数:5323
2024-01-07 10:57:31 | 浏览次数:5620
2024-01-06 11:07:28 | 浏览次数:5579
2024-01-05 14:56:45 | 浏览次数:5604
2024-01-04 14:52:23 | 浏览次数:5687
2024-01-03 09:23:23 | 浏览次数:5749
2024-01-02 09:43:09 | 浏览次数:5541
2023-12-31 09:51:00 | 浏览次数:5699
2023-12-30 11:33:24 | 浏览次数:5466
2023-12-29 09:18:51 | 浏览次数:5597
2023-12-28 09:50:10 | 浏览次数:5711
2023-12-27 11:20:39 | 浏览次数:5841
2023-12-26 08:54:38 | 浏览次数:5892
2023-12-24 11:01:27 | 浏览次数:5538
2023-12-23 11:09:04 | 浏览次数:5626
2023-12-22 08:59:40 | 浏览次数:5479
2023-12-21 09:30:10 | 浏览次数:5429
2023-12-20 10:26:16 | 浏览次数:6156
2023-12-19 10:28:29 | 浏览次数:5833
2023-12-17 09:54:08 | 浏览次数:5731
2023-12-16 10:19:04 | 浏览次数:5561
2023-12-14 09:22:54 | 浏览次数:5683
2023-12-13 11:06:28 | 浏览次数:5749
2023-12-12 09:33:56 | 浏览次数:5749
2023-12-10 09:37:18 | 浏览次数:5823
2023-12-09 10:42:03 | 浏览次数:5908
2023-12-08 09:35:06 | 浏览次数:5705
2023-12-07 09:22:40 | 浏览次数:5894
2023-12-06 09:55:11 | 浏览次数:5740
2023-12-05 10:00:25 | 浏览次数:5644
2023-12-03 10:35:31 | 浏览次数:5727
2023-12-02 10:49:43 | 浏览次数:5793
2023-12-01 10:12:34 | 浏览次数:5902
2023-11-30 10:12:03 | 浏览次数:5615
2023-11-29 10:29:51 | 浏览次数:5876
2023-11-28 09:44:42 | 浏览次数:5796
2023-11-26 09:24:27 | 浏览次数:5837
2023-11-25 10:36:55 | 浏览次数:5952
2023-11-24 09:43:58 | 浏览次数:5914
2023-11-23 09:54:45 | 浏览次数:5887
2023-11-22 10:52:53 | 浏览次数:5790
2023-11-21 10:33:45 | 浏览次数:5865
2023-11-19 10:41:42 | 浏览次数:5929
2023-11-17 09:59:35 | 浏览次数:5897
2023-11-16 09:22:27 | 浏览次数:5879
2023-11-15 09:20:56 | 浏览次数:5999
2023-11-14 09:39:10 | 浏览次数:5943
2023-11-12 09:33:58 | 浏览次数:6064
2023-11-11 10:02:50 | 浏览次数:6062
2023-11-10 10:25:30 | 浏览次数:5989
2023-11-09 14:28:21 | 浏览次数:6583
2023-11-08 10:21:14 | 浏览次数:6044
2023-11-07 09:36:24 | 浏览次数:5956
2023-11-05 10:05:27 | 浏览次数:6021
2023-11-04 10:13:06 | 浏览次数:5874
2023-11-03 09:49:02 | 浏览次数:5632
2023-11-02 10:16:48 | 浏览次数:5768
2023-11-01 09:26:21 | 浏览次数:6143
2023-10-31 09:21:55 | 浏览次数:6004
2023-10-30 10:29:22 | 浏览次数:5860
2023-10-29 09:51:10 | 浏览次数:6002
2023-10-28 10:19:45 | 浏览次数:5998
2023-10-27 10:17:50 | 浏览次数:5769
2023-10-26 10:52:26 | 浏览次数:6121
2023-10-25 09:54:51 | 浏览次数:5782
2023-10-24 09:32:35 | 浏览次数:6111
2023-10-22 10:17:22 | 浏览次数:5853
2023-10-21 11:09:08 | 浏览次数:6207
2023-10-19 10:15:02 | 浏览次数:6282
2023-10-18 11:12:40 | 浏览次数:6010
2023-10-17 16:03:41 | 浏览次数:6089
2023-10-15 09:56:39 | 浏览次数:6188
2023-10-13 10:02:39 | 浏览次数:6132
2023-10-12 09:47:07 | 浏览次数:6313
2023-10-08 10:57:06 | 浏览次数:6292
2023-10-07 11:24:37 | 浏览次数:6745
2023-10-06 09:45:31 | 浏览次数:6395
2023-10-04 09:39:33 | 浏览次数:6843
2023-10-03 09:56:05 | 浏览次数:6375
2023-10-02 10:39:02 | 浏览次数:6123
2023-10-01 10:58:01 | 浏览次数:6239
2023-09-29 09:53:57 | 浏览次数:6219
2023-09-28 10:17:27 | 浏览次数:6438
2023-09-27 10:01:58 | 浏览次数:6187
2023-09-26 09:45:49 | 浏览次数:6187
2023-09-24 10:47:48 | 浏览次数:6369
2023-09-23 10:33:39 | 浏览次数:6243
2023-09-22 09:45:23 | 浏览次数:6280
2023-09-21 10:22:06 | 浏览次数:6512
2023-09-20 09:50:18 | 浏览次数:6412
2023-09-19 10:40:45 | 浏览次数:6277
2023-09-17 10:58:05 | 浏览次数:6285
2023-09-16 10:08:45 | 浏览次数:7563
2023-09-15 09:25:18 | 浏览次数:6799
2023-09-14 09:21:02 | 浏览次数:7111
2023-09-13 09:16:04 | 浏览次数:7171
2023-09-12 09:20:02 | 浏览次数:6725
2023-09-10 09:54:45 | 浏览次数:6611
2023-09-09 09:44:24 | 浏览次数:7728
2023-09-08 10:14:42 | 浏览次数:6737
2023-09-07 10:47:08 | 浏览次数:7858
2023-09-06 14:55:38 | 浏览次数:6653
2023-09-05 09:11:33 | 浏览次数:7148
2023-09-03 09:47:22 | 浏览次数:6529
2023-09-02 09:40:35 | 浏览次数:7805
2023-08-31 09:16:47 | 浏览次数:6730
2023-08-30 09:26:20 | 浏览次数:7758
2023-08-29 09:26:28 | 浏览次数:7646
2023-08-26 10:22:19 | 浏览次数:7400
2023-08-25 11:01:35 | 浏览次数:7899
2023-08-24 09:23:46 | 浏览次数:6966
2023-08-22 09:41:58 | 浏览次数:6534
2023-08-19 09:32:57 | 浏览次数:6644
2023-08-17 10:23:57 | 浏览次数:8078
2023-08-13 10:22:35 | 浏览次数:6418
2023-08-12 10:43:31 | 浏览次数:6484
2023-08-10 09:37:04 | 浏览次数:7518
2023-08-09 16:50:53 | 浏览次数:7031
2023-08-08 09:23:49 | 浏览次数:6974
2023-08-05 09:50:43 | 浏览次数:7396
2023-08-04 09:52:37 | 浏览次数:10925
2023-08-02 09:43:47 | 浏览次数:6718
2023-08-01 09:38:06 | 浏览次数:8142
2023-07-31 10:52:46 | 浏览次数:7163
2023-07-30 09:56:26 | 浏览次数:7951
2023-07-29 10:41:05 | 浏览次数:7328
2023-07-27 09:46:00 | 浏览次数:7960
2023-07-26 10:03:14 | 浏览次数:6687
2023-07-25 09:24:34 | 浏览次数:7234
2023-07-23 09:58:19 | 浏览次数:7356
2023-07-22 10:24:35 | 浏览次数:8049
2023-07-21 09:26:36 | 浏览次数:8019
2023-07-20 09:20:24 | 浏览次数:8184
2023-07-19 09:08:55 | 浏览次数:7970
2023-07-18 09:29:34 | 浏览次数:7931
2023-07-14 09:41:41 | 浏览次数:8086
2023-07-13 10:56:39 | 浏览次数:7466
2023-07-11 10:06:46 | 浏览次数:7438
2023-07-09 10:22:05 | 浏览次数:7593
2023-07-07 09:30:18 | 浏览次数:7500
2023-07-06 09:42:15 | 浏览次数:7113
2023-07-01 10:02:28 | 浏览次数:7539
2023-06-30 09:40:23 | 浏览次数:7983
2023-06-29 10:09:54 | 浏览次数:8839
2023-06-28 10:01:42 | 浏览次数:8389
2023-06-27 09:52:00 | 浏览次数:8198
2023-06-25 11:07:20 | 浏览次数:8145
2023-06-24 10:06:31 | 浏览次数:7867
2023-06-23 09:53:43 | 浏览次数:8533
2023-06-18 11:12:08 | 浏览次数:8672
2023-06-17 10:28:55 | 浏览次数:8803
2023-06-16 09:07:45 | 浏览次数:7909
2023-06-15 09:08:54 | 浏览次数:8414
2023-06-13 11:49:03 | 浏览次数:8269
2023-06-11 10:10:07 | 浏览次数:8525
2023-06-08 09:18:40 | 浏览次数:8527
2023-06-07 16:26:36 | 浏览次数:8407
2023-06-06 10:03:35 | 浏览次数:7801
2023-06-04 09:44:19 | 浏览次数:8463
2023-06-03 10:08:29 | 浏览次数:8212
2023-06-02 09:34:56 | 浏览次数:7721
2023-06-01 09:11:27 | 浏览次数:8028
2023-05-31 09:31:05 | 浏览次数:8449
2023-05-30 10:04:18 | 浏览次数:7222
2023-05-28 10:07:21 | 浏览次数:7515
2023-05-27 10:07:12 | 浏览次数:7294
2023-05-26 11:08:06 | 浏览次数:7951
2023-05-23 09:58:25 | 浏览次数:7987
2023-05-21 09:35:12 | 浏览次数:8327
2023-05-20 10:20:39 | 浏览次数:8017
2023-05-19 09:45:17 | 浏览次数:7339
2023-05-18 13:26:28 | 浏览次数:7596
2023-05-17 09:10:46 | 浏览次数:7636
2023-05-16 08:57:00 | 浏览次数:8016
2023-05-14 09:30:21 | 浏览次数:8839
2023-05-13 09:23:39 | 浏览次数:8059
2023-05-12 09:39:17 | 浏览次数:7353
2023-05-11 08:43:37 | 浏览次数:7299
2023-05-10 15:03:36 | 浏览次数:7886
2023-05-10 09:17:53 | 浏览次数:8468
2023-05-09 09:09:41 | 浏览次数:7958
2023-05-08 15:28:04 | 浏览次数:7365
2023-05-07 09:31:17 | 浏览次数:7925
2023-05-06 09:29:59 | 浏览次数:7584
2021-03-23 14:10:00 | 浏览次数:10499
2021-03-23 13:23:09 | 浏览次数:10240
2021-03-20 14:51:01 | 浏览次数:11192
2021-03-18 15:21:51 | 浏览次数:10188
2021-03-16 11:52:08 | 浏览次数:9807
2021-03-16 10:32:31 | 浏览次数:9865
2021-03-13 16:56:25 | 浏览次数:10035
2021-03-11 16:39:18 | 浏览次数:10018
2021-03-11 14:20:28 | 浏览次数:9757
2021-03-07 14:23:46 | 浏览次数:9934
2021-03-06 14:58:00 | 浏览次数:10015
2020-11-27 10:25:11 | 浏览次数:10769
2020-11-25 16:04:28 | 浏览次数:10456
2020-11-17 15:49:08 | 浏览次数:10424
2020-11-17 15:11:53 | 浏览次数:10436
2020-11-17 14:55:08 | 浏览次数:10711
2020-10-31 00:11:25 | 浏览次数:10747
2020-09-20 14:06:54 | 浏览次数:10624
2019-12-04 10:24:17 | 浏览次数:15989
2019-11-20 16:30:56 | 浏览次数:11573
2019-10-07 17:26:12 | 浏览次数:14781
2019-10-06 13:28:44 | 浏览次数:11584
2019-09-10 15:34:35 | 浏览次数:11488
2019-06-07 14:43:20 | 浏览次数:12086
2019-05-31 15:01:23 | 浏览次数:11809
2019-05-18 15:47:29 | 浏览次数:13337
2019-03-28 11:24:29 | 浏览次数:11883
2018-12-01 11:02:07 | 浏览次数:12728
2018-11-08 13:56:32 | 浏览次数:18859
2018-10-21 08:48:23 | 浏览次数:15992