立即预约
免费定制整装家居
一站置家 全程无忧 一省到底
既然是婚房首先考虑最多就是环保问题,装修是一个耗费脑力、体力,考验耐心的过程,如果一不小心,就会让业主吃力不讨好,花钱了事还没办好。选择一个专业又省心的装修公司是业主朋友要考虑的第一件大事。林凤装饰今天就为业主朋友们讲一讲,怎样选择一个省心又省钱的装修公司?
既然是婚房装修,要考虑到整体设计:

首先考虑未来婚后有了孩子的家庭,要考虑到孩子的相关问题,尤其水电方面涉及到备用插座、儿童洗衣机插座、瓦工要考虑是否全屋通铺地板、木工要考虑到吊棚的高低、油工要考虑到乳胶漆什么品牌,是否环保等。再说到后期家具问题要考虑到孩子的婴儿床材料是否环保、儿童洗衣机位置摆放问题、家具款式尽量选择布艺居多带圆角有弧度儿童不易磕碰,还有最重要的一点就是装修婚房投入的的预算多少等等!
既然有这么多的装修顾虑,那么找一个靠谱的装修公司和设计师是很重要的!
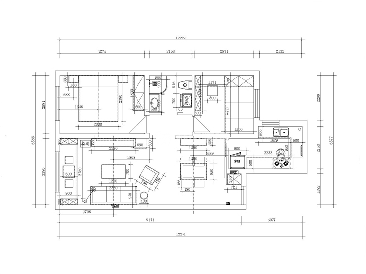
下面可以欣赏一些设计师作品:
在选择装修公司之前要看的是:
1. 装修公司的口碑
在选择装修公司时,首先要考察装修公司在当地的知名度,有时间的最好可以亲自去走走家装市场,能亲自去现场考察的是最好的,了解一下之前曾经做过的装修案例。
2. 装修公司的规模
在看装修公司的同时,也要了解装修公司在本市的规模大小,是连锁还是私人,同时看公司是否有营业执照,是否可以出具票据等等。
3. 设计师的专业水平
一个好的有经验的设计师在装修中是一个很重要的事情,关系到家里的格局和物品的摆放以及后期的物品摆放。可以了解下设计师曾经做过的案例作品以及设计师的资历。设计师的谈吐和穿着也同样重要,一个设计师的着装和谈吐体现着他的内心世界。
4. 装修公司之前做过的工地
有条件的最好可以去公司工地现场看一下工地是否整洁,工人是否穿着固定工装,是否有偷工减料的行为,装修公司装修的基础也是固然重要的,很多基础水管电线都是看不见摸不着的,所以一定要找公司正规的,工人手法熟练的公司。
沈阳装修公司市场上形形色色的都有,根据自己的实际需求找符合自己家的装修公司,装修公司如何选择?每个公司都有自己的优势,各位业主朋友一定要擦亮双眼要多加对比之后再来选择哦~
2026-03-07 14:39:29 | 浏览次数:273
2026-02-28 17:10:52 | 浏览次数:328
2026-02-27 16:02:41 | 浏览次数:422
2026-02-26 17:06:34 | 浏览次数:375
2026-02-25 16:35:18 | 浏览次数:395
2026-02-24 17:28:55 | 浏览次数:376
2026-02-08 09:25:29 | 浏览次数:529
2026-02-05 16:57:20 | 浏览次数:549
2026-02-02 16:33:59 | 浏览次数:582
2026-02-01 10:26:50 | 浏览次数:610
2026-01-31 17:18:50 | 浏览次数:641
2026-01-29 16:47:07 | 浏览次数:635
2026-01-28 10:30:32 | 浏览次数:619
2026-01-27 16:06:55 | 浏览次数:629
2026-01-25 14:52:18 | 浏览次数:761
2026-01-24 15:28:45 | 浏览次数:696
2026-01-23 09:57:17 | 浏览次数:598
2026-01-22 09:45:51 | 浏览次数:668
2026-01-21 16:31:49 | 浏览次数:661
2026-01-20 16:48:01 | 浏览次数:628
2026-01-18 15:07:26 | 浏览次数:688
2026-01-17 16:49:29 | 浏览次数:644
2026-01-16 16:56:27 | 浏览次数:642
2026-01-14 15:32:43 | 浏览次数:623
2026-01-13 14:20:41 | 浏览次数:844
2026-01-11 13:59:36 | 浏览次数:783
2026-01-10 09:30:19 | 浏览次数:757
2026-01-09 10:21:59 | 浏览次数:955
2026-01-08 16:20:41 | 浏览次数:732
2026-01-07 09:31:25 | 浏览次数:814
2026-01-06 16:34:08 | 浏览次数:789
2026-01-04 10:40:41 | 浏览次数:844
2026-01-03 15:03:20 | 浏览次数:932
2026-01-02 16:58:37 | 浏览次数:829
2025-12-31 11:03:08 | 浏览次数:1025
2025-12-30 13:35:19 | 浏览次数:900
2025-12-29 10:38:58 | 浏览次数:919
2025-12-28 16:28:29 | 浏览次数:980
2025-12-27 15:31:11 | 浏览次数:928
2025-12-26 16:06:04 | 浏览次数:1013
2025-12-25 11:37:22 | 浏览次数:1142
2025-12-24 10:33:54 | 浏览次数:1057
2025-12-23 16:52:26 | 浏览次数:1013
2025-12-21 09:51:53 | 浏览次数:1010
2025-12-20 15:17:47 | 浏览次数:972
2025-12-19 16:28:25 | 浏览次数:1093
2025-12-18 16:46:55 | 浏览次数:1022
2025-12-17 10:08:28 | 浏览次数:1341
2025-12-16 15:19:16 | 浏览次数:1124
2025-12-14 11:34:12 | 浏览次数:1070
2025-12-13 16:10:23 | 浏览次数:1116
2025-12-11 14:15:40 | 浏览次数:1064
2025-12-10 16:30:57 | 浏览次数:1152
2025-12-09 15:48:50 | 浏览次数:1203
2025-12-07 15:06:17 | 浏览次数:1110
2025-12-06 10:19:53 | 浏览次数:992
2025-12-05 11:09:51 | 浏览次数:993
2025-12-04 16:24:49 | 浏览次数:1120
2025-12-03 16:29:06 | 浏览次数:935
2025-12-02 11:32:59 | 浏览次数:1045
2025-11-30 11:14:22 | 浏览次数:991
2025-11-29 16:10:33 | 浏览次数:988
2025-11-28 16:27:35 | 浏览次数:1267
2025-11-27 16:59:59 | 浏览次数:1028
2025-11-26 16:03:41 | 浏览次数:962
2025-11-25 16:25:40 | 浏览次数:1047
2025-11-23 11:08:56 | 浏览次数:1125
2025-11-22 16:50:53 | 浏览次数:1137
2025-11-21 13:40:40 | 浏览次数:1116
2025-11-20 10:13:24 | 浏览次数:1228
2025-11-19 15:03:18 | 浏览次数:1140
2025-11-18 15:29:16 | 浏览次数:1159
2025-11-16 10:45:00 | 浏览次数:1196
2025-11-15 16:29:08 | 浏览次数:1332
2025-11-14 16:31:13 | 浏览次数:1169
2025-11-13 16:59:57 | 浏览次数:1201
2025-11-12 16:36:18 | 浏览次数:1262
2025-11-09 10:20:31 | 浏览次数:1351
2025-11-08 10:44:56 | 浏览次数:1182
2025-11-07 15:23:52 | 浏览次数:1232
2025-11-06 16:10:25 | 浏览次数:1220
2025-11-05 10:30:03 | 浏览次数:1267
2025-11-04 11:23:07 | 浏览次数:1327
2025-11-02 16:11:15 | 浏览次数:1256
2025-11-01 16:19:20 | 浏览次数:1280
2025-10-31 09:16:58 | 浏览次数:1280
2025-10-30 10:32:28 | 浏览次数:1260
2025-10-29 16:09:09 | 浏览次数:1204
2025-10-28 16:22:48 | 浏览次数:1219
2025-10-26 10:19:39 | 浏览次数:1298
2025-10-25 16:11:14 | 浏览次数:1358
2025-10-24 15:28:42 | 浏览次数:1341
2025-10-23 10:40:33 | 浏览次数:1330
2025-10-22 14:52:12 | 浏览次数:1175
2025-10-21 16:43:25 | 浏览次数:1243
2025-10-19 12:34:45 | 浏览次数:1234
2025-10-17 14:35:23 | 浏览次数:1315
2025-10-16 10:57:27 | 浏览次数:1275
2025-10-15 12:25:26 | 浏览次数:1235
2025-10-12 14:06:26 | 浏览次数:1389
2025-10-11 09:51:02 | 浏览次数:1466
2025-10-10 15:15:08 | 浏览次数:1486
2025-10-09 16:32:40 | 浏览次数:1609
2025-10-08 14:45:02 | 浏览次数:1459
2025-10-07 17:07:28 | 浏览次数:1477
2025-10-06 13:19:04 | 浏览次数:1450
2025-10-05 13:47:19 | 浏览次数:1505
2025-10-02 15:01:32 | 浏览次数:1510
2025-10-01 15:51:24 | 浏览次数:1547
2025-09-30 09:37:29 | 浏览次数:1590
2025-09-29 16:34:57 | 浏览次数:1621
2025-09-27 16:43:36 | 浏览次数:1641
2025-09-26 11:03:39 | 浏览次数:1753
2025-09-25 10:26:55 | 浏览次数:1577
2025-09-24 15:17:39 | 浏览次数:1726
2025-09-23 10:00:33 | 浏览次数:1888
2025-09-21 14:19:19 | 浏览次数:1835
2025-09-20 15:09:15 | 浏览次数:1781
2025-09-19 15:51:53 | 浏览次数:1887
2025-09-18 14:49:34 | 浏览次数:1687
2025-09-17 16:47:52 | 浏览次数:1703
2025-09-16 16:35:07 | 浏览次数:2085
2025-09-14 14:59:51 | 浏览次数:1857
2025-09-13 17:04:32 | 浏览次数:1796
2025-09-12 09:35:24 | 浏览次数:1970
2025-09-11 15:46:23 | 浏览次数:1920
2025-09-10 13:58:02 | 浏览次数:2003
2025-09-09 16:48:23 | 浏览次数:2025
2025-09-07 11:44:11 | 浏览次数:2042
2025-09-06 09:43:11 | 浏览次数:2016
2025-09-05 09:51:41 | 浏览次数:1939
2025-09-04 17:08:16 | 浏览次数:2220
2025-09-03 16:42:34 | 浏览次数:2119
2025-09-02 14:35:40 | 浏览次数:2025
2025-08-31 09:42:38 | 浏览次数:2025
2025-08-30 17:10:52 | 浏览次数:2020
2025-08-29 16:56:07 | 浏览次数:2253
2025-08-28 16:10:50 | 浏览次数:1962
2025-08-27 15:11:21 | 浏览次数:2052
2025-08-26 16:13:37 | 浏览次数:1983
2025-08-24 10:34:05 | 浏览次数:2119
2025-08-23 16:22:41 | 浏览次数:2011
2025-08-22 09:54:07 | 浏览次数:1915
2025-08-21 15:44:53 | 浏览次数:1785
2025-08-20 10:30:48 | 浏览次数:1901
2025-08-19 15:26:24 | 浏览次数:1890
2025-08-17 09:38:31 | 浏览次数:1992
2025-08-16 09:17:41 | 浏览次数:1983
2025-08-15 16:16:38 | 浏览次数:1925
2025-08-14 15:11:15 | 浏览次数:1992
2025-08-13 11:16:39 | 浏览次数:1950
2025-08-12 16:40:13 | 浏览次数:1910
2025-08-10 11:51:34 | 浏览次数:2242
2025-08-09 15:23:47 | 浏览次数:2369
2025-08-08 17:05:56 | 浏览次数:2253
2025-08-07 14:22:25 | 浏览次数:2228
2025-08-06 16:11:50 | 浏览次数:2216
2025-08-05 16:24:45 | 浏览次数:2171
2025-08-03 16:42:11 | 浏览次数:2132
2025-08-02 16:52:53 | 浏览次数:2164
2025-08-01 12:33:16 | 浏览次数:2130
2025-07-31 13:52:41 | 浏览次数:2195
2025-07-30 14:25:27 | 浏览次数:2318
2025-07-29 14:53:02 | 浏览次数:2216
2025-07-27 10:22:56 | 浏览次数:2016
2025-07-26 10:32:01 | 浏览次数:2098
2025-07-25 11:25:50 | 浏览次数:2336
2025-07-24 14:06:45 | 浏览次数:2190
2025-07-23 10:12:49 | 浏览次数:2063
2025-07-22 15:40:09 | 浏览次数:2001
2025-07-20 10:09:20 | 浏览次数:2017
2025-07-19 12:38:59 | 浏览次数:1981
2025-07-18 16:29:46 | 浏览次数:1972
2025-07-17 10:16:42 | 浏览次数:2182
2025-07-16 10:45:54 | 浏览次数:2410
2025-07-15 15:35:01 | 浏览次数:2133
2025-07-13 10:07:41 | 浏览次数:1933
2025-07-12 16:51:37 | 浏览次数:2196
2025-07-11 16:37:32 | 浏览次数:2177
2025-07-10 16:47:48 | 浏览次数:2202
2025-07-09 15:34:09 | 浏览次数:2134
2025-07-08 15:52:37 | 浏览次数:2224
2025-07-06 10:40:32 | 浏览次数:2418
2025-07-05 17:15:15 | 浏览次数:2233
2025-07-04 09:49:17 | 浏览次数:2148
2025-07-03 16:41:12 | 浏览次数:2299
2025-07-02 15:50:42 | 浏览次数:2174
2025-07-01 12:31:53 | 浏览次数:2028
2025-06-30 16:27:08 | 浏览次数:2054
2025-06-29 09:55:37 | 浏览次数:2234
2025-06-28 16:36:33 | 浏览次数:2268
2025-06-27 14:03:37 | 浏览次数:2359
2025-06-26 16:06:22 | 浏览次数:2147
2025-06-24 15:26:00 | 浏览次数:2374
2025-06-22 10:00:14 | 浏览次数:2975
2025-06-21 10:08:40 | 浏览次数:2529
2025-06-20 14:52:47 | 浏览次数:2407
2025-06-19 16:36:24 | 浏览次数:2595
2025-06-18 15:44:05 | 浏览次数:2403
2025-06-13 11:33:04 | 浏览次数:2354
2025-06-12 16:01:19 | 浏览次数:2496
2025-06-11 15:19:21 | 浏览次数:2407
2025-06-10 16:40:08 | 浏览次数:2505
2025-06-08 14:39:12 | 浏览次数:2350
2025-06-07 15:14:59 | 浏览次数:2544
2025-06-06 16:03:43 | 浏览次数:2273
2025-06-05 16:03:53 | 浏览次数:2338
2025-06-04 16:33:15 | 浏览次数:2522
2025-06-02 14:16:04 | 浏览次数:2294
2025-06-01 09:05:36 | 浏览次数:2519
2025-05-31 14:26:35 | 浏览次数:2453
2025-05-30 16:37:51 | 浏览次数:2150
2025-05-29 16:24:51 | 浏览次数:2391
2025-05-28 14:38:54 | 浏览次数:2247
2025-05-27 16:09:59 | 浏览次数:2343
2025-05-25 11:41:11 | 浏览次数:2439
2025-05-24 15:50:28 | 浏览次数:2272
2025-05-23 16:50:58 | 浏览次数:2252
2025-05-22 11:28:42 | 浏览次数:2409
2025-05-21 16:25:34 | 浏览次数:2260
2025-05-20 16:07:22 | 浏览次数:2241
2025-05-18 11:08:06 | 浏览次数:2344
2025-05-17 16:44:37 | 浏览次数:2432
2025-05-16 16:18:03 | 浏览次数:2498
2025-05-15 15:18:00 | 浏览次数:3020
2025-05-14 15:38:10 | 浏览次数:2364
2025-05-13 14:27:50 | 浏览次数:2169
2025-05-11 10:14:30 | 浏览次数:2438
2025-05-10 16:59:04 | 浏览次数:2406
2025-05-09 15:20:33 | 浏览次数:2367
2025-05-08 15:18:03 | 浏览次数:2797
2025-05-05 15:44:43 | 浏览次数:2601
2025-05-04 15:22:31 | 浏览次数:2838
2025-05-03 16:12:37 | 浏览次数:2414
2025-05-02 15:32:47 | 浏览次数:2671
2025-05-01 16:09:56 | 浏览次数:2562
2025-04-30 13:29:34 | 浏览次数:2532
2025-04-25 11:56:45 | 浏览次数:2600
2025-04-24 15:18:22 | 浏览次数:2557
2025-04-23 15:24:21 | 浏览次数:2578
2025-04-22 16:36:31 | 浏览次数:2429
2025-04-20 10:16:19 | 浏览次数:2788
2025-04-19 14:10:59 | 浏览次数:2443
2025-04-18 15:37:43 | 浏览次数:2817
2025-04-17 14:54:29 | 浏览次数:2491
2025-04-16 15:36:16 | 浏览次数:2551
2025-04-15 11:33:47 | 浏览次数:2486
2025-04-13 10:17:57 | 浏览次数:2544
2025-04-12 09:46:39 | 浏览次数:3003
2025-04-11 15:15:06 | 浏览次数:2569
2025-04-10 15:23:21 | 浏览次数:2746
2025-04-09 15:36:16 | 浏览次数:2498
2025-04-08 14:07:17 | 浏览次数:2503
2025-04-06 10:00:17 | 浏览次数:2923
2025-04-05 16:11:40 | 浏览次数:2732
2025-04-04 16:27:40 | 浏览次数:2753
2025-04-03 15:32:16 | 浏览次数:2518
2025-04-02 14:47:40 | 浏览次数:3251
2025-04-01 11:02:10 | 浏览次数:2764
2025-03-31 14:45:43 | 浏览次数:2897
2025-03-30 11:40:27 | 浏览次数:2931
2025-03-29 16:01:08 | 浏览次数:3009
2025-03-28 16:46:53 | 浏览次数:2860
2025-03-27 16:24:49 | 浏览次数:2802
2025-03-26 15:11:15 | 浏览次数:2903
2025-03-25 14:20:18 | 浏览次数:2763
2025-03-23 10:27:52 | 浏览次数:3153
2025-03-22 14:30:31 | 浏览次数:2861
2025-03-21 15:03:22 | 浏览次数:2670
2025-03-20 10:31:21 | 浏览次数:2894
2025-03-19 16:20:32 | 浏览次数:2993
2025-03-18 15:31:40 | 浏览次数:2969
2025-03-16 09:38:53 | 浏览次数:2903
2025-03-15 10:47:41 | 浏览次数:2844
2025-03-14 16:17:20 | 浏览次数:2955
2025-03-13 14:54:41 | 浏览次数:2918
2025-03-12 15:55:07 | 浏览次数:2710
2025-03-11 16:33:55 | 浏览次数:2951
2025-03-09 10:40:41 | 浏览次数:2864
2025-03-08 16:30:36 | 浏览次数:3004
2025-03-07 16:18:36 | 浏览次数:2842
2025-03-06 16:13:33 | 浏览次数:2820
2025-03-05 15:40:13 | 浏览次数:3137
2025-03-03 15:08:44 | 浏览次数:2939
2025-03-02 10:13:25 | 浏览次数:3165
2025-03-01 09:59:10 | 浏览次数:3024
2025-02-28 10:23:39 | 浏览次数:3067
2025-02-27 16:01:34 | 浏览次数:2853
2025-02-26 14:18:40 | 浏览次数:3079
2025-02-25 15:25:22 | 浏览次数:3023
2025-02-23 10:08:49 | 浏览次数:2957
2025-02-22 15:47:47 | 浏览次数:2885
2025-02-21 15:32:49 | 浏览次数:2842
2025-02-20 14:55:50 | 浏览次数:2860
2025-02-19 14:13:22 | 浏览次数:2962
2025-02-18 11:25:27 | 浏览次数:3073
2025-02-16 09:30:24 | 浏览次数:2945
2025-02-15 16:06:27 | 浏览次数:2969
2025-02-14 15:02:39 | 浏览次数:3093
2025-02-12 14:01:16 | 浏览次数:3092
2025-02-11 10:34:08 | 浏览次数:3316
2025-02-09 10:15:04 | 浏览次数:2991
2025-02-08 09:55:57 | 浏览次数:3200
2025-02-07 14:29:39 | 浏览次数:3137
2025-01-21 11:47:41 | 浏览次数:3290
2025-01-19 15:29:54 | 浏览次数:3140
2025-01-18 17:01:49 | 浏览次数:3355
2025-01-17 14:07:21 | 浏览次数:3288
2025-01-16 09:22:42 | 浏览次数:3076
2025-01-15 16:45:18 | 浏览次数:3212
2025-01-14 10:18:46 | 浏览次数:3199
2025-01-12 16:35:25 | 浏览次数:3363
2025-01-11 09:56:40 | 浏览次数:3095
2025-01-10 15:42:17 | 浏览次数:3522
2025-01-09 16:20:28 | 浏览次数:2971
2025-01-08 15:25:38 | 浏览次数:2920
2025-01-07 10:51:29 | 浏览次数:2932
2025-01-05 11:24:58 | 浏览次数:2865
2025-01-04 09:04:40 | 浏览次数:2951
2025-01-03 09:32:19 | 浏览次数:3243
2025-01-02 11:12:47 | 浏览次数:3003
2024-12-31 10:28:01 | 浏览次数:2979
2024-12-30 16:25:14 | 浏览次数:3767
2024-12-29 10:02:50 | 浏览次数:3153
2024-12-28 16:20:53 | 浏览次数:3065
2024-12-27 16:04:59 | 浏览次数:2981
2024-12-26 16:46:17 | 浏览次数:3442
2024-12-25 16:07:44 | 浏览次数:3051
2024-12-24 15:00:08 | 浏览次数:3121
2024-12-22 11:01:23 | 浏览次数:3189
2024-12-21 16:54:54 | 浏览次数:3017
2024-12-20 16:53:46 | 浏览次数:3336
2024-12-19 16:54:27 | 浏览次数:3211
2024-12-18 16:48:02 | 浏览次数:3446
2024-12-17 16:27:57 | 浏览次数:3391
2024-12-15 11:08:44 | 浏览次数:3387
2024-12-14 15:58:28 | 浏览次数:3044
2024-12-13 16:45:50 | 浏览次数:3155
2024-12-12 16:44:03 | 浏览次数:3190
2024-12-11 16:29:10 | 浏览次数:3287
2024-12-10 16:05:56 | 浏览次数:3456
2024-12-08 11:41:01 | 浏览次数:3334
2024-12-07 16:32:22 | 浏览次数:3454
2024-12-06 16:39:11 | 浏览次数:3255
2024-12-05 16:40:23 | 浏览次数:3231
2024-12-04 16:17:22 | 浏览次数:3158
2024-12-03 15:59:15 | 浏览次数:3173
2024-12-01 10:34:03 | 浏览次数:3427
2024-11-30 16:39:14 | 浏览次数:3355
2024-11-29 16:20:50 | 浏览次数:3359
2024-11-28 15:47:34 | 浏览次数:3145
2024-11-27 16:13:42 | 浏览次数:3181
2024-11-26 11:08:10 | 浏览次数:3269
2024-11-24 10:46:13 | 浏览次数:3146
2024-11-23 16:29:10 | 浏览次数:3115
2024-11-22 14:50:50 | 浏览次数:3241
2024-11-21 16:31:39 | 浏览次数:3233
2024-11-20 16:25:10 | 浏览次数:2984
2024-11-19 16:17:53 | 浏览次数:3088
2024-11-17 09:46:50 | 浏览次数:3083
2024-11-16 15:54:53 | 浏览次数:3108
2024-11-14 15:26:32 | 浏览次数:2958
2024-11-13 15:59:01 | 浏览次数:2996
2024-11-12 16:16:04 | 浏览次数:3237
2024-11-10 13:45:46 | 浏览次数:3073
2024-11-09 16:09:59 | 浏览次数:2916
2024-11-08 16:03:19 | 浏览次数:2962
2024-11-07 15:58:33 | 浏览次数:2950
2024-11-06 15:55:55 | 浏览次数:3036
2024-11-05 15:45:01 | 浏览次数:2914
2024-11-03 10:35:04 | 浏览次数:3134
2024-11-02 16:21:08 | 浏览次数:2972
2024-11-01 16:03:25 | 浏览次数:3506
2024-10-31 16:00:32 | 浏览次数:3282
2024-10-30 16:06:32 | 浏览次数:3344
2024-10-29 16:20:52 | 浏览次数:3463
2024-10-27 10:19:02 | 浏览次数:3620
2024-10-26 16:28:37 | 浏览次数:3310
2024-10-25 15:56:29 | 浏览次数:3463
2024-10-24 15:27:07 | 浏览次数:3375
2024-10-23 15:38:36 | 浏览次数:3302
2024-10-22 15:41:18 | 浏览次数:3298
2024-10-20 11:36:53 | 浏览次数:3340
2024-10-19 14:11:53 | 浏览次数:3315
2024-10-18 15:58:42 | 浏览次数:3387
2024-10-17 14:03:26 | 浏览次数:3357
2024-10-16 14:19:47 | 浏览次数:3110
2024-10-15 11:32:12 | 浏览次数:3088
2024-10-14 13:45:51 | 浏览次数:3210
2024-10-13 10:24:16 | 浏览次数:3227
2024-10-12 11:21:59 | 浏览次数:3215
2024-10-11 11:42:27 | 浏览次数:3321
2024-10-07 10:57:09 | 浏览次数:3213
2024-10-06 10:34:06 | 浏览次数:3282
2024-10-05 14:10:09 | 浏览次数:3458
2024-10-04 11:39:16 | 浏览次数:3642
2024-10-03 11:45:38 | 浏览次数:3215
2024-10-02 15:12:40 | 浏览次数:3611
2024-10-01 11:30:59 | 浏览次数:4510
2024-09-30 15:07:17 | 浏览次数:3339
2024-09-29 10:36:06 | 浏览次数:3493
2024-09-28 11:55:35 | 浏览次数:3327
2024-09-27 15:28:01 | 浏览次数:3401
2024-09-26 10:58:03 | 浏览次数:3592
2024-09-25 10:45:40 | 浏览次数:3433
2024-09-24 11:35:09 | 浏览次数:3488
2024-09-22 10:12:55 | 浏览次数:3356
2024-09-21 14:21:39 | 浏览次数:3647
2024-09-20 11:29:15 | 浏览次数:3534
2024-09-19 11:36:30 | 浏览次数:3484
2024-09-17 09:56:25 | 浏览次数:3866
2024-09-16 14:52:59 | 浏览次数:3846
2024-09-15 12:33:17 | 浏览次数:3768
2024-09-14 09:55:50 | 浏览次数:3826
2024-08-30 09:05:32 | 浏览次数:3765
2024-08-29 11:32:37 | 浏览次数:3624
2024-08-28 09:37:14 | 浏览次数:3576
2024-08-27 09:47:42 | 浏览次数:3547
2024-08-25 09:56:04 | 浏览次数:3570
2024-08-24 10:42:02 | 浏览次数:3643
2024-08-23 10:02:59 | 浏览次数:3360
2024-08-22 09:12:26 | 浏览次数:3443
2024-08-21 11:44:08 | 浏览次数:3333
2024-08-20 11:47:37 | 浏览次数:3442
2024-08-18 10:27:14 | 浏览次数:3315
2024-08-17 14:09:04 | 浏览次数:3641
2024-08-16 10:59:49 | 浏览次数:3378
2024-08-15 10:03:34 | 浏览次数:3429
2024-08-14 11:24:34 | 浏览次数:3404
2024-08-13 10:29:36 | 浏览次数:3337
2024-08-11 10:46:16 | 浏览次数:3355
2024-08-10 10:44:38 | 浏览次数:3659
2024-08-09 13:56:48 | 浏览次数:3625
2024-08-08 15:17:48 | 浏览次数:3758
2024-08-07 09:25:26 | 浏览次数:3601
2024-08-06 10:17:54 | 浏览次数:3556
2024-08-04 10:34:24 | 浏览次数:3679
2024-08-03 10:28:01 | 浏览次数:3665
2024-08-02 11:17:41 | 浏览次数:3686
2024-08-01 10:04:18 | 浏览次数:3643
2024-07-31 10:05:06 | 浏览次数:3470
2024-07-30 09:43:26 | 浏览次数:3518
2024-07-29 10:02:10 | 浏览次数:3790
2024-07-28 09:55:21 | 浏览次数:3735
2024-07-27 09:48:22 | 浏览次数:3526
2024-07-26 11:18:34 | 浏览次数:3727
2024-07-25 10:35:58 | 浏览次数:3873
2024-07-24 11:12:04 | 浏览次数:3726
2024-07-23 11:56:32 | 浏览次数:3760
2024-07-21 10:28:22 | 浏览次数:3671
2024-07-20 10:41:29 | 浏览次数:3829
2024-07-19 11:44:53 | 浏览次数:3860
2024-07-18 10:52:42 | 浏览次数:3818
2024-07-17 09:55:42 | 浏览次数:3713
2024-07-16 09:03:17 | 浏览次数:3766
2024-07-14 10:54:25 | 浏览次数:3922
2024-07-13 11:46:15 | 浏览次数:3853
2024-07-12 11:03:04 | 浏览次数:3939
2024-07-11 11:27:28 | 浏览次数:3744
2024-07-10 10:19:24 | 浏览次数:3893
2024-07-09 10:08:46 | 浏览次数:3902
2024-07-07 10:41:01 | 浏览次数:3962
2024-07-06 10:02:59 | 浏览次数:4017
2024-07-05 10:10:42 | 浏览次数:3951
2024-07-04 10:18:29 | 浏览次数:3828
2024-07-03 09:43:04 | 浏览次数:3970
2024-07-02 10:39:08 | 浏览次数:3956
2024-06-30 10:51:37 | 浏览次数:3935
2024-06-29 11:27:09 | 浏览次数:3911
2024-06-28 11:43:26 | 浏览次数:3826
2024-06-27 11:08:26 | 浏览次数:3892
2024-06-26 09:23:44 | 浏览次数:3977
2024-06-25 10:22:45 | 浏览次数:3940
2024-06-22 13:23:34 | 浏览次数:3982
2024-06-21 09:50:34 | 浏览次数:4050
2024-06-20 09:57:13 | 浏览次数:3885
2024-06-19 09:43:58 | 浏览次数:3714
2024-06-18 10:36:35 | 浏览次数:3645
2024-06-16 09:38:39 | 浏览次数:3771
2024-06-15 11:13:53 | 浏览次数:3935
2024-06-14 10:00:46 | 浏览次数:3799
2024-06-13 11:14:21 | 浏览次数:3819
2024-06-12 13:50:40 | 浏览次数:3888
2024-06-12 10:54:04 | 浏览次数:3831
2024-06-11 10:10:52 | 浏览次数:3868
2024-06-09 10:19:45 | 浏览次数:3989
2024-06-08 11:02:22 | 浏览次数:4031
2024-06-07 09:43:42 | 浏览次数:4086
2024-06-06 11:53:58 | 浏览次数:4030
2024-06-05 09:04:43 | 浏览次数:4063
2024-06-04 10:05:19 | 浏览次数:4062
2024-06-02 09:29:14 | 浏览次数:4077
2024-06-01 11:40:17 | 浏览次数:3976
2024-05-31 11:56:29 | 浏览次数:4199
2024-05-30 10:40:05 | 浏览次数:4011
2024-05-29 11:58:12 | 浏览次数:4229
2024-05-29 11:04:56 | 浏览次数:4009
2024-05-28 10:02:35 | 浏览次数:3955
2024-05-26 09:26:04 | 浏览次数:3906
2024-05-25 10:49:20 | 浏览次数:4230
2024-05-24 10:57:10 | 浏览次数:4023
2024-05-23 11:28:52 | 浏览次数:4081
2024-05-22 11:34:43 | 浏览次数:3900
2024-05-21 10:18:17 | 浏览次数:4050
2024-05-19 09:48:31 | 浏览次数:4044
2024-05-18 10:00:27 | 浏览次数:4146
2024-05-17 11:16:23 | 浏览次数:3863
2024-05-16 09:17:01 | 浏览次数:4024
2024-05-15 09:41:22 | 浏览次数:3847
2024-05-14 09:40:06 | 浏览次数:3974
2024-05-13 10:14:34 | 浏览次数:4049
2024-05-12 09:30:28 | 浏览次数:3958
2024-05-11 09:55:02 | 浏览次数:4004
2024-05-10 10:21:22 | 浏览次数:4224
2024-05-09 11:13:03 | 浏览次数:4118
2024-05-05 10:33:09 | 浏览次数:4149
2024-05-03 09:40:35 | 浏览次数:4188
2024-05-02 09:38:06 | 浏览次数:4239
2024-05-01 09:19:44 | 浏览次数:4086
2024-04-30 10:25:45 | 浏览次数:4171
2024-04-29 09:28:47 | 浏览次数:4011
2024-04-28 09:48:24 | 浏览次数:4871
2024-04-27 10:08:17 | 浏览次数:4148
2024-04-26 10:06:29 | 浏览次数:4138
2024-04-25 11:36:13 | 浏览次数:4023
2024-04-24 09:49:00 | 浏览次数:4145
2024-04-23 10:21:12 | 浏览次数:4006
2024-04-21 11:36:25 | 浏览次数:4056
2024-04-20 11:04:03 | 浏览次数:3997
2024-04-19 09:30:17 | 浏览次数:4002
2024-04-18 09:06:15 | 浏览次数:3959
2024-04-17 09:19:40 | 浏览次数:4035
2024-04-16 09:26:39 | 浏览次数:3977
2024-04-14 10:27:39 | 浏览次数:4182
2024-04-13 09:50:52 | 浏览次数:4268
2024-04-12 09:00:57 | 浏览次数:4394
2024-04-11 09:22:52 | 浏览次数:4341
2024-04-10 08:54:01 | 浏览次数:4417
2024-04-09 13:45:07 | 浏览次数:4305
2024-04-07 10:57:42 | 浏览次数:4259
2024-04-06 11:03:10 | 浏览次数:4464
2024-04-05 11:54:46 | 浏览次数:4292
2024-04-04 14:16:50 | 浏览次数:4274
2024-04-03 11:18:34 | 浏览次数:4626
2024-04-02 10:59:09 | 浏览次数:4282
2024-03-31 13:08:07 | 浏览次数:4479
2024-03-30 16:17:41 | 浏览次数:4428
2024-03-29 11:19:27 | 浏览次数:4346
2024-03-28 11:00:52 | 浏览次数:4288
2024-03-27 10:22:00 | 浏览次数:4375
2024-03-26 10:33:06 | 浏览次数:4427
2024-03-24 09:34:19 | 浏览次数:4299
2024-03-23 10:21:54 | 浏览次数:4911
2024-03-22 09:24:35 | 浏览次数:4393
2024-03-21 09:13:57 | 浏览次数:4629
2024-03-20 09:55:01 | 浏览次数:4462
2024-03-19 10:15:02 | 浏览次数:4356
2024-03-17 10:14:12 | 浏览次数:4272
2024-03-16 09:10:03 | 浏览次数:4696
2024-03-15 09:36:33 | 浏览次数:4553
2024-03-14 09:34:09 | 浏览次数:4547
2024-03-13 14:02:21 | 浏览次数:4466
2024-03-12 11:39:51 | 浏览次数:4649
2024-03-10 09:33:04 | 浏览次数:4529
2024-03-09 10:17:30 | 浏览次数:4657
2024-03-08 11:23:44 | 浏览次数:4616
2024-03-07 09:50:17 | 浏览次数:4433
2024-03-06 14:14:07 | 浏览次数:4524
2024-03-05 11:50:06 | 浏览次数:4588
2024-03-03 10:27:26 | 浏览次数:4650
2024-03-02 09:58:29 | 浏览次数:4472
2024-03-01 10:22:55 | 浏览次数:4413
2024-02-29 12:16:03 | 浏览次数:4583
2024-02-28 09:04:32 | 浏览次数:4747
2024-02-27 10:47:09 | 浏览次数:4685
2024-02-25 10:26:32 | 浏览次数:4682
2024-02-24 11:28:07 | 浏览次数:4680
2024-02-23 09:15:58 | 浏览次数:4890
2024-02-22 09:50:35 | 浏览次数:4651
2024-02-21 09:52:03 | 浏览次数:4674
2024-02-20 09:44:47 | 浏览次数:4697
2024-02-19 10:30:18 | 浏览次数:4621
2024-02-18 13:37:57 | 浏览次数:4677
2024-01-10 09:06:30 | 浏览次数:5188
2024-01-09 11:37:29 | 浏览次数:5021
2024-01-07 10:57:31 | 浏览次数:5317
2024-01-06 11:07:28 | 浏览次数:5283
2024-01-05 14:56:45 | 浏览次数:5278
2024-01-04 14:52:23 | 浏览次数:5384
2024-01-03 09:23:23 | 浏览次数:5420
2024-01-02 09:43:09 | 浏览次数:5243
2023-12-31 09:51:00 | 浏览次数:5395
2023-12-30 11:33:24 | 浏览次数:5197
2023-12-29 09:18:51 | 浏览次数:5299
2023-12-28 09:50:10 | 浏览次数:5438
2023-12-27 11:20:39 | 浏览次数:5539
2023-12-26 08:54:38 | 浏览次数:5605
2023-12-24 11:01:27 | 浏览次数:5243
2023-12-23 11:09:04 | 浏览次数:5299
2023-12-22 08:59:40 | 浏览次数:5177
2023-12-21 09:30:10 | 浏览次数:5173
2023-12-20 10:26:16 | 浏览次数:5873
2023-12-19 10:28:29 | 浏览次数:5531
2023-12-17 09:54:08 | 浏览次数:5457
2023-12-16 10:19:04 | 浏览次数:5294
2023-12-14 09:22:54 | 浏览次数:5408
2023-12-13 11:06:28 | 浏览次数:5477
2023-12-12 09:33:56 | 浏览次数:5465
2023-12-10 09:37:18 | 浏览次数:5492
2023-12-09 10:42:03 | 浏览次数:5617
2023-12-08 09:35:06 | 浏览次数:5435
2023-12-07 09:22:40 | 浏览次数:5569
2023-12-06 09:55:11 | 浏览次数:5431
2023-12-05 10:00:25 | 浏览次数:5380
2023-12-03 10:35:31 | 浏览次数:5428
2023-12-02 10:49:43 | 浏览次数:5496
2023-12-01 10:12:34 | 浏览次数:5617
2023-11-30 10:12:03 | 浏览次数:5341
2023-11-29 10:29:51 | 浏览次数:5579
2023-11-28 09:44:42 | 浏览次数:5515
2023-11-26 09:24:27 | 浏览次数:5546
2023-11-25 10:36:55 | 浏览次数:5639
2023-11-24 09:43:58 | 浏览次数:5603
2023-11-23 09:54:45 | 浏览次数:5593
2023-11-22 10:52:53 | 浏览次数:5502
2023-11-21 10:33:45 | 浏览次数:5573
2023-11-19 10:41:42 | 浏览次数:5581
2023-11-17 09:59:35 | 浏览次数:5606
2023-11-16 09:22:27 | 浏览次数:5591
2023-11-15 09:20:56 | 浏览次数:5696
2023-11-14 09:39:10 | 浏览次数:5638
2023-11-12 09:33:58 | 浏览次数:5760
2023-11-11 10:02:50 | 浏览次数:5781
2023-11-10 10:25:30 | 浏览次数:5711
2023-11-09 14:28:21 | 浏览次数:6279
2023-11-08 10:21:14 | 浏览次数:5740
2023-11-07 09:36:24 | 浏览次数:5665
2023-11-05 10:05:27 | 浏览次数:5743
2023-11-04 10:13:06 | 浏览次数:5592
2023-11-03 09:49:02 | 浏览次数:5372
2023-11-02 10:16:48 | 浏览次数:5486
2023-11-01 09:26:21 | 浏览次数:5827
2023-10-31 09:21:55 | 浏览次数:5761
2023-10-30 10:29:22 | 浏览次数:5598
2023-10-29 09:51:10 | 浏览次数:5735
2023-10-28 10:19:45 | 浏览次数:5732
2023-10-27 10:17:50 | 浏览次数:5506
2023-10-26 10:52:26 | 浏览次数:5830
2023-10-25 09:54:51 | 浏览次数:5498
2023-10-24 09:32:35 | 浏览次数:5833
2023-10-22 10:17:22 | 浏览次数:5598
2023-10-21 11:09:08 | 浏览次数:5888
2023-10-19 10:15:02 | 浏览次数:5985
2023-10-18 11:12:40 | 浏览次数:5743
2023-10-17 16:03:41 | 浏览次数:5826
2023-10-15 09:56:39 | 浏览次数:5852
2023-10-13 10:02:39 | 浏览次数:5840
2023-10-12 09:47:07 | 浏览次数:5982
2023-10-08 10:57:06 | 浏览次数:5982
2023-10-07 11:24:37 | 浏览次数:6458
2023-10-06 09:45:31 | 浏览次数:6096
2023-10-04 09:39:33 | 浏览次数:6554
2023-10-03 09:56:05 | 浏览次数:6079
2023-10-02 10:39:02 | 浏览次数:5852
2023-10-01 10:58:01 | 浏览次数:5943
2023-09-29 09:53:57 | 浏览次数:5933
2023-09-28 10:17:27 | 浏览次数:6128
2023-09-27 10:01:58 | 浏览次数:5884
2023-09-26 09:45:49 | 浏览次数:5899
2023-09-24 10:47:48 | 浏览次数:6060
2023-09-23 10:33:39 | 浏览次数:5951
2023-09-22 09:45:23 | 浏览次数:5997
2023-09-21 10:22:06 | 浏览次数:6222
2023-09-20 09:50:18 | 浏览次数:6128
2023-09-19 10:40:45 | 浏览次数:6004
2023-09-17 10:58:05 | 浏览次数:6013
2023-09-16 10:08:45 | 浏览次数:7232
2023-09-15 09:25:18 | 浏览次数:6532
2023-09-14 09:21:02 | 浏览次数:6804
2023-09-13 09:16:04 | 浏览次数:6854
2023-09-12 09:20:02 | 浏览次数:6439
2023-09-10 09:54:45 | 浏览次数:6334
2023-09-09 09:44:24 | 浏览次数:7393
2023-09-08 10:14:42 | 浏览次数:6432
2023-09-07 10:47:08 | 浏览次数:7540
2023-09-06 14:55:38 | 浏览次数:6311
2023-09-05 09:11:33 | 浏览次数:6827
2023-09-03 09:47:22 | 浏览次数:6231
2023-09-02 09:40:35 | 浏览次数:7465
2023-08-31 09:16:47 | 浏览次数:6442
2023-08-30 09:26:20 | 浏览次数:7427
2023-08-29 09:26:28 | 浏览次数:7346
2023-08-26 10:22:19 | 浏览次数:7069
2023-08-25 11:01:35 | 浏览次数:7537
2023-08-24 09:23:46 | 浏览次数:6688
2023-08-22 09:41:58 | 浏览次数:6238
2023-08-19 09:32:57 | 浏览次数:6354
2023-08-17 10:23:57 | 浏览次数:7694
2023-08-13 10:22:35 | 浏览次数:6139
2023-08-12 10:43:31 | 浏览次数:6211
2023-08-10 09:37:04 | 浏览次数:7181
2023-08-09 16:50:53 | 浏览次数:6743
2023-08-08 09:23:49 | 浏览次数:6658
2023-08-05 09:50:43 | 浏览次数:7061
2023-08-04 09:52:37 | 浏览次数:10626
2023-08-02 09:43:47 | 浏览次数:6418
2023-08-01 09:38:06 | 浏览次数:7814
2023-07-31 10:52:46 | 浏览次数:6841
2023-07-30 09:56:26 | 浏览次数:7633
2023-07-29 10:41:05 | 浏览次数:6993
2023-07-27 09:46:00 | 浏览次数:7623
2023-07-26 10:03:14 | 浏览次数:6389
2023-07-25 09:24:34 | 浏览次数:6912
2023-07-23 09:58:19 | 浏览次数:7015
2023-07-22 10:24:35 | 浏览次数:7708
2023-07-21 09:26:36 | 浏览次数:7687
2023-07-20 09:20:24 | 浏览次数:7838
2023-07-19 09:08:55 | 浏览次数:7623
2023-07-18 09:29:34 | 浏览次数:7571
2023-07-14 09:41:41 | 浏览次数:7726
2023-07-13 10:56:39 | 浏览次数:7144
2023-07-11 10:06:46 | 浏览次数:7131
2023-07-09 10:22:05 | 浏览次数:7261
2023-07-07 09:30:18 | 浏览次数:7163
2023-07-06 09:42:15 | 浏览次数:6800
2023-07-01 10:02:28 | 浏览次数:7234
2023-06-30 09:40:23 | 浏览次数:7683
2023-06-29 10:09:54 | 浏览次数:8535
2023-06-28 10:01:42 | 浏览次数:8075
2023-06-27 09:52:00 | 浏览次数:7867
2023-06-25 11:07:20 | 浏览次数:7820
2023-06-24 10:06:31 | 浏览次数:7570
2023-06-23 09:53:43 | 浏览次数:8192
2023-06-18 11:12:08 | 浏览次数:8322
2023-06-17 10:28:55 | 浏览次数:8455
2023-06-16 09:07:45 | 浏览次数:7594
2023-06-15 09:08:54 | 浏览次数:8071
2023-06-13 11:49:03 | 浏览次数:7927
2023-06-11 10:10:07 | 浏览次数:8165
2023-06-08 09:18:40 | 浏览次数:8203
2023-06-07 16:26:36 | 浏览次数:8060
2023-06-06 10:03:35 | 浏览次数:7518
2023-06-04 09:44:19 | 浏览次数:8137
2023-06-03 10:08:29 | 浏览次数:7887
2023-06-02 09:34:56 | 浏览次数:7393
2023-06-01 09:11:27 | 浏览次数:7730
2023-05-31 09:31:05 | 浏览次数:8121
2023-05-30 10:04:18 | 浏览次数:6946
2023-05-28 10:07:21 | 浏览次数:7220
2023-05-27 10:07:12 | 浏览次数:7019
2023-05-26 11:08:06 | 浏览次数:7631
2023-05-23 09:58:25 | 浏览次数:7685
2023-05-21 09:35:12 | 浏览次数:7998
2023-05-20 10:20:39 | 浏览次数:7726
2023-05-19 09:45:17 | 浏览次数:7044
2023-05-18 13:26:28 | 浏览次数:7306
2023-05-17 09:10:46 | 浏览次数:7351
2023-05-16 08:57:00 | 浏览次数:7699
2023-05-14 09:30:21 | 浏览次数:8505
2023-05-13 09:23:39 | 浏览次数:7762
2023-05-12 09:39:17 | 浏览次数:7056
2023-05-11 08:43:37 | 浏览次数:7004
2023-05-10 15:03:36 | 浏览次数:7557
2023-05-10 09:17:53 | 浏览次数:8137
2023-05-09 09:09:41 | 浏览次数:7654
2023-05-08 15:28:04 | 浏览次数:7067
2023-05-07 09:31:17 | 浏览次数:7626
2023-05-06 09:29:59 | 浏览次数:7294
2021-03-23 14:10:00 | 浏览次数:10218
2021-03-23 13:23:09 | 浏览次数:9963
2021-03-20 14:51:01 | 浏览次数:10882
2021-03-18 15:21:51 | 浏览次数:9864
2021-03-16 11:52:08 | 浏览次数:9521
2021-03-16 10:32:31 | 浏览次数:9583
2021-03-13 16:56:25 | 浏览次数:9766
2021-03-11 16:39:18 | 浏览次数:9730
2021-03-11 14:20:28 | 浏览次数:9509
2021-03-07 14:23:46 | 浏览次数:9653
2021-03-06 14:58:00 | 浏览次数:9671
2020-11-27 10:25:11 | 浏览次数:10487
2020-11-25 16:04:28 | 浏览次数:10188
2020-11-17 15:49:08 | 浏览次数:10107
2020-11-17 15:11:53 | 浏览次数:10130
2020-11-17 14:55:08 | 浏览次数:10432
2020-10-31 00:11:25 | 浏览次数:10442
2020-09-20 14:06:54 | 浏览次数:10325
2019-12-04 10:24:17 | 浏览次数:15665
2019-11-20 16:30:56 | 浏览次数:11264
2019-10-07 17:26:12 | 浏览次数:14463
2019-10-06 13:28:44 | 浏览次数:11272
2019-09-10 15:34:35 | 浏览次数:11202
2019-06-07 14:43:20 | 浏览次数:11772
2019-05-31 15:01:23 | 浏览次数:11536
2019-05-18 15:47:29 | 浏览次数:12990
2019-03-28 11:24:29 | 浏览次数:11614
2018-12-01 11:02:07 | 浏览次数:12436
2018-11-08 13:56:32 | 浏览次数:18520
2018-10-21 08:48:23 | 浏览次数:15635